📢
🔥 BLACK FRIDAY / BLACK WEEKS 2025 na Sprzedawanko.pl WSZYSTKO -30% 🔔 Skorzystaj teraz! 🔥

Domy 4 pokoje. Rączna/Kaszów

1 010 000,00 zł

{{ phone }}

{{ email }}

Dodane przez: braciasadurscy
braciasadurscy
Lokalizacja: Kraków, ul. Kapelanka 1a/1, ul. Kołowa 5/3, ul. Przewóz 47, os. Kazimierzowskie 36
Telefon: {{ phone }}
Udostępnij:

Opublikowano:  | Wygaśnie:

ID ogłoszenia: 18236

Szczegóły

Typ: Sprzedaż
Rynek: Pierwotny
Pow. użytkowa m2: 104.24
Pow. działki m2: 510
Pow. całkowita m2: 104.24
Cena za m2 (zł): 9689.18
Liczba pokoi: 4
Liczba sypialni: 3
Liczba pięter: 1
Rodzaj zabudowy: wolnostojący
Okna: PCV 3 komorowe
Rok budowy: 2025
Ogrzewanie: podłogowe
Własność: Własność
Dach: dachówka ceramiczna
Agent: Maria Śmiech
E-mail: maria@sadurscy.pl
Telefon kom.: +48 500-673-615
Data aktualizacji: 2025-11-06

Opis


Osiedle 7 domów jednorodzinnych w Rącznej (Kaszów) - komfort, spokój i zieleń!

Na sprzedaż oferujemy domy w nowo powstającym kameralnym osiedlu 7 domów jednorodzinnych o powierzchni ok. 104 m² każdy, położonych na działkach o powierzchni od 3,1 do 5,55 arów .

Każdy budynek to dom parterowy z użytkowym poddaszem , wykonany w technologii tradycyjnej, z wysokiej jakości materiałów.

Osiedle będzie całkowicie ogrodzone , z wykonanymi podjazdami i tarasami z kostki brukowej, co zapewni mieszkańcom bezpieczeństwo, prywatność i komfort.



Podstawowe informacje o ofercie:

• Powierzchnia działki: od 310 m² do 550 m²
• Cena (brutto): od 970 000 zł do 1 040 000 zł
• Stan: w trakcie realizacji

• Typ budynku: wolnostojący

• Powierzchnia użytkowa: ok. 104 m²

• Piętra: parter + poddasze użytkowe


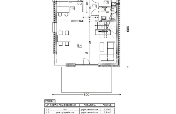
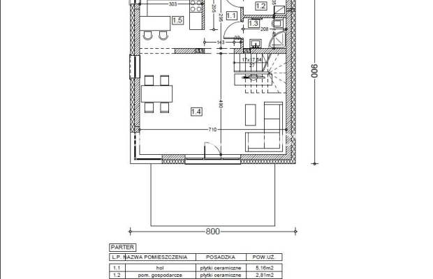
Rozkład domu:

Parter

1. Hol - 5,16 m2
2. Pomieszczenie gospodarcze - 2, 81 m2
3. Łazienka - 3,08 m2
4. Pokój dzienny z jadalnią - 34,79 m2
5. Kuchnia - 8,94

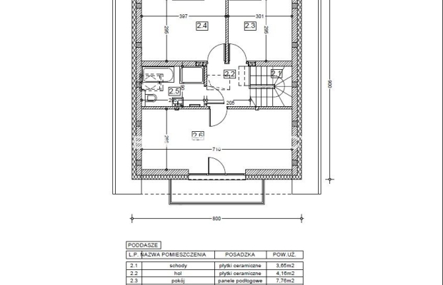
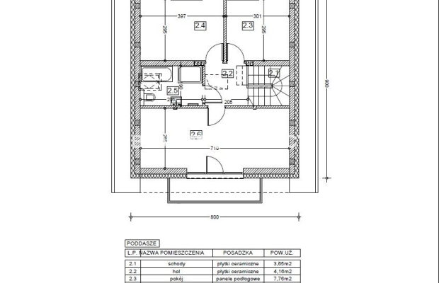
Poddasze

1. Schody - 3,65 m2
2. Hol - 4,16 m2
3. Pokój - 7,76 m2
4. Pokój - 10,59 m2
5. Pokój - 18,26 m2
6. Łazienka - 5,04 m2


Termin zakończenia budowy w stanie deweloperskim marzec 2026r.


Standard deweloperski

Konstrukcja:

• technologia tradycyjna (POROTHERM 25 cm + ocieplenie 20 cm)

• dachówka ceramiczna, okna dachowe FAKRO

• tynki maszynowo-gipsowe, wylewki i izolacje

• ogrzewanie podłogowe w całym domu

• kocioł z zamkniętą komorą spalania i zasobnikiem

• wentylacja mechaniczna (z urządzeniami), instalacja klimatyzacji (bez urządzeń)

• instalacje: prąd, woda, gaz, kanalizacja (szambo), zbiornik na deszczówkę

• alarm z powiadomieniem jednostki interwencyjnej



Dodatkowe walory:

• kostka brukowa wokół budynku i na podjeździe

• ogrodzenie działki z bramą i furtką

• taras z widokiem na ogród

• teren wstępnie uporządkowany i zniwelowany



Otoczenie i lokalizacja

Inwestycja znajduje się w wyjątkowo spokojnej, zielonej części Rącznej - z dala od miejskiego zgiełku, a jednocześnie z doskonałym dostępem do infrastruktury:

• szkoła podstawowa i przedszkole - w pobliżu osiedla

• las, park, ścieżki spacerowe i rowerowe - idealne dla miłośników natury

• sklepy i usługi w bliskim sąsiedztwie

• lotnisko Balice - ok. 10 km

• Kraków, Salwator - ok. 16 km

Rączna (gm. Liszki)

To idealne miejsce dla osób, które szukają połączenia spokoju podmiejskiego życia z szybkim dostępem do miasta.


W celu uzyskania bliższych informacji zapraszam do kontaktu:

Maria Śmiech
Tel: +48 500-673-615
E-mail: maria@sadurscy.pl

--------------------------

::GRATIS | Nasza prowizja zawiera: koszt przedwstępnej notarialnej umowy sprzedaży nieruchomości z rynku wtórnego.
::GWARANCJA | Gwarancja zwrotu zadatku. Więcej informacji na sadurscy.pl/zwrot-zadatku/


Oferta wysłana z systemu Galactica Virgo

Komentarze (0)

Nic nie znaleziono

Tylko zalogowani użytkownicy mogą dodawać komentarze

Mapa

Formularz kontaktowy

This site is protected by reCAPTCHA and the Google Privacy Policy and Terms of Service apply.

Podobne ogłoszenia

Atrakcyjna nieruchomość w Brzesku-Królowej Jadwigi

Zdjęcia należą do właściciela oferty Na sprzedaż - atrakcyjna nieruchomość w Brzesku, ul. Królowej Jadwigi Na sprzedaż oferujemy działkę o łącznej powierzchni 956 m² , składającą się z dwóch...

295 000,00 zł

Brzesko

Domy 4 pokoje. Rączna/Kaszów

Osiedle 7 domów jednorodzinnych w Rącznej (Kaszów) - komfort, spokój i zieleń! Na sprzedaż oferujemy domy w nowo powstającym kameralnym osiedlu 7 domów jednorodzinnych o powierzchni ok. 1...

1 010 000,00 zł

Rączna

Ustawne 2 pokoje | 46 m² | ul. Okulickiego | 2012

Na sprzedaż ustawne, 2-pokojowe mieszkanie o powierzchni 46,38 m² przy ul. Okulickiego. Lokal znajduje się na wysokim parterze nowoczesnego budynku z 2012 roku . Lokalizacja Osied...

749 000,00 zł

Kraków

Domy 4 pokoje. Rączna/Kaszów

Osiedle 7 domów jednorodzinnych w Rącznej (Kaszów) - komfort, spokój i zieleń! Na sprzedaż oferujemy domy w nowo powstającym kameralnym osiedlu 7 domów jednorodzinnych o powierzchni ok. 1...

1 010 000,00 zł

Rączna

Domy 4 pokoje. Rączna/Kaszów

Osiedle 7 domów jednorodzinnych w Rącznej (Kaszów) - komfort, spokój i zieleń! Na sprzedaż oferujemy domy w nowo powstającym kameralnym osiedlu 7 domów jednorodzinnych o powierzchni ok. 1...

1 010 000,00 zł

Rączna

Domy 4 pokoje. Rączna/Kaszów

Osiedle 7 domów jednorodzinnych w Rącznej (Kaszów) - komfort, spokój i zieleń! Na sprzedaż oferujemy domy w nowo powstającym kameralnym osiedlu 7 domów jednorodzinnych o powierzchni ok. 1...

1 040 000,00 zł

Rączna

Domy 4 pokoje. Rączna/Kaszów

Osiedle 7 domów jednorodzinnych w Rącznej (Kaszów) - komfort, spokój i zieleń! Na sprzedaż oferujemy domy w nowo powstającym kameralnym osiedlu 7 domów jednorodzinnych o powierzchni ok. 1...

970 000,00 zł

Rączna

Domy 4 pokoje. Rączna/Kaszów

Osiedle 7 domów jednorodzinnych w Rącznej (Kaszów) - komfort, spokój i zieleń! Na sprzedaż oferujemy domy w nowo powstającym kameralnym osiedlu 7 domów jednorodzinnych o powierzchni ok. 1...

970 000,00 zł

Rączna

Nowa niższa cena! Dom pod Opactwem Benedyktynów !

🏡 Nowa niższa cena! Dom pod Opactwem Benedyktynów w Tyńcu - duża działka, piękne widoki! Na sprzedaż wyjątkowy dom położony u podnóża Opactwa Benedyktynów w Tyńcu - jednej z najpiękniejszych i...

1 390 000,00 zł

Kraków

Nowoczesne mieszkania Kraków/Krowodrza!

Nowoczesne mieszkania w świetnej lokalizacji - Kraków, Krowodrza Na sprzedaż nowe mieszkania w kameralnej inwestycji w sercu Krakowa, w dzielnicy Krowodrza. Budynek położony w pobliżu Rond...

1 235 791,00 zł

Kraków

Dębniki, nowe mieszkania, stan deweloperski!

DEBNIKI - NOWE MIESZKANIA, STAN DEWELOPERSKI. Osiedle położone przy Dębnikach to nowoczesne osiedle zaprojektowane z myślą o komforcie, funkcjonalności i wysokim standardzie życia. Doskonała lo...

858 544,00 zł

Kraków

Dębniki, nowe mieszkania, stan deweloperski!!!

Bracia Sadurscy to oficjalny przedstawiciel handlowy dewelopera - kupując z nami nie płacisz prowizji i ukrytych kosztów. DEBNIKI - NOWE MIESZKANIA, STAN DEWELOPERSKI. Osiedle położone p...

599 886,00 zł

Kraków

Nowe mieszkania,świetna lokalizacja-bez prowizji !

Bracia Sadurscy mają przyjemność zaprezentować na sprzedaż inwestycję . Położenie między centrum handlowym Bonarka a strategicznym rondem Matecznego zapewnia bliskość malowniczego Podgórza. Łatwy...

923 296,00 zł

Kraków

Smart Apartament na Prądniku Białym blisko Zieleni

Z ogromną przyjemnością przedstawiamy Państwu ofertę mieszkania na sprzedaż w malowniczym rejonie Doliny Prądnika, na północy Krakowa, blisko granicy z gminą Zielonki. Nowoczesne osiedle otoczone j...

743 019,00 zł

Kraków

Smart Apartament na Prądniku Białym blisko Zieleni

Z ogromną przyjemnością przedstawiamy Państwu ofertę mieszkania na sprzedaż w malowniczym rejonie Doliny Prądnika, na północy Krakowa, blisko granicy z gminą Zielonki. Nowoczesne osiedle otoczone j...

617 015,00 zł

Kraków

Nowe mieszkania,świetna lokalizacja-bez prowizji !

Bracia Sadurscy mają przyjemność zaprezentować na sprzedaż inwestycję . Położenie między centrum handlowym Bonarka a strategicznym rondem Matecznego zapewnia bliskość malowniczego Podgórza. Łatwy...

929 628,00 zł

Kraków

Nowe osiedle mieszkaniowe Bronowice

BRONOWICE - NOWA INWESTYCJA DEWELOPERSKA Oferujemy Państwu wyjątkową inwestycję mieszkaniową , zlokalizowaną w dzielnicy Bronowice. Nowoczesna architektura i doskonała lokalizacja spot...

1 142 979,00 zł

Kraków

Nowe osiedle mieszkaniowe Bronowice

BRONOWICE - NOWA INWESTYCJA DEWELOPERSKA Oferujemy Państwu wyjątkową inwestycję mieszkaniową , zlokalizowaną w dzielnicy Bronowice. Nowoczesna architektura i doskonała lokalizacja spot...

745 797,00 zł

Kraków

Nowe osiedle mieszkaniowe Bronowice

BRONOWICE - NOWA INWESTYCJA DEWELOPERSKA Oferujemy Państwu wyjątkową inwestycję mieszkaniową , zlokalizowaną w dzielnicy Bronowice. Nowoczesna architektura i doskonała lokalizacja spot...

1 229 408,00 zł

Kraków

Nowe mieszkania,świetna lokalizacja-bez prowizji !

Bracia Sadurscy mają przyjemność zaprezentować na sprzedaż inwestycję . Położenie między centrum handlowym Bonarka a strategicznym rondem Matecznego zapewnia bliskość malowniczego Podgórza. Łatwy...

855 603,00 zł

Kraków

Nowoczesne mieszkania Kraków/Krowodrza!

Nowoczesne mieszkania w świetnej lokalizacji - Kraków, Krowodrza Na sprzedaż nowe mieszkania w kameralnej inwestycji w sercu Krakowa, w dzielnicy Krowodrza. Budynek położony w pobliżu Rond...

1 014 921,00 zł

Kraków

Osiedle Złocień - nowe osiedle mieszkaniowe

ZŁOCIEŃ - NOWOCZESNE OSIEDLE MIESZKANIOWE. Prezentujemy nowoczesne osiedle zlokalizowane w południowo-wschodniej części miasta. W III etapie powstanie czteropiętrowy budynek , w któ...

589 000,00 zł

Kraków

Iwestycja mieszkaniowa Wzgórza Krzesławickie!!!

Biuro Nieruchomości Bracia Sadurscy prezentuje inwestycję mieszkaniową położoną w spokojnej okolicy Wzgórz Krzesławickich, zapewniająca mieszkańcom wysoki standard życia oraz doskonałe połączenie k...

635 987,00 zł

Kraków

Osiedle Piastów - nowe mieszkania

OSIEDLE PIASTÓW - NOWE MIESZKANIA, STAN DEWELOPERSKI. Nowy etap inwestycji na Osiedlu Piastów - Dogodna lokalizacja, blisko węzła komunikacyjnego. Prezentowana inwestycja to 10-kondygnacyj...

621 396,00 zł

Kraków

Dębniki, nowe mieszkania, stan deweloperski!

DEBNIKI - NOWE MIESZKANIA, STAN DEWELOPERSKI. Osiedle położone przy Dębnikach to nowoczesne osiedle zaprojektowane z myślą o komforcie, funkcjonalności i wysokim standardzie życia. Doskonała lo...

957 600,00 zł

Kraków

Nowe osiedle mieszkaniowe Bronowice

BRONOWICE - NOWA INWESTYCJA DEWELOPERSKA Oferujemy Państwu wyjątkową inwestycję mieszkaniową , zlokalizowaną w dzielnicy Bronowice. Nowoczesna architektura i doskonała lokalizacja spot...

885 540,00 zł

Kraków

Dębniki, nowe mieszkania, stan deweloperski!

DEBNIKI - NOWE MIESZKANIA, STAN DEWELOPERSKI. Osiedle położone przy Dębnikach to nowoczesne osiedle zaprojektowane z myślą o komforcie, funkcjonalności i wysokim standardzie życia. Doskonała lo...

1 194 600,00 zł

Kraków

Nowe mieszkania,świetna lokalizacja-bez prowizji !

Bracia Sadurscy mają przyjemność zaprezentować na sprzedaż inwestycję . Położenie między centrum handlowym Bonarka a strategicznym rondem Matecznego zapewnia bliskość malowniczego Podgórza. Łatwy...

780 300,00 zł

Kraków

Facebook
Facebook
Sprzedawanko.pl – serwis ogłoszeń Firmowanko.pl – katalog firm i usług Pracowanko.pl – serwis pracy Ugościmy.pl – serwis noclegów Nporta.pl – katalog firm i usług