📢
🔥 BLACK FRIDAY / BLACK WEEKS 2025 na Sprzedawanko.pl WSZYSTKO -30% 🔔 Skorzystaj teraz! 🔥

Domy 4 pokoje. Rączna/Kaszów

970 000,00 zł

{{ phone }}

{{ email }}

Dodane przez: braciasadurscy
braciasadurscy
Lokalizacja: Kraków, ul. Kapelanka 1a/1, ul. Kołowa 5/3, ul. Przewóz 47, os. Kazimierzowskie 36
Telefon: {{ phone }}
Udostępnij:

Opublikowano:  | Wygaśnie:

ID ogłoszenia: 17803

Szczegóły

Typ: Sprzedaż
Rynek: Pierwotny
Pow. użytkowa m2: 104.24
Pow. działki m2: 310
Pow. całkowita m2: 104.24
Cena za m2 (zł): 9305.45
Liczba pokoi: 4
Liczba sypialni: 3
Liczba pięter: 1
Rodzaj zabudowy: wolnostojący
Okna: PCV 3 komorowe
Rok budowy: 2025
Ogrzewanie: podłogowe
Własność: Własność
Dach: dachówka ceramiczna
Agent: Maria Śmiech
E-mail: maria@sadurscy.pl
Telefon kom.: +48 500-673-615
Data aktualizacji: 2025-11-04

Opis


Osiedle 7 domów jednorodzinnych w Rącznej (Kaszów) - komfort, spokój i zieleń!

Na sprzedaż oferujemy domy w nowo powstającym kameralnym osiedlu 7 domów jednorodzinnych o powierzchni ok. 104 m² każdy, położonych na działkach o powierzchni od 3,1 do 5,55 arów .

Każdy budynek to dom parterowy z użytkowym poddaszem , wykonany w technologii tradycyjnej, z wysokiej jakości materiałów.

Osiedle będzie całkowicie ogrodzone , z wykonanymi podjazdami i tarasami z kostki brukowej, co zapewni mieszkańcom bezpieczeństwo, prywatność i komfort.



Podstawowe informacje o ofercie:

• Powierzchnia działki: od 310 m² do 550 m²
• Cena (brutto): od 970 000 zł do 1 040 000 zł
• Stan: w trakcie realizacji

• Typ budynku: wolnostojący

• Powierzchnia użytkowa: ok. 104 m²

• Piętra: parter + poddasze użytkowe


Rozkład domu:

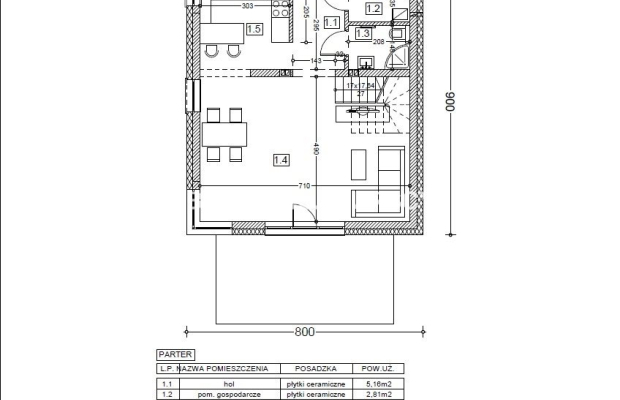
Parter

1. Hol - 5,16 m2
2. Pomieszczenie gospodarcze - 2, 81 m2
3. Łazienka - 3,08 m2
4. Pokój dzienny z jadalnią - 34,79 m2
5. Kuchnia - 8,94

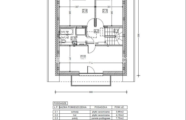
Poddasze

1. Schody - 3,65 m2
2. Hol - 4,16 m2
3. Pokój - 7,76 m2
4. Pokój - 10,59 m2
5. Pokój - 18,26 m2
6. Łazienka - 5,04 m2


Termin zakończenia budowy w stanie deweloperskim marzec 2026r.


Standard deweloperski

Konstrukcja:

• technologia tradycyjna (POROTHERM 25 cm + ocieplenie 20 cm)

• dachówka ceramiczna, okna dachowe FAKRO

• tynki maszynowo-gipsowe, wylewki i izolacje

• ogrzewanie podłogowe w całym domu

• kocioł z zamkniętą komorą spalania i zasobnikiem

• wentylacja mechaniczna (z urządzeniami), instalacja klimatyzacji (bez urządzeń)

• instalacje: prąd, woda, gaz, kanalizacja (szambo), zbiornik na deszczówkę

• alarm z powiadomieniem jednostki interwencyjnej



Dodatkowe walory:

• kostka brukowa wokół budynku i na podjeździe

• ogrodzenie działki z bramą i furtką

• taras z widokiem na ogród

• teren wstępnie uporządkowany i zniwelowany



Otoczenie i lokalizacja

Inwestycja znajduje się w wyjątkowo spokojnej, zielonej części Rącznej - z dala od miejskiego zgiełku, a jednocześnie z doskonałym dostępem do infrastruktury:

• szkoła podstawowa i przedszkole - w pobliżu osiedla

• las, park, ścieżki spacerowe i rowerowe - idealne dla miłośników natury

• sklepy i usługi w bliskim sąsiedztwie

• lotnisko Balice - ok. 10 km

• Kraków, Salwator - ok. 16 km

Rączna (gm. Liszki)

To idealne miejsce dla osób, które szukają połączenia spokoju podmiejskiego życia z szybkim dostępem do miasta.


W celu uzyskania bliższych informacji zapraszam do kontaktu:

Maria Śmiech
Tel: +48 500-673-615
E-mail: maria@sadurscy.pl

--------------------------

::GRATIS | Nasza prowizja zawiera: koszt przedwstępnej notarialnej umowy sprzedaży nieruchomości z rynku wtórnego.
::GWARANCJA | Gwarancja zwrotu zadatku. Więcej informacji na sadurscy.pl/zwrot-zadatku/


Oferta wysłana z systemu Galactica Virgo

Komentarze (0)

Nic nie znaleziono

Tylko zalogowani użytkownicy mogą dodawać komentarze

Mapa

Formularz kontaktowy

This site is protected by reCAPTCHA and the Google Privacy Policy and Terms of Service apply.

Podobne ogłoszenia

Grzegórzki-3 pok, oddzielna kuchnia

Sprzedam słoneczne 3-pokojowe mieszkanie(63 m2) z dużym balkonem - idealne dla rodziny! Mieszkanie ma przestronny i ustawny układ pomieszczeń, usytuowane na 3 piętrze budynku z 1994 ro...

1 039 000,00 zł

Kraków

Mieszkanie w Gaju pod Krakowem – ŚWIETNA CENA !

Mieszkanie w Gaju pod Krakowem - ŚWIETNA CENA ! Oferujemy dwupoziomowe mieszkania w wyjątkowej architekturze przypominającej nowoczesną stodołę , idealne dla osób szukających spokoju i blisk...

770 000,00 zł

Gaj

Mieszkanie w Gaju pod Krakowem – ŚWIETNA CENA !

Mieszkanie w Gaju pod Krakowem - ŚWIETNA CENA ! Oferujemy dwupoziomowe mieszkania w wyjątkowej architekturze przypominającej nowoczesną stodołę , idealne dla osób szukających spokoju i blisk...

765 000,00 zł

Gaj

Mieszkanie w Gaju pod Krakowem – ŚWIETNA CENA !

Mieszkanie w Gaju pod Krakowem - ŚWIETNA CENA ! Oferujemy dwupoziomowe mieszkania w wyjątkowej architekturze przypominającej nowoczesną stodołę , idealne dla osób szukających spokoju i blisk...

785 000,00 zł

Gaj

Mieszkanie w Gaju pod Krakowem – ŚWIETNA CENA !

Mieszkanie w Gaju pod Krakowem - ŚWIETNA CENA ! Oferujemy dwupoziomowe mieszkania w wyjątkowej architekturze przypominającej nowoczesną stodołę , idealne dla osób szukających spokoju i b...

725 000,00 zł

Gaj

Działka 20 arów - Mszana Dolna – rejon Zarabie

Działka budowlana - Mszana Dolna, ul. Stawowa (rejon Zarabie), 20 arów Na sprzedaż atrakcyjna działka budowlana o powierzchni 20 arów , położona w malowniczej części Mszany Dolnej - rejon Za...

900 000,00 zł

Mszana Dolna

Płaszów, ul. Saska - 6 pokojowe o powierzchni 106 m². Dwupoziomowe, 6-pokojowe mieszkanie o łącznej powierzchni 106 m², w ty

Płaszów, ul. Saska - 6 pokojowe o powierzchni 106 m². Dwupoziomowe, 6-pokojowe mieszkanie o łącznej powierzchni 106 m², w tym 74 m² powierzchni podstawowej oraz antresole o łącznej powierzchni 3...

1 440 000,00 zł

Kraków

M-3 POK, 4 PIĘTRO BALKON UL. GOŁAŚKA DO REMONTU

MIESZKANIE / 52 M2 / 3 POKOJE / OSOBNA KUCHNIA / DO REMONTU / 4 PIĘTRO / BALKON / KURDWANÓW KTO MOŻE ZAMIESZKAĆ ❓ Mieszkanie jest idealne dla pary, rodziny z dziećmi 2+2, osób poszukujących...

650 000,00 zł

Kraków

Nowoczesny dom z 2019 r. Chrząstawa Mała

Do sprzedania DOM W ZABUDOWIE BLIŹNIACZEJ, Chrząstawa Mała, gm. Czernica, 13 km od granic Wrocławia.DOM niezwykle funkcjonalny, wykończony materiałami najwyższej klasy oraz w pełni wyposażony w sprzęt...

1 045 000,00 zł

Chrząstawa Mała

2 pokoje Brodzińskiego, Tarnów

Do sprzedania przestronne mieszkanie zlokalizowane w Tarnowie przy ul. Bitwy o Wał Pomorski. 39 m 2 powierzchni, 3 piętro salon, sypialnia, kuchnia, łazienka, WC, hall. okna PCV c...

319 000,00 zł

Tarnów

M3 - Ruczaj - Duży balkon - Garaż

3-pokojowe mieszkanie z garderobą, dużym balkonem i garażem - 60 m² | 2. piętro | blok z 2006 r. Oferujemy na sprzedaż funkcjonalne, 3-pokojowe mieszkanie o powierzchni ok. 60 m², zlokalizow...

869 000,00 zł

Kraków

Hala Kraków Ciepłownicza - pod handel , magazyn

NIERUCHOMOŚĆ KRAKÓW CIEPŁOWNICZA - DO WYNAJĘCIA Budynki znajdują się na działkach o powierzchni 1831 m2. Możliwość wynajęcia większej powierzchni terenu w pobliżu hali. Nieruchom...

39 000,00 zł

Kraków

Stylowy dom w Garbatce Letnisko 100 km od Warszawy

Stylowy dom (dworek) murowany z cegły o pow. 210 m2 na ogrodzonej działce 3161 m2 przy ul. Fabrycznej w Garbatce Letnisko pow. kozienicki woj. mazowieckie 100 km. od Warszawy.Dom:-powierzchnia użyt...

1 200 000,00 zł

Garbatka-Letnisko

3 osobne pokoje przy Parku w Prokocimiu

3 niezależne pokoje / parter / zielona okolica / do remontu lub gruntownego odświeżenia Na sprzedaż 3-pokojowe mieszkanie przy ul. Kurczaba w Krakowie - spokojna, zielona okolica, idealna dla ro...

795 000,00 zł

Kraków

Domy 4 pokoje. Rączna/Kaszów

Osiedle 7 domów jednorodzinnych w Rącznej (Kaszów) - komfort, spokój i zieleń! Na sprzedaż oferujemy domy w nowo powstającym kameralnym osiedlu 7 domów jednorodzinnych o powierzchni ok. 1...

1 010 000,00 zł

Rączna

Domy 4 pokoje. Rączna/Kaszów

Osiedle 7 domów jednorodzinnych w Rącznej (Kaszów) - komfort, spokój i zieleń! Na sprzedaż oferujemy domy w nowo powstającym kameralnym osiedlu 7 domów jednorodzinnych o powierzchni ok. 1...

1 010 000,00 zł

Rączna

Domy 4 pokoje. Rączna/Kaszów

Osiedle 7 domów jednorodzinnych w Rącznej (Kaszów) - komfort, spokój i zieleń! Na sprzedaż oferujemy domy w nowo powstającym kameralnym osiedlu 7 domów jednorodzinnych o powierzchni ok. 1...

1 010 000,00 zł

Rączna

Domy 4 pokoje. Rączna/Kaszów

Osiedle 7 domów jednorodzinnych w Rącznej (Kaszów) - komfort, spokój i zieleń! Na sprzedaż oferujemy domy w nowo powstającym kameralnym osiedlu 7 domów jednorodzinnych o powierzchni ok. 1...

1 010 000,00 zł

Rączna

Domy 4 pokoje. Rączna/Kaszów

Osiedle 7 domów jednorodzinnych w Rącznej (Kaszów) - komfort, spokój i zieleń! Na sprzedaż oferujemy domy w nowo powstającym kameralnym osiedlu 7 domów jednorodzinnych o powierzchni ok. 1...

1 040 000,00 zł

Rączna

Domy 4 pokoje. Rączna/Kaszów

Osiedle 7 domów jednorodzinnych w Rącznej (Kaszów) - komfort, spokój i zieleń! Na sprzedaż oferujemy domy w nowo powstającym kameralnym osiedlu 7 domów jednorodzinnych o powierzchni ok. 1...

970 000,00 zł

Rączna

Siedliszowice pow. tarnowski - hala prod. 400 m2.

Siedliszowice pow. tarnowski - hala magazynowo-produkcyjna na działce o pow. 91 arów! Nieruchomość gruntowa zabudowana halą produkcyjną i dwoma budynkami magazynowymi. Hala produkcyjna ma powi...

800 000,00 zł

Tarnowski

2 pok. mieszkanie ul Gwiaździsta, nowoczesne

Do wynajęcia od grudnia mieszkanie 2-pokojowe plus balkon, 42 m2 położone w apartamentowcu przy ul. Gwiaździstej, KrzykiEnglish description belowUKŁAD POMIESZCZEŃNa mieszkanie usytuowane na 2 piętrze ...

2 990,00 zł

Wrocław

2 pokoje z 2 m. post. ul. Inżynierska Corte Verona

Oferuję do wynajęcia od 1 grudnia 2025 r. nowocześnie urządzone dwupokojowe mieszkanie przy ul. Inżynierskiej z dwoma miejscami postojowymi w garażu podziemnym, położone w zamkniętym i chronionym komp...

2 700,00 zł

Wrocław

Nowe 3 pok, ul Jantarowa Krzyki

DO WYNAJĘCIA od zaraz 3 pokoje ul. Jantarowa, KrzykiOferuję do wynajęcia od zaraz 3 pokojowe mieszkanie po generalnym remoncieUKŁAD POMIESZCZEŃNa mieszkanie usytuowane na parterze o powierzchni 53 m2 ...

3 100,00 zł

Wrocław

Jezioro Rożnowskie teren na hotel

SZUKASZ MIEJSCA POD HOTEL / SPA/ DOM SENIORA ? WŁAŚNIE GO ZNALAZŁEŚ Oferujemy na sprzedaż nieruchomość leżącą w Znamirowicach nad jeziorem rożnowskim woj. małopolskie. Nieruchomość skła...

5 000 000,00 zł

Gródek nad Dunajcem

Działka ROD Brodła z domem

Na sprzedaż dom ROD w Brodłach, gm. Alwernia Zapraszam do zapoznania się z ofertą sprzedaży murowanego domu o powierzchni około 60 m², położonego na malowniczej działce w ROD Brodła. To d...

155 000,00 zł

Chrzanowski

Słoneczne mieszkanie ul. Reduta!

Słoneczne mieszkanie z balkonem i miejscem postojowym - Reduta! LOKALIZACJA Mieszkanie usytuowane jest w jednej z najbardziej pożądanych dzielnic Krakowa - Prądnik Czerwony, przy ul. Re...

3 500,00 zł

Kraków

M-2 POK 49 M2 NOWA HUTA BALKON PIWNICA PREMIUM

2 POKOJE / 49 M² / 3 PIĘTRO / BLISKO ALEI RÓŻ / NOWA HUTA / PIWNICA / CICHO OD STRONY OSIEDLA / BALKON / KLIMATYZACJA / PREMIUM KTO MOŻE ZAMIESZKAĆ ❓ Mieszkanie jest idealne dl...

3 200,00 zł

Kraków

Facebook
Facebook
Sprzedawanko.pl – serwis ogłoszeń Firmowanko.pl – katalog firm i usług Pracowanko.pl – serwis pracy Ugościmy.pl – serwis noclegów Nporta.pl – katalog firm i usług