📢
🔥 Już Jutro Nowa Promocja tylko na Sprzedawanko.pl! 🔔 Skorzystaj teraz! 🔥

Twój nowy dom - 5 pokoi- pompa ciepła Gniechowice

982 125,00 zł

{{ phone }}

{{ email }}

Dodane przez: HomePartner
HomePartner
Lokalizacja: Lipowa
Telefon: {{ phone }}
Udostępnij:

Opublikowano:  | Wygaśnie:

ID ogłoszenia: 17556

Szczegóły

Typ: Sprzedaż
Pow. użytkowa m2: 131.73
Pow. działki m2: 245
Pow. całkowita m2: 131.73
Liczba pokoi: 5
Liczba sypialni: 4
Liczba pięter: 1
Rodzaj zabudowy: szeregowy
Materiał budynku: ceramiczny Porotherm
Okna: PCV
Podłogi: beton
Rok budowy: 2025
Ogrzewanie: pompa ciepła
Własność: własność
Dach: dachówka ceramiczna
Agent: Monika Łabęska - Cioch
E-mail: biuro@home-partner.com.pl
Telefon kom.: 536 496 163
Telefon biuro:
Nr licencji: 23243
Data aktualizacji: 2025-10-29 16:19:24

Opis

Na sprzedaż energooszczędny dom w zabudowie szeregowej o powierzchni użytkowej 131,73 m2.Wydzielone działki.

Rynek pierwotny. Kupujący nie płaci prowizji i podatku PCC.

I ETAP INWESTYCJI DEWELOPERSKIEJ W GNIECHOWICACH. Docelowo zaprojektowano 10 domów w zabudowie szeregowej na działkach o wielkościach od 210 do 470 m2.

Zakończenie budowy GRUDZIEŃ 2025 r

Przekazanie domów: I Q 2026 r.

Przeniesienie własności: II Q 2026 r.

Rynek pierwotny. Kupujący nie płaci prowizji i podatku PCC.

Dom H, z ogrodem, usytuowany na działce 245 m2, pięć pokoi, kuchnia w aneksie, dwie łazienki, garaż. W cenie pełna pompa ciepła, rolety zewnętrzne na parterze, kabel do fotowoltaiki.

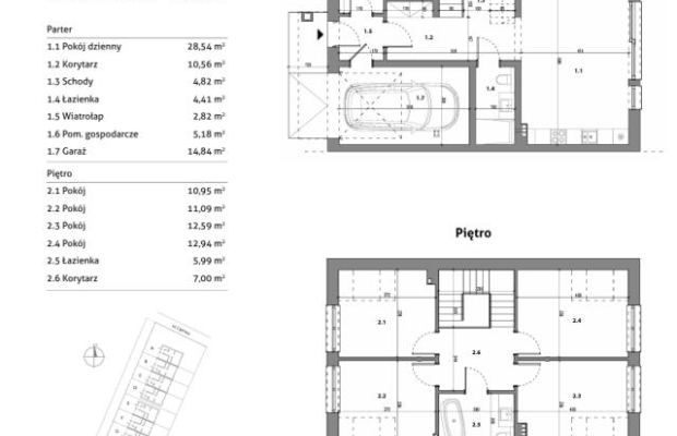
UKŁAD POMIESZCZEŃ

Parter: obszerny salon z aneksem kuchennym (28,54 m2) i z wyjściem na taras/ogród o wschodnio-południowej ekspozycji, łazienka (4,41 m2), pomieszczenie gospodarcze (5,18m2), garaż w bryle budynku (14,84)

I piętro: cztery ustawne sypialnie (10,95 m2, 11,09 m2, 12,59 m2, 12,94 m2, łazienka (5,99m2)

STANDARD

Podwyższony standard wykończenia:

- oszczędna pompa ciepła z możliwością chłodzenia w upalne dni

- kabel do instalacji fotowoltaicznej

- komfortowe i funkcjonalne ogrzewanie podłogowe w całym domu

- rolety zewnętrzne sterowane automatycznie na parterze budynku

- światłowód

- drzwi antywłamaniowe klasy C renomowanej firmy

- powierzchnie tarasów z płyt betonowych lub deski kompozytowej

- ściany z porothermu, dachówka ceramiczna

-okna pcv pięciokomorowe trzyszybowe

- ogrzewanie podłogowe , również w garażu

zbiornik na deszczówkę 4 tys litrów wkopany w ziemię

- dachówka ceramiczna z powłoką antyglonową

MEDIA

prąd, woda, zbiornik bezodpływowy

CENA: 982 125 zł

LOKALIZACJA I KOMUNIKACJA

Dom położony jest w miejscowości Gniechowice, w gminie Kąty Wrocławskie.

Spokojna i zielona okolica. Położenie na skraju Parku Krajobrazowego Doliny Bystrzycy daje możliwość kontaktu z pięknem natury i prowadzenia aktywnego trybu życia.

Dobry dojazd :

- do centrum Wrocławia - ok.25 min.

- do Centrum Handlowego Bielany Wrocławskie ok. 14 min

- do Kątów Wrocławskich 8 min.

- do Sobótki - 13 min.

- do Kobierzyc - 11 min.

- do autostrady A4 - 10 min.

- do portu lotniczego Wrocław- 20 min.

- do pałacu Krobielowice - 4km

Kursują także gminne autobusy, autobusy międzymiastowe oraz prywatne busy.

TEREN NIEZALEWOWY

Dom zlokalizowany z dala od zgiełku aglomeracji. Jednocześnie bliskość Wrocławia powoduje, że można łączyć pracę zawodową w mieście ze spokojem i ciszą wsi. W miejscowości sklep, kościół, restauracja, sklep Lewiatan, cukiernia i piekarnia, a także szkołą podstawowa, przedszkole w pobliskim Pustkowie Żurawskim oddalonym o ok. 6 km.

ZALETY OFERTY:

- doskonała lokalizacja

- funkcjonalny układ domu

- 5 pokoi

- spokojna okolica

- podwyższony standard wykończenia

Zapraszam do rozmów i obejrzenia domu. www.home-partner.com.pl Tel. 536 496 163

Feel free to contact us, talk and see the apartment. For more information please call us Tel +48 889 759 863.

Por favor contáctenos para conocer más sobre la oferta y ver el apartamento. Podemos ayudar con todos los trámites. Para más información por favor llámanos +48 889 759 863.

Treść niniejszego ogłoszenia nie stanowi oferty handlowej w rozumieniu Kodeksu Cywilnego.

Oferta wysłana z programu IMO dla biur nieruchomości

Komentarze (0)

Nic nie znaleziono

Tylko zalogowani użytkownicy mogą dodawać komentarze

Mapa

Formularz kontaktowy

This site is protected by reCAPTCHA and the Google Privacy Policy and Terms of Service apply.

Podobne ogłoszenia

Działka komercyjna o powierzchni 8700 m² położona w miejscowości Rudno, gmina Krzeszowice. Teren w miejscowym planie zagospodar

Działka komercyjna o powierzchni 8700 m² położona w miejscowości Rudno, gmina Krzeszowice. Teren w miejscowym planie zagospodarowania przestrzennego oznaczony jest symbolem U4, przewidzianym pod za...

1 798 000,00 zł

Krakowski

Maciejowice - widokowa działka z przyłączami

Uzbrojona działka budowlana - Maciejowice, gm. Kocmyrzów-Luborzyca Oferujemy wyjątkową działkę budowlaną położoną w malowniczej miejscowości Maciejowice (gmina Kocmyrzów-Luborzyca). Nieruc...

345 000,00 zł

Maciejowice

Idealny dom dla Ciebie! 5 km od Wrocławia

Dom 130 m2, rozkładowy i funkcjonalny, z ogrodem, w zabudowie bliźniaczej, przy cichej, wewnętrznej ulicy. Miłe sąsiedztwo. Doskonała komunikacyjnie lokalizacjaDo Wrocławia 5 km, 13 km do Rynku, a tak...

4 300,00 zł

Pietrzykowice

Klasyczna przedwojenna willa miejska ze schronem

Z prawdziwą przyjemnością oferuję do sprzedania DOM dwukondygnacyjny w wolnostojący z lat 30 XX wieku, o powierzchni ok. 300 m2 usytuowany we Wrocławiu na osiedlu Brochów. Dom posadowiony jest na dzia...

1 890 000,00 zł

Wrocław

DOM Wrocław- Różanka na wynajem

Oferuję do wynajęcia dom w zabudowie bliźniaczej. 3 sypialnie, duży salon z wyjściem na ogród, kuchnia, wc i łazienka.English description belowUKŁAD POMIESZCZEŃNa dwupoziomowy dom w zabudowie bliźniac...

6 600,00 zł

Wrocław

Klimatyczny dom wolnostojący, 5km do Wrocławia.

English version belowDo sprzedania DOM WOLNOSTOJĄCY, Pietrzykowice, gm. Kąty Wrocławskie, 5 km od granic Wrocławia, 12 km do wrocławskiego Rynku DOM niezwykle funkcjonalny, wykończony materiałami najw...

1 470 000,00 zł

Pietrzykowice

Energooszczędny DOM, klima i fotowoltaika w cenie

Nowoczesny dom bliźniaczy - energooszczędność, komfort, styl dla Ciebie! Klimatyzacja i instalacja fotowoltaiczna w cenie. Na sprzedaż wyjątkowy dom jednorodzinny w zabudowie bliźniaczej, położony w m...

430 000,00 zł

Strzelin

Twój nowy dom - 5 pokoi- pompa ciepła Gniechowice

Na sprzedaż energooszczędny dom w zabudowie szeregowej o powierzchni użytkowej 131,73 m2.Wydzielone działki.Rynek pierwotny. Kupujący nie płaci prowizji i podatku PCC.I ETAP INWESTYCJI DEWELOPERSKIEJ ...

1 018 250,00 zł

Gniechowice

Energooszczędny DOM - klima i fotowoltaika w cenie

Nowoczesny dom bliźniaczy - energooszczędność, komfort, styl dla Ciebie! Klimatyzacja i instalacja fotowoltaiczna w cenie.stan deweloperskiNa sprzedaż wyjątkowy dom jednorodzinny w zabudowie bliźniacz...

699 000,00 zł

Strzelin

Twój nowy dom - 5 pokoi- pompa ciepła Gniechowice

Na sprzedaż energooszczędny dom w zabudowie szeregowej o powierzchni użytkowej 131,73 m2.Wydzielone działki.Rynek pierwotny. Kupujący nie płaci prowizji i podatku PCC.I ETAP INWESTYCJI DEWELOPERSKIEJ ...

967 250,00 zł

Gniechowice

Przestronny dom w mieście dla Twojej rodziny!

English version belowOferuję przestronny i funkcjonalny dom w zabudowie szeregowej, usytuowany na działce 204 m2.Sześć pokoi, kuchnia z jadalnią, trzy łazienki, garaż. UKŁAD POMIESZCZEŃ Na czteropozio...

1 290 000,00 zł

Wrocław

Wolnostojący dom blisko lasu PROMOCJA CENOWA

Na sprzedaż gotowy energooszczędny dom wolnostojący o powierzchni użytkowej 115,70 m2.Dom usytuowany na działce 1087 m2, cztery pokoje, kuchnia w aneksie, dwie łazienki, garderoba, garaż.UKŁAD POMIESZ...

779 000,00 zł

Komorówko

Nowoczesny dom z 2019 r. Chrząstawa Mała

Do sprzedania DOM W ZABUDOWIE BLIŹNIACZEJ, Chrząstawa Mała, gm. Czernica, 13 km od granic Wrocławia.DOM niezwykle funkcjonalny, wykończony materiałami najwyższej klasy oraz w pełni wyposażony w sprzęt...

1 065 000,00 zł

Chrząstawa Mała

Nowy dom 6 pokoi, widok na las, 5 min do Wrocławia

Na sprzedaż nowy, komfortowy dom w zabudowie bliźniaczej o powierzchni użytkowej 167m2 z garażem (powierzchna po podłodze: 184,66 m2)Budynek wg nowoczesnego i autorskiego projektu. Zlokalizowany na du...

945 000,00 zł

Brzezina

Klasyczna przedwojenna willa miejska ze schronem

Z prawdziwą przyjemnością oferuję do sprzedania DOM dwukondygnacyjny w wolnostojący z lat 30 XX wieku, o powierzchni ok. 300 m2 usytuowany we Wrocławiu na osiedlu Brochów. Dom posadowiony jest na dzia...

1 890 000,00 zł

Wrocław

Lokal w centrum miasta-Wrocławska.

Do wynajęcia lokal usługowy - idealny pod branżę beauty! Lokalizacja: ul. Wrocławska, centrum miasta Powierzchnia: 20 m² Poziom: -1 Szukasz przytulnego i eleganckiego miejsca na w...

1 500,00 zł

Kraków

Działka budowlana w Rąblowie, gm. Wąwolnica - MPZP

Na sprzedaż działka o powierzchni 7632m2 położona w malowniczej miejscowości Rąblów, w gm. Wąwolnica(powiat puławski, woj. lubelskie)Cena: 245000złKsięga wieczysta: TAKNajważniejsze informacje:Powier...

245 000,00 zł

Rąblów

Działka 57 arów – Zawada Lanckorońska- Zakliczyn

Działka 57 arów - Zawada Lanckorońska, gm. Zakliczyn, powiat tarnowski (teren MN3) Na sprzedaż atrakcyjna działka o powierzchni 57 arów położona w miejscowości Zawada Lanckorońska , w gmini...

350 000,00 zł

Zawada Lanckorońska

Lokale użytkowe w biurowcu Pabianice

Lokal 190 m.kw w biurowcu 7 pomieszczeń, Pabianice Bestate Nieruchomości oferuje do wynajęcia lokale użytkowe (7 pokoi) o łącznej powierzchni 190 m.kw, usytuowane na pierwszym piętrze w budynku ...

7 410,00 zł

Pabianice

Hala produkcyjno-magazynowa przy ul. Igołomskiej!

Do wynajęcia powierzchnia o przeznaczeniu produkcyjnym lub magazynowym przy ul. Igołomskiej. Hala znajduje się w Strefie Aktywności Gospodarczej Kraków Igołomska Północ przy ul. Badeniego . P...

80 000,00 zł

Kraków

Fantastyczna działka w Radziszowie

Mam przyjemność zaoferować Państwu działkę budowlaną o powierzchni 1 282 m² , położoną w malowniczej miejscowości Radziszów przy ul. Lipowej . W sąsiedztwie przepływa rzeka, a na samej dz...

360 000,00 zł

Krakowski

Swietne mieszkanie Chrzanów

Chrzanów, ul. Kolonia Stella - 2 pokojowe mieszkanie - 61,06 m 2 , w stanie developerskim, z miejscem postojowym i komórką lokatorską w cenie. Budynek usytuowany jest w otoczeniu duż...

396 890,00 zł

Chrzanów

Mieszkanie na osiedlu, 8 km od centrum Krakowa

BIBICE, 5 POKOI NA PIĘTRZE Z PODDASZEM I BALKONEM MIESZKANIE NA KAMERALNYM, NOWYM OSIEDLU, ZALEDWIE 8 KM OD CENTRUM KRAKOWA Osiedle wśród zieleni zostało zaprojektowane na terenie o kształci...

959 000,00 zł

Bibice

Nowa Pradolina mieszkaniez 2 poziomowe

Nowoczesne mieszkania z ogrodem lub balkonem - Promocyjna przedsprzedaż osiedla "Nowa Pradolina"! Zalety: - Nowoczesne, kameralne osiedle w otoczeniu zieleni - Mieszkania z ogródkami lub b...

691 730,00 zł

Tarnów

Nowa Pradolina

Przedsprzedaż Promocyjna! Tarnów, ul. Skrzyszowska. Osiedle "Nowa Pradolina" to nowa inwestycja składająca się ze 132 mieszkań w niskiej zabudowie szeregowej o pow. od 48 m 2 do 78 m 2 , oraz ...

469 920,00 zł

Tarnów

Nowa Pradolina mieszkaniez 2 poziomowe

Przedsprzedaż Promocyjna! Tarnów, ul. Skrzyszowska. Osiedle "Nowa Pradolina" to nowa inwestycja składająca się ze 132 mieszkań w niskiej zabudowie szeregowej o pow. od 48 m 2 do 78 m 2 , oraz ...

651 955,00 zł

Tarnów

Nowa Pradolina

Przedsprzedaż Promocyjna! Tarnów, ul. Skrzyszowska. Osiedle "Nowa Pradolina" to nowa inwestycja składająca się ze 132 mieszkań w niskiej zabudowie szeregowej o pow. od 48 m 2 do 78 m 2 , oraz ...

469 920,00 zł

Tarnów

Nowa Pradolina

Przedsprzedaż Promocyjna! Tarnów, ul. Skrzyszowska. Osiedle "Nowa Pradolina" to nowa inwestycja składająca się ze 132 mieszkań w niskiej zabudowie szeregowej o pow. od 48 m 2 do 78 m 2 , oraz ...

469 920,00 zł

Tarnów

Facebook
Facebook
Sprzedawanko.pl – serwis ogłoszeń Firmowanko.pl – katalog firm i usług Pracowanko.pl – serwis pracy Ugościmy.pl – serwis noclegów Nporta.pl – katalog firm i usług