📢
🔥 Już Jutro Nowa Promocja tylko na Sprzedawanko.pl! 🔔 Skorzystaj teraz! 🔥

Przestronne mieszkanie w Aleksandrowicach

600 000,00 zł

{{ phone }}

{{ email }}

Dodane przez: braciasadurscy
braciasadurscy
Lokalizacja: Kraków, ul. Kapelanka 1a/1, ul. Kołowa 5/3, ul. Przewóz 47, os. Kazimierzowskie 36
Telefon: {{ phone }}
Udostępnij:

Opublikowano:  | Wygaśnie:

ID ogłoszenia: 17473

Szczegóły

Typ: Sprzedaż
Rynek: Wtórny
Pow. użytkowa m2: 81.7
Pow. całkowita m2: 81.7
Cena za m2 (zł): 7343.94
Liczba pokoi: 3
Liczba sypialni: 2
Rodzaj zabudowy: dom wolnostojący
Piętro: 1
Liczba pięter: 2
Materiał budynku: tradycyjna murowana
Okna: PCV
Rok budowy: 2023
Ogrzewanie: centralne
Stan wykończenia: deweloperski
Własność: Odrębna własność lokalu
Dach: dachówka
Agent: Grzegorz Zębala
E-mail: grzesiek@sadurscy.pl
Telefon kom.: +48 796-541-485
Nr licencji: 23799
Data aktualizacji: 2025-10-29

Opis


Mieszkanie znajduje się w miejscowości Aleksandrowice w rejonie Tenczyńskiego Parku Krajobrazowego Istnieje możliwość wykończenia pod klucz.

W pobliżu przystanek autobusowy, szkoła podstawowa, sklepy spożywcze, ośrodek zdrowia, dom kultury oraz duży plac zabaw. W sąsiedztwie Dolina Aleksandrowicka z licznymi ścieżkami spacerowymi oraz rowerowymi.



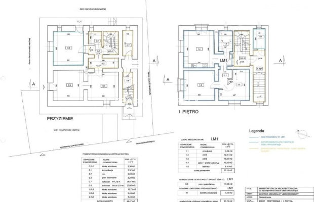
Mieszkanie znajduję się na I piętrze i składa się z :

- Przedpokoju: 6,59 m2

- Pokój: 12,81 m2

- Pokój: 16,05 m2

- Salon + aneks kuchenny: 19,52 m2

- Łazienka: 5,18 m2

- Komórka lokatorska : 4,22 m2

Przyziemie

- Pom. gospodarcze : 17,33 m2

Łączna powierzchnia: 81,70 m2



Pomieszczenia i Komunikacja Wspólna Budynku :

- Kl. Schodowa: 6,36 m2 , Komunikacja: 2,32 m2 , WC: 2,83 m2 , Pomieszczenie techniczne: 5,23 m2 , Schowek: 4,51 m2 , Schowek : 0,60 m2 , Kl. Schodowa: 10,73, Kl. Schodowa: 6,49 m2, Kl. Schodowa: 6, 40 m2

Łączna powierzchnia: 44,47 m2



Możliwość zakupu ogródka do każdego z mieszkań !
Ogrzewanie i ciepła woda z pieca gazowego dwu-funkcyjnego.
Dom po generalnym remoncie, wykonano następujące prace:

- nowy przyłącz elektryczny,
- nowy przyłącz gazowy,
- nowy przyłącz wod-kan,
- nowa więźba dachowa,
- nowa izolacja poddasza,
- nowe pokrycie dachowe,
- nowa stolarka okienna,
- nowe balustrady ze stali nierdzewnej,
- nowa stolarka drzwi wejściowych,
- nowe izolacje podłogowe,
- nowe wylewki,
- nowe tynki wewnętrzne,
- nowe instalacje elektryczne,
- nowe instalacje hydrauliczne,
- nowa instalacja gazowa,
- nowe wentylacje,
- nowa docieplenie elewacji wraz z tynkiem zewnętrznym,
- nowa hydroizolacja ścian fundamentowych wraz z drenażem opaskowym,
- nowa opaska z kostki brukowej wraz ze schodami zewnętrznymi,
- nowa brama automatyczna przesuwna,
- nowe ogrodzenie,
- nowe miejsca postojowe z kostki brukowej,

Istnieje możliwość dokupienia reszty działki, na której stoi Budynek gospodarczy, do własnej aranżacji.


Biuro pomaga w bezpiecznym przeprowadzeniu transakcji.
Serdecznie zapraszam na prezentację.
Grzesiek Zębala
tel. +48 796 541 485

Pośrednik odpowiedzialny zawodowo za wykonanie umowy pośrednictwa: Dariusz Sadurski (licencja nr: 803)


Oferta wysłana z systemu Galactica Virgo

Komentarze (0)

Nic nie znaleziono

Tylko zalogowani użytkownicy mogą dodawać komentarze

Mapa

Formularz kontaktowy

This site is protected by reCAPTCHA and the Google Privacy Policy and Terms of Service apply.

Podobne ogłoszenia

Oferujemy do sprzedaży działkę budowlano‑rolną o łącznej powierzchni 2029 m² (w tym ok. 900 m2 budowlanej) położoną bezpośredni

Oferujemy do sprzedaży działkę budowlano‑rolną o łącznej powierzchni 2029 m² (w tym ok. 900 m2 budowlanej) położoną bezpośrednio przy ulicy Igołomskiej w rejonie objętym Miejscowym Planem Zagospodar...

550 000,00 zł

Kraków

Działka komercyjna o powierzchni 8700 m² położona w miejscowości Rudno, gmina Krzeszowice. Teren w miejscowym planie zagospodar

Działka komercyjna o powierzchni 8700 m² położona w miejscowości Rudno, gmina Krzeszowice. Teren w miejscowym planie zagospodarowania przestrzennego oznaczony jest symbolem U4, przewidzianym pod za...

1 798 000,00 zł

Krakowski

Maciejowice - widokowa działka z przyłączami

Uzbrojona działka budowlana - Maciejowice, gm. Kocmyrzów-Luborzyca Oferujemy wyjątkową działkę budowlaną położoną w malowniczej miejscowości Maciejowice (gmina Kocmyrzów-Luborzyca). Nieruc...

345 000,00 zł

Maciejowice

Idealny dom dla Ciebie! 5 km od Wrocławia

Dom 130 m2, rozkładowy i funkcjonalny, z ogrodem, w zabudowie bliźniaczej, przy cichej, wewnętrznej ulicy. Miłe sąsiedztwo. Doskonała komunikacyjnie lokalizacjaDo Wrocławia 5 km, 13 km do Rynku, a tak...

4 300,00 zł

Pietrzykowice

Klasyczna przedwojenna willa miejska ze schronem

Z prawdziwą przyjemnością oferuję do sprzedania DOM dwukondygnacyjny w wolnostojący z lat 30 XX wieku, o powierzchni ok. 300 m2 usytuowany we Wrocławiu na osiedlu Brochów. Dom posadowiony jest na dzia...

1 890 000,00 zł

Wrocław

DOM Wrocław- Różanka na wynajem

Oferuję do wynajęcia dom w zabudowie bliźniaczej. 3 sypialnie, duży salon z wyjściem na ogród, kuchnia, wc i łazienka.English description belowUKŁAD POMIESZCZEŃNa dwupoziomowy dom w zabudowie bliźniac...

6 600,00 zł

Wrocław

Klimatyczny dom wolnostojący, 5km do Wrocławia.

English version belowDo sprzedania DOM WOLNOSTOJĄCY, Pietrzykowice, gm. Kąty Wrocławskie, 5 km od granic Wrocławia, 12 km do wrocławskiego Rynku DOM niezwykle funkcjonalny, wykończony materiałami najw...

1 470 000,00 zł

Pietrzykowice

Energooszczędny DOM, klima i fotowoltaika w cenie

Nowoczesny dom bliźniaczy - energooszczędność, komfort, styl dla Ciebie! Klimatyzacja i instalacja fotowoltaiczna w cenie. Na sprzedaż wyjątkowy dom jednorodzinny w zabudowie bliźniaczej, położony w m...

430 000,00 zł

Strzelin

Twój nowy dom - 5 pokoi- pompa ciepła Gniechowice

Na sprzedaż energooszczędny dom w zabudowie szeregowej o powierzchni użytkowej 131,73 m2.Wydzielone działki.Rynek pierwotny. Kupujący nie płaci prowizji i podatku PCC.I ETAP INWESTYCJI DEWELOPERSKIEJ ...

1 018 250,00 zł

Gniechowice

Energooszczędny DOM - klima i fotowoltaika w cenie

Nowoczesny dom bliźniaczy - energooszczędność, komfort, styl dla Ciebie! Klimatyzacja i instalacja fotowoltaiczna w cenie.stan deweloperskiNa sprzedaż wyjątkowy dom jednorodzinny w zabudowie bliźniacz...

699 000,00 zł

Strzelin

Twój nowy dom - 5 pokoi- pompa ciepła Gniechowice

Na sprzedaż energooszczędny dom w zabudowie szeregowej o powierzchni użytkowej 131,73 m2.Wydzielone działki.Rynek pierwotny. Kupujący nie płaci prowizji i podatku PCC.I ETAP INWESTYCJI DEWELOPERSKIEJ ...

967 250,00 zł

Gniechowice

Twój nowy dom - 5 pokoi- pompa ciepła Gniechowice

Na sprzedaż energooszczędny dom w zabudowie szeregowej o powierzchni użytkowej 131,73 m2.Wydzielone działki.Rynek pierwotny. Kupujący nie płaci prowizji i podatku PCC.I ETAP INWESTYCJI DEWELOPERSKIEJ ...

982 125,00 zł

Gniechowice

Przestronny dom w mieście dla Twojej rodziny!

English version belowOferuję przestronny i funkcjonalny dom w zabudowie szeregowej, usytuowany na działce 204 m2.Sześć pokoi, kuchnia z jadalnią, trzy łazienki, garaż. UKŁAD POMIESZCZEŃ Na czteropozio...

1 290 000,00 zł

Wrocław

Wolnostojący dom blisko lasu PROMOCJA CENOWA

Na sprzedaż gotowy energooszczędny dom wolnostojący o powierzchni użytkowej 115,70 m2.Dom usytuowany na działce 1087 m2, cztery pokoje, kuchnia w aneksie, dwie łazienki, garderoba, garaż.UKŁAD POMIESZ...

779 000,00 zł

Komorówko

Nowoczesny dom z 2019 r. Chrząstawa Mała

Do sprzedania DOM W ZABUDOWIE BLIŹNIACZEJ, Chrząstawa Mała, gm. Czernica, 13 km od granic Wrocławia.DOM niezwykle funkcjonalny, wykończony materiałami najwyższej klasy oraz w pełni wyposażony w sprzęt...

1 065 000,00 zł

Chrząstawa Mała

Nowy dom 6 pokoi, widok na las, 5 min do Wrocławia

Na sprzedaż nowy, komfortowy dom w zabudowie bliźniaczej o powierzchni użytkowej 167m2 z garażem (powierzchna po podłodze: 184,66 m2)Budynek wg nowoczesnego i autorskiego projektu. Zlokalizowany na du...

945 000,00 zł

Brzezina

Klasyczna przedwojenna willa miejska ze schronem

Z prawdziwą przyjemnością oferuję do sprzedania DOM dwukondygnacyjny w wolnostojący z lat 30 XX wieku, o powierzchni ok. 300 m2 usytuowany we Wrocławiu na osiedlu Brochów. Dom posadowiony jest na dzia...

1 890 000,00 zł

Wrocław

Lokal w centrum miasta-Wrocławska.

Do wynajęcia lokal usługowy - idealny pod branżę beauty! Lokalizacja: ul. Wrocławska, centrum miasta Powierzchnia: 20 m² Poziom: -1 Szukasz przytulnego i eleganckiego miejsca na w...

1 500,00 zł

Kraków

Działka budowlana w Rąblowie, gm. Wąwolnica - MPZP

Na sprzedaż działka o powierzchni 7632m2 położona w malowniczej miejscowości Rąblów, w gm. Wąwolnica(powiat puławski, woj. lubelskie)Cena: 245000złKsięga wieczysta: TAKNajważniejsze informacje:Powier...

245 000,00 zł

Rąblów

Działka 57 arów – Zawada Lanckorońska- Zakliczyn

Działka 57 arów - Zawada Lanckorońska, gm. Zakliczyn, powiat tarnowski (teren MN3) Na sprzedaż atrakcyjna działka o powierzchni 57 arów położona w miejscowości Zawada Lanckorońska , w gmini...

350 000,00 zł

Zawada Lanckorońska

Lokale użytkowe w biurowcu Pabianice

Lokal 190 m.kw w biurowcu 7 pomieszczeń, Pabianice Bestate Nieruchomości oferuje do wynajęcia lokale użytkowe (7 pokoi) o łącznej powierzchni 190 m.kw, usytuowane na pierwszym piętrze w budynku ...

7 410,00 zł

Pabianice

Hala produkcyjno-magazynowa przy ul. Igołomskiej!

Do wynajęcia powierzchnia o przeznaczeniu produkcyjnym lub magazynowym przy ul. Igołomskiej. Hala znajduje się w Strefie Aktywności Gospodarczej Kraków Igołomska Północ przy ul. Badeniego . P...

80 000,00 zł

Kraków

Fantastyczna działka w Radziszowie

Mam przyjemność zaoferować Państwu działkę budowlaną o powierzchni 1 282 m² , położoną w malowniczej miejscowości Radziszów przy ul. Lipowej . W sąsiedztwie przepływa rzeka, a na samej dz...

360 000,00 zł

Krakowski

Swietne mieszkanie Chrzanów

Chrzanów, ul. Kolonia Stella - 2 pokojowe mieszkanie - 61,06 m 2 , w stanie developerskim, z miejscem postojowym i komórką lokatorską w cenie. Budynek usytuowany jest w otoczeniu duż...

396 890,00 zł

Chrzanów

Mieszkanie na osiedlu, 8 km od centrum Krakowa

BIBICE, 5 POKOI NA PIĘTRZE Z PODDASZEM I BALKONEM MIESZKANIE NA KAMERALNYM, NOWYM OSIEDLU, ZALEDWIE 8 KM OD CENTRUM KRAKOWA Osiedle wśród zieleni zostało zaprojektowane na terenie o kształci...

959 000,00 zł

Bibice

Nowa Pradolina mieszkaniez 2 poziomowe

Nowoczesne mieszkania z ogrodem lub balkonem - Promocyjna przedsprzedaż osiedla "Nowa Pradolina"! Zalety: - Nowoczesne, kameralne osiedle w otoczeniu zieleni - Mieszkania z ogródkami lub b...

691 730,00 zł

Tarnów

Nowa Pradolina

Przedsprzedaż Promocyjna! Tarnów, ul. Skrzyszowska. Osiedle "Nowa Pradolina" to nowa inwestycja składająca się ze 132 mieszkań w niskiej zabudowie szeregowej o pow. od 48 m 2 do 78 m 2 , oraz ...

469 920,00 zł

Tarnów

Nowa Pradolina mieszkaniez 2 poziomowe

Przedsprzedaż Promocyjna! Tarnów, ul. Skrzyszowska. Osiedle "Nowa Pradolina" to nowa inwestycja składająca się ze 132 mieszkań w niskiej zabudowie szeregowej o pow. od 48 m 2 do 78 m 2 , oraz ...

651 955,00 zł

Tarnów

Facebook
Facebook
Sprzedawanko.pl – serwis ogłoszeń Firmowanko.pl – katalog firm i usług Pracowanko.pl – serwis pracy Ugościmy.pl – serwis noclegów Nporta.pl – katalog firm i usług