📢
🔥 Już Jutro Nowa Promocja tylko na Sprzedawanko.pl! 🔔 Skorzystaj teraz! 🔥

MIESZKANIE NA SPOKOJNYM OSIEDLU, UL. DŁUGA

759 000,00 zł

{{ phone }}

{{ email }}

Dodane przez: HomePartner
HomePartner
Lokalizacja: Długa
Telefon: {{ phone }}
Udostępnij:

Opublikowano:  | Wygaśnie:

ID ogłoszenia: 17228

Szczegóły

Typ: Sprzedaż
Pow. użytkowa m2: 49.83
Liczba pokoi: 2
Liczba sypialni: 1
Rodzaj zabudowy: blok
Piętro: 2
Liczba pięter: 9
Okna: PCV
Podłogi: beton
Rok budowy: 2022
Ogrzewanie: miejskie
Stan wykończenia: do wykończenia
Własność: własność
Agent: Monika Łabęska - Cioch
E-mail: biuro@home-partner.com.pl
Telefon kom.: 536 496 163
Telefon biuro:
Nr licencji: 23243
Data aktualizacji: 2025-10-10 06:58:15

Opis

MIESZKANIE IDEALNE DLA PARY LUB NA WYNAJEM

Bez prowizji i podatku PCC

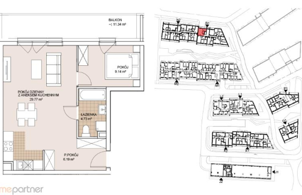
Na sprzedaż 2-pokojowe mieszkanie o powierzchni 49,83 m2 znajdujące się na 2 piętrze inwestycji deweloperskiej, zlokalizowanej przy ul. Długiej (Stare Miasto).

Mieszkanie gotowe do odbioru

INWESTYCJA

Osiedle ma charakter spokojnej przystani - nieopodal centrum miasta a jednak otoczonej terenami zieleni. Inwestycja przypomina zacumowane w porcie statki a kaskadowa kompozycja nadaje osiedlu dynamiczności. Elewacja jest jasna, nowoczesna, przełamana dużymi przeszkleniami, dzięki którym każde mieszkanie jest dobrze doświetlone.

Mieszkanie składa się z:

- salonu z aneksem kuchennym 29,77 m2

- pokoju 9,14 m2

- łazienki 4,73 m2

- przedpokoju 6,19 m2

Do mieszkania przynależy duży balkon o powierzchni 11,34 m2

Ekspozycja północno-wschodnia

LOKALIZACJA

Osiedle zlokalizowane tuż przy Odrze, na Starym Mieście. Wzdłuż rzeki rozciągają się tereny spacerowe, nieopodal Górka Szczepińska oraz pobliskie parki: Popowicki i Zachodni. W niedalekiej odległości zlokalizowane jest Centrum Handlowe Magnolia Park oraz liczne ośrodki biznesowe i biurowe, a także Hala Orbita oraz plaża miejska HotSpot Beach Bar.

Inwestycja jest dobrze skomunikowana z resztą miasta, do centrum prowadzą liczne linie autobusowe oraz linia tramwajowa. Mieszkańcy mogą korzystać również z przystanku PKP Szczepin, zlokalizowanego tuż przy inwestycji, z którego dojechać można w 10 minut na Dworzec Główny, 3 minuty na dworzec Nadodrze i 10 minut na dworzec Psie Pole.

KOMUNIKACJA

- 400 m przystanek autobusowy

- 400 m przystanek tramwajowy

- 2,7 km do CH Magnolia Park

- 30 minut spacerem do Rynku

Miejsce postojowe w podziemnej hali garażowej w cenie 59 000 zł

Komórka lokatorska w cenie 4 500 zł/m2

W ofercie również inne powierzchnie mieszkań

Zapraszam do kontaktu 889 759 863 / For more information please call us

+48 889 759 863.

Por favor contáctenos para conocer más sobre la oferta y ver el apartamento. Podemos ayudar con todos los trámites. Para más información por favor llámanos +48 889 759 863.

Treść niniejszego ogłoszenia nie stanowi oferty handlowej w rozumieniu Kodeksu Cywilnego.

Oferta wysłana z programu IMO dla biur nieruchomości

Komentarze (0)

Nic nie znaleziono

Tylko zalogowani użytkownicy mogą dodawać komentarze

Mapa

Formularz kontaktowy

This site is protected by reCAPTCHA and the Google Privacy Policy and Terms of Service apply.

Podobne ogłoszenia

2 pok, duży balkon, osoba kuchnia, parking, tv ENG

English version bellow Do wynajęcia funkcjonalne i ciche mieszkanie o powierzchni 51,5 m² w spokojnej części Bronowic, położone na 4. z 5 pięter w budynku z windą. Lokal po odświeżeniu, gotowy ...

3 300,00 zł

Kraków

Przytulne mieszkanie / garaż / UJ / MPK /Zakrzówek

Biuro Nieruchomości Bracia Sadurscy ma przyjemność zaprezentować przestronne i jasne mieszkanie w sąsiedztwie Zakrzówka. Mieszkanie znajduje się w świetnie skomunikowanej okolicy. Szybki doj...

2 800,00 zł

Kraków

Nowoczesne 3‑pokojowe mieszkanie z klimatyzacją przy ul. Walerego Sławka - gotowe do wprowadzenia! Na sprzedaż jasne, przes

Nowoczesne 3‑pokojowe mieszkanie z klimatyzacją przy ul. Walerego Sławka - gotowe do wprowadzenia! Na sprzedaż jasne, przestronne, rozkładowe mieszkanie o powierzchni 56,01 m² , położone w ...

988 000,00 zł

Kraków

Klasyczna przedwojenna willa miejska ze schronem

Z prawdziwą przyjemnością oferuję do sprzedania DOM dwukondygnacyjny w wolnostojący z lat 30 XX wieku, o powierzchni ok. 300 m2 usytuowany we Wrocławiu na osiedlu Brochów. Dom posadowiony jest na dzia...

1 890 000,00 zł

Wrocław

Klasyczna przedwojenna willa miejska ze schronem

Z prawdziwą przyjemnością oferuję do sprzedania DOM dwukondygnacyjny w wolnostojący z lat 30 XX wieku, o powierzchni ok. 300 m2 usytuowany we Wrocławiu na osiedlu Brochów. Dom posadowiony jest na dzia...

1 890 000,00 zł

Wrocław

Zabytkowy Zespół Dworsko-Parkowy (XIXw. 1880 r)

Na sprzedaż wyjątkowa nieruchomość zabytkowy Zespół Dworsko-Parkowy (XIXw. budowany do ok. 1880 r).Malowniczy zabytkowy zespół dworsko-parkowy w Turce/k. Lublina wybudowany został w latach 1861-1878 ...

10 500 000,00 zł

Turka

Dom wolno stojący - Czyżyny!

*zdjęcia należą do właściciela oferty. Dom wolno stojący na osiedlu domów jednorodzinnych w Czyżynach o pow.: 230,03 m 2 , na działce - 665 m 2 . Przestronny, komfortowy dom w bardzo dobrym s...

3 200 000,00 zł

Kraków

3 pokoje na Woli Justowskiej - 67,37m2

* zdjęcia należą do właściciela oferty 3 pokoje - Wola Justowska - 67,37m2 Do sprzedania mieszkanie w nowej inwestycji przy ulicy Borowego na Woli Justowskiej , wykończone p...

1 715 000,00 zł

Kraków

Dwa drewniane domy z czterema lokalami

Dwa drewniane domy z czterema lokalami mieszkalnymi w Łapszach Wyżnych Oferujemy na sprzedaż dwa budynki mieszkalne , jednorodzinne, wolnostojące w Łapszach Wyżnych. Domy są parterowe z uż...

2 449 000,00 zł

Łapsze Wyżne

Dwa drewniane domy z czterema lokalami

Dwa drewniane domy z czterema lokalami mieszkalnymi w Łapszach Wyżnych Oferujemy na sprzedaż dwa budynki mieszkalne , jednorodzinne, wolnostojące w Łapszach Wyżnych. Domy są parterowe z uż...

2 449 000,00 zł

Łapsze Wyżne

2 SYPIALNIE NOWA HUTA WANDA 44 M2 OSOBNA KUCHNIA

2 POKOJE SYPIALNIANE / 44 M2 / 9 PIĘTRO / WINDA / NOWA HUTA / BALKON / WIDOK / PRZYJAZNE ZWIERZĘTOM KTO MOŻE ZAMIESZKAĆ ❓ Mieszkanie jest idealne dla singla , rodziny 2+1, przyjaciół, s...

2 200,00 zł

Kraków

M-3 POK 4 PIĘTRO 53 M2 HOME OFFICE BALKON PREMIUM

3 POKÓJ / 53 M2 / 4 PIĘTRO / MIEJSCE POSTOJOWE / PRĄDNIK CZERWONY / PRACA ZDALNA / BALKON / BLISKO SERENADA / PREMIUM KTO MOŻE ZAMIESZKAĆ ❓ Mieszkanie jest idealne dla osób pracujących z...

3 700,00 zł

Kraków

2 pokoje + osobna kuchnia, blisko tramwaj, Park

Mieszkanie pełne możliwości - ul. Ułanów, Kraków Ta oferta to doskonała propozycja dla osób, które cenią sobie dobrą lokalizację, funkcjonalny układ i możliwość stworzenia wnętrza dopasowanego ...

599 000,00 zł

Kraków

Nowe 2-pokojowe z ogródkiem i parkingiem

* zdjęcia należą do właściciela mieszkania Kraków, Grzegórzki / Dąbie - 2 pokoje z ogródkiem 30m2 i z miejscem parkingowym Cena mieszkania: Powierzchnia: 41,64m2 Ogródek: 30m2 Stan nier...

920 000,00 zł

Kraków

Do wynajęcia mieszkanie o powierzchni 41 m2 położone przy ul. Piotra Skargi. Nieruchomość zlokalizowana na drugim piętrze. Sk

Do wynajęcia mieszkanie o powierzchni 41 m2 położone przy ul. Piotra Skargi. Nieruchomość zlokalizowana na drugim piętrze. Składa się z salonu z wyjściem na duży balkon, sypialni, kuchni, łazienk...

1 400,00 zł

Tarnów

3 pok Modrzejewskiej, Krowodrza

3-pokojowy lokal na wynajem - ul. Heleny Modrzejewskiej, Krowodrza - Azory Do wynajęcia przestronny lokal o powierzchni 72 m², położony na drugim piętrze w niskim, kameralnym budynku. Lokal ...

3 000,00 zł

Kraków

Maciejowice - widokowa działka z przyłączami

Uzbrojona działka budowlana - Maciejowice, gm. Kocmyrzów-Luborzyca Oferujemy wyjątkową działkę budowlaną położoną w malowniczej miejscowości Maciejowice (gmina Kocmyrzów-Luborzyca). Nieruc...

345 000,00 zł

Maciejowice

3 pok Modrzejewskiej, Krowodrza

3-pokojowe mieszkanie na wynajem - ul. Heleny Modrzejewskiej, Krowodrza - Azory Do wynajęcia przestronne mieszkanie o powierzchni 72 m², położone na drugim piętrze w niskim, kameralnym budyn...

3 000,00 zł

Kraków

2-pok./nowe budownictwo/winda/do wejscia/Łagiewnik

Jasne, 2-pok. mieszkanie z 2011r. w Borku Fałęckim, ul. Zbrojarzy, gotowe do wejścia Do sprzedaży oferujemy 2-pok.mieszkanie o pow. 36,21 m 2 usytuowane na 2.piętrze w 3.piętrowym budynku z...

555 000,00 zł

Kraków

Dom na wsi w Przyłęku pow. Zwoleń, mazowieckie.

Siedlisko ( dom murowany 55 m2 plus budynki gospodarcze ) na działce o pow. 0,36 ha (3623 m2) w cichej i spokojnej miejscowości Przyłęk gm. Przyłęk pow. zwoleński woj. mazowieckie w bliskiej odległo...

195 000,00 zł

Przyłęk

PIĘKNY DOM W DOBREJ CENIE NA ATRAKCYJNEJ DZIAŁCE

SOLIDNY, PONADCZASOWY W ATRAKCYJNEJ CENIE NA DUŻEJ 55 AR ZAGOSPODAROWANEJ DZIAŁCE LOKALIZACJA, DZIAŁKA Z przyjemnością prezentujemy atrakcyjną ofertę sprzedaż...

1 990 000,00 zł

Mogilany

2 pokoje przy Bonarce

2 pokoje | Od zaraz | Pets Friendly Biuro Nieruchomości Bracia Sadurscy ma przyjemność zaprezentować komfortowe mieszkanie dwupokojowe o powierzchni 37,55 m² , zlokalizowane w nowoczesn...

2 700,00 zł

Kraków

2 pokojowe przy Bonarce

2 pokoje | Od zaraz | Pets Friendly Biuro Nieruchomości Bracia Sadurscy ma przyjemność zaprezentować komfortowe mieszkanie o powierzchni 38 m² , zlokalizowane w nowoczesnym kompleksie p...

2 600,00 zł

Kraków

GUSTOWNE, PIEKNE, SŁONECZNE 3-POKOJOWE Z BALKONEM

ATRAKCYJNE, GOTOWE DO WEJŚCIA, PO GENERALNYM REMONCIE W BARDZO DOBREJ LOKALIZACJI MIESZKANIE, BUDYNEK Z dużą przyjemnością prezentujemy bardzo atrakcyjne mies...

792 000,00 zł

Kraków

Nowoczesna kawalerka przy Bonarce

Kawalerka | Od zaraz | Pets Friendly Biuro Nieruchomości Bracia Sadurscy ma przyjemność zaprezentować komfortową kawalerkę o powierzchni 25,32 m² , zlokalizowaną w nowoczesnym kompleksi...

1 990,00 zł

Kraków

Kawalerka 30 m2 (oddzielna kuchnia) centrum Puław.

Mieszkanie (kawalerka z oddzielną kuchnią oraz balkonem) o pow. 30 m2 po generalnym remoncie w bardzo dobrym stanie technicznym na drugim piętrze kamienicy w centrum Puław woj. lubelskie.Mieszkanie: p...

270 000,00 zł

Puławy

Blisko Nałęczowa, 3 pokoje z garażem i działką.

** Oferta tylko w Biurze KNC City **** Klucze w biurze - możliwość prezentacji w dogodnej porze **NIEZABITÓW gm.Poniatowa: polecam do zakupu mieszkanie 3 pokojowe o pow. 63 m² zlokalizowane na 2 pięt...

299 000,00 zł

Niezabitów

Zabytkowy Zespół Dworsko-Parkowy (XIXw. 1880 r)

Na sprzedaż wyjątkowa nieruchomość zabytkowy Zespół Dworsko-Parkowy (XIXw. budowany do ok. 1880 r).Malowniczy zabytkowy zespół dworsko-parkowy w Turce/k. Lublina wybudowany został w latach 1861-1878 ...

10 500 000,00 zł

Turka

Facebook
Facebook
Sprzedawanko.pl – serwis ogłoszeń Firmowanko.pl – katalog firm i usług Pracowanko.pl – serwis pracy Ugościmy.pl – serwis noclegów Nporta.pl – katalog firm i usług