📢
🔥 Już Jutro Nowa Promocja tylko na Sprzedawanko.pl! 🔔 Skorzystaj teraz! 🔥

Twój nowy dom - 5 pokoi- pompa ciepła Gniechowice

1 018 250,00 zł

{{ phone }}

{{ email }}

Dodane przez: HomePartner
HomePartner
Lokalizacja: Lipowa
Telefon: {{ phone }}
Udostępnij:

Opublikowano:  | Wygaśnie:

ID ogłoszenia: 17181

Szczegóły

Typ: Sprzedaż
Pow. użytkowa m2: 131.73
Pow. działki m2: 330
Pow. całkowita m2: 131.73
Liczba pokoi: 5
Liczba sypialni: 4
Liczba pięter: 1
Rodzaj zabudowy: szeregowy
Materiał budynku: ceramiczny Porotherm
Okna: PCV
Podłogi: beton
Rok budowy: 2025
Ogrzewanie: pompa ciepła
Własność: własność
Dach: dachówka ceramiczna
Agent: Monika Łabęska - Cioch
E-mail: biuro@home-partner.com.pl
Telefon kom.: 536 496 163
Telefon biuro:
Nr licencji: 23243
Data aktualizacji: 2025-10-21 14:28:54

Opis

Na sprzedaż energooszczędny dom w zabudowie szeregowej o powierzchni użytkowej 131,73 m2.Wydzielone działki.

Rynek pierwotny. Kupujący nie płaci prowizji i podatku PCC.

I ETAP INWESTYCJI DEWELOPERSKIEJ W GNIECHOWICACH. Docelowo zaprojektowano 10 domów w zabudowie szeregowej na działkach o wielkościach od 210 do 470 m2.

Zakończenie budowy GRUDZIEŃ 2025 r

Przekazanie domów: I Q 2026 r.

Przeniesienie własności: II Q 2026 r.

Rynek pierwotny. Kupujący nie płaci prowizji i podatku PCC.

Dom J, z ogrodem, usytuowany na działce 330 m2, pięć pokoi, kuchnia w aneksie, dwie łazienki, garaż. W cenie pełna pompa ciepła, rolety zewnętrzne na parterze, kabel do fotowoltaiki.

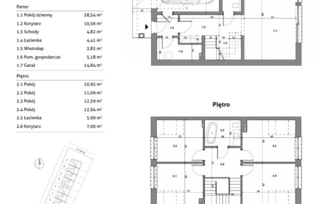
UKŁAD POMIESZCZEŃ

Parter: obszerny salon z aneksem kuchennym (28,54 m2) i z wyjściem na taras/ogród o wschodnio-południowej ekspozycji, łazienka (4,41 m2), pomieszczenie gospodarcze (5,18m2), garaż w bryle budynku (14,84)

I piętro: cztery ustawne sypialnie (10,95 m2, 11,09 m2, 12,59 m2, 12,94 m2, łazienka (5,99m2)

STANDARD

Podwyższony standard wykończenia:

- oszczędna pompa ciepła z możliwością chłodzenia w upalne dni

- kabel do instalacji fotowoltaicznej

- komfortowe i funkcjonalne ogrzewanie podłogowe w całym domu

- rolety zewnętrzne sterowane automatycznie na parterze budynku

- światłowód

- drzwi antywłamaniowe klasy C renomowanej firmy

- powierzchnie tarasów z płyt betonowych lub deski kompozytowej

- ściany z porothermu, dachówka ceramiczna

-okna pcv pięciokomorowe trzyszybowe

- ogrzewanie podłogowe , również w garażu

zbiornik na deszczówkę 4 tys litrów wkopany w ziemię

- dachówka ceramiczna z powłoką antyglonową

MEDIA

prąd, woda, zbiornik bezodpływowy

CENA: 1 018 250 zł

LOKALIZACJA I KOMUNIKACJA

Dom położony jest w miejscowości Gniechowice, w gminie Kąty Wrocławskie.

Spokojna i zielona okolica. Położenie na skraju Parku Krajobrazowego Doliny Bystrzycy daje możliwość kontaktu z pięknem natury i prowadzenia aktywnego trybu życia.

Dobry dojazd :

- do centrum Wrocławia - ok.25 min.

- do Centrum Handlowego Bielany Wrocławskie ok. 14 min

- do Kątów Wrocławskich 8 min.

- do Sobótki - 13 min.

- do Kobierzyc - 11 min.

- do autostrady A4 - 10 min.

- do portu lotniczego Wrocław- 20 min.

- do pałacu Krobielowice - 4km

Kursują także gminne autobusy, autobusy międzymiastowe oraz prywatne busy.

TEREN NIEZALEWOWY

Dom zlokalizowany z dala od zgiełku aglomeracji. Jednocześnie bliskość Wrocławia powoduje, że można łączyć pracę zawodową w mieście ze spokojem i ciszą wsi. W miejscowości sklep, kościół, restauracja, sklep Lewiatan, cukiernia i piekarnia, a także szkołą podstawowa, przedszkole w pobliskim Pustkowie Żurawskim oddalonym o ok. 6 km.

ZALETY OFERTY:

- doskonała lokalizacja

- funkcjonalny układ domu

- 5 pokoi

- spokojna okolica

- podwyższony standard wykończenia

Zapraszam do rozmów i obejrzenia domu. www.home-partner.com.pl Tel. 536 496 163

Feel free to contact us, talk and see the apartment. For more information please call us Tel +48 889 759 863.

Por favor contáctenos para conocer más sobre la oferta y ver el apartamento. Podemos ayudar con todos los trámites. Para más información por favor llámanos +48 889 759 863.

Treść niniejszego ogłoszenia nie stanowi oferty handlowej w rozumieniu Kodeksu Cywilnego.

Oferta wysłana z programu IMO dla biur nieruchomości

Komentarze (0)

Nic nie znaleziono

Tylko zalogowani użytkownicy mogą dodawać komentarze

Mapa

Formularz kontaktowy

This site is protected by reCAPTCHA and the Google Privacy Policy and Terms of Service apply.

Podobne ogłoszenia

3 pok Modrzejewskiej, Krowodrza

3-pokojowy lokal na wynajem - ul. Heleny Modrzejewskiej, Krowodrza - Azory Do wynajęcia przestronny lokal o powierzchni 72 m², położony na drugim piętrze w niskim, kameralnym budynku. Lokal ...

3 000,00 zł

Kraków

Maciejowice - widokowa działka z przyłączami

Uzbrojona działka budowlana - Maciejowice, gm. Kocmyrzów-Luborzyca Oferujemy wyjątkową działkę budowlaną położoną w malowniczej miejscowości Maciejowice (gmina Kocmyrzów-Luborzyca). Nieruc...

345 000,00 zł

Maciejowice

3 pok Modrzejewskiej, Krowodrza

3-pokojowe mieszkanie na wynajem - ul. Heleny Modrzejewskiej, Krowodrza - Azory Do wynajęcia przestronne mieszkanie o powierzchni 72 m², położone na drugim piętrze w niskim, kameralnym budyn...

3 000,00 zł

Kraków

2-pok./nowe budownictwo/winda/do wejscia/Łagiewnik

Jasne, 2-pok. mieszkanie z 2011r. w Borku Fałęckim, ul. Zbrojarzy, gotowe do wejścia Do sprzedaży oferujemy 2-pok.mieszkanie o pow. 36,21 m 2 usytuowane na 2.piętrze w 3.piętrowym budynku z...

555 000,00 zł

Kraków

Dom na wsi w Przyłęku pow. Zwoleń, mazowieckie.

Siedlisko ( dom murowany 55 m2 plus budynki gospodarcze ) na działce o pow. 0,36 ha (3623 m2) w cichej i spokojnej miejscowości Przyłęk gm. Przyłęk pow. zwoleński woj. mazowieckie w bliskiej odległo...

195 000,00 zł

Przyłęk

PIĘKNY DOM W DOBREJ CENIE NA ATRAKCYJNEJ DZIAŁCE

SOLIDNY, PONADCZASOWY W ATRAKCYJNEJ CENIE NA DUŻEJ 55 AR ZAGOSPODAROWANEJ DZIAŁCE LOKALIZACJA, DZIAŁKA Z przyjemnością prezentujemy atrakcyjną ofertę sprzedaż...

1 990 000,00 zł

Mogilany

2 pokoje przy Bonarce

2 pokoje | Od zaraz | Pets Friendly Biuro Nieruchomości Bracia Sadurscy ma przyjemność zaprezentować komfortowe mieszkanie dwupokojowe o powierzchni 37,55 m² , zlokalizowane w nowoczesn...

2 700,00 zł

Kraków

2 pokojowe przy Bonarce

2 pokoje | Od zaraz | Pets Friendly Biuro Nieruchomości Bracia Sadurscy ma przyjemność zaprezentować komfortowe mieszkanie o powierzchni 38 m² , zlokalizowane w nowoczesnym kompleksie p...

2 600,00 zł

Kraków

GUSTOWNE, PIEKNE, SŁONECZNE 3-POKOJOWE Z BALKONEM

ATRAKCYJNE, GOTOWE DO WEJŚCIA, PO GENERALNYM REMONCIE W BARDZO DOBREJ LOKALIZACJI MIESZKANIE, BUDYNEK Z dużą przyjemnością prezentujemy bardzo atrakcyjne mies...

799 000,00 zł

Kraków

Nowoczesna kawalerka przy Bonarce

Kawalerka | Od zaraz | Pets Friendly Biuro Nieruchomości Bracia Sadurscy ma przyjemność zaprezentować komfortową kawalerkę o powierzchni 25,32 m² , zlokalizowaną w nowoczesnym kompleksi...

1 990,00 zł

Kraków

Kawalerka 30 m2 (oddzielna kuchnia) centrum Puław.

Mieszkanie (kawalerka z oddzielną kuchnią oraz balkonem) o pow. 30 m2 po generalnym remoncie w bardzo dobrym stanie technicznym na drugim piętrze kamienicy w centrum Puław woj. lubelskie.Mieszkanie: p...

270 000,00 zł

Puławy

Blisko Nałęczowa, 3 pokoje z garażem i działką.

** Oferta tylko w Biurze KNC City **** Klucze w biurze - możliwość prezentacji w dogodnej porze **NIEZABITÓW gm.Poniatowa: polecam do zakupu mieszkanie 3 pokojowe o pow. 63 m² zlokalizowane na 2 pięt...

299 000,00 zł

Niezabitów

Zabytkowy Zespół Dworsko-Parkowy (XIXw. 1880 r)

Na sprzedaż wyjątkowa nieruchomość zabytkowy Zespół Dworsko-Parkowy (XIXw. budowany do ok. 1880 r).Malowniczy zabytkowy zespół dworsko-parkowy w Turce/k. Lublina wybudowany został w latach 1861-1878 ...

10 500 000,00 zł

Turka

DO WEJŚCIA / 3 POKOJE / OGRÓDEK / BLISKO KRAKOWA

BLISKO KRAKOWA / KOMFORTOWE 3 POKOJE / OGRÓDEK / ZIELEŃ / CISZA / BEZCZYNSZOWE * zdjęcia należą do Właściciela oferty Mam przyjemność zaoferować segment w zabudowie szeregowej zl...

797 000,00 zł

Myślenicki

Nowe 3 pok, ul Jantarowa Krzyki

DO WYNAJĘCIA od zaraz 3 pokoje ul. Jantarowa, KrzykiOferuję do wynajęcia od zaraz 3 pokojowe mieszkanie po generalnym remoncieUKŁAD POMIESZCZEŃNa mieszkanie usytuowane na parterze o powierzchni 53 m2 ...

3 100,00 zł

Wrocław

2 pokoje z 2 m. post. ul. Inżynierska Corte Verona

Oferuję do wynajęcia od 1 grudnia 2025 r. nowocześnie urządzone dwupokojowe mieszkanie przy ul. Inżynierskiej z dwoma miejscami postojowymi w garażu podziemnym, położone w zamkniętym i chronionym komp...

2 700,00 zł

Wrocław

2 pok. mieszkanie ul Gwiaździsta, nowoczesne

Do wynajęcia od grudnia mieszkanie 2-pokojowe plus balkon, 42 m2 położone w apartamentowcu przy ul. Gwiaździstej, KrzykiEnglish description belowUKŁAD POMIESZCZEŃNa mieszkanie usytuowane na 2 piętrze ...

2 990,00 zł

Wrocław

Nowa kawalerka - ul. Śliczna, od 01.11.2025

Do wynajęcia od połowy listopada w pełni wyposażona kawalerka, PO GENERALNYM REMONCIE. Mieszkanie znajduje się przy ul. Ślicznej, boczna al. Armii Krajowej.UKŁAD POMIESZCZEŃNa mieszkanie usytuowane na...

2 400,00 zł

Wrocław

Kawalerka z garderobą i balkonem - Legnicka

Oferuję do wynajęcia KAWALERKĘ z BALKONEM ul. Legnicka/ Przedmiejska.UKŁAD POMIESZCZEŃ Na mieszkanie usytuowane na 5 piętrze o powierzchni ok. 31,36 m2 składają się:- pokój dzienny z aneksem kuchennym...

2 300,00 zł

Wrocław

OSTATNIA SZANSA! Mieszkanie gotowe do odbioru!

PRZESTRZENNE MIESZKANIE Z OGRODEM W CICHEJ OKOLICYBrak prowizji i podatku PCC Na sprzedaż mieszkanie o powierzchni 77,06 m2 znajdujące się na parterze inwestycji na wrocławskim Psim Polu. Mieszkanie g...

949 000,00 zł

Wrocław

OSTATNIA SZANSA! Mieszkanie gotowe do odbioru!

PRZESTRZENNE MIESZKANIE Z BALKONEM W CICHEJ OKOLICYBrak prowizji i podatku PCCNa sprzedaż mieszkanie o powierzchni 49,70 m2 znajdujące się na 2 piętrze inwestycji na wrocławskim Psim Polu. Mieszkanie ...

699 000,00 zł

Wrocław

Ciche 2 pokoje z oddzielna kuchnią

Do wynajęcia od października mieszkanie 2 pokoje z oddzielną kuchnią ul. Gołężycka, Wrocław, Fabryczna, osiedle Kozanów- 49 m2.FUNKCJONALNOŚĆMieszkanie bardzo przyjemne i zadbane, dwustronne, z dużym ...

2 200,00 zł

Wrocław

3-POKOJOWE MIESZKANIE, STARE MIASTO

3-POKOJOWE MIESZKANIE IDEALNE DLA RODZINY, SZCZEPINBez prowizji i podatku PCCNa sprzedaż 3-pokojowe mieszkanie o powierzchni 58,87 m2 znajdujące się na parterze inwestycji deweloperskiej, zlokalizowan...

999 000,00 zł

Wrocław

Mieszkanie, ogródek, komórka i parking w cenie!

3-POKOJOWE MIESZKANIE Z DUŻYM OGRODEMBez prowizji i podatku PCCW ofercie różne powierzchnie mieszkańMiejsce postojowe i komórka lokatorska w cenie!Planowany termin odbioru: IV kwartał 2025 r.Na sprzed...

740 831,00 zł

Siechnice

Oaza Spokoju: mieszkanie gotowe do odbioru

Rynek pierwotny - bez PCC i prowizjiNa sprzedaż 3-pokojowe mieszkanie o powierzchni 51,60 m2, znajdujące się 4 piętrze inwestycji deweloperskiej, zlokalizowanej przy ulicy Odolanowskiej.Mieszkanie got...

719 000,00 zł

Wrocław

Mieszkanie willowe z komórką i parkingiem w cenie!

2-POKOJOWE MIESZKANIE Z BALKONEM Bez prowizji i podatku PCCW ofercie różne powierzchnie mieszkańMiejsce postojowe i komórka lokatorska w cenie!Planowany termin odbioru: IV kwartał 2025 r.Na sprzedaż f...

635 067,00 zł

Siechnice

Mieszkanie z ogródkiem nad rzeką!

Kawalerka z możliwością wydzielenia sypialni, z ogródkiem, przy rzece!Bez prowizji i podatku PCCW ofercie również inne powierzchnie mieszkańNa sprzedaż 1-pokojowe mieszkanie o powierzchni 39,4 m2 znaj...

666 606,00 zł

Wrocław

Oaza Spokoju: mieszkanie gotowe do odbioru! OKAZJA!

PRZESTRZENNE MIESZKANIE Z DWOMA BALKONAMI W CICHEJ OKOLICYBrak prowizji i podatku PCC Na sprzedaż mieszkanie o powierzchni 74,23 m2 znajdujące się na 1 piętrze inwestycji na wrocławskim Psim Polu. Mie...

869 000,00 zł

Wrocław

Facebook
Facebook
Sprzedawanko.pl – serwis ogłoszeń Firmowanko.pl – katalog firm i usług Pracowanko.pl – serwis pracy Ugościmy.pl – serwis noclegów Nporta.pl – katalog firm i usług