
| Dodane przez: | braciasadurscy |
| Lokalizacja: | Pękowicka |
| Telefon: | {{ phone }} |
| Udostępnij: |
Opublikowano: | Wygaśnie:
ID ogłoszenia: 15854
| Typ: | Sprzedaż |
| Rynek: | Pierwotny |
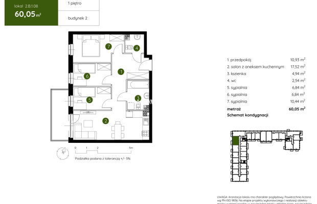
| Pow. użytkowa m2: | 60.05 |
| Cena za m2 (zł): | 16400 |
| Liczba pokoi: | 4 |
| Rodzaj zabudowy: | blok |
| Piętro: | 1 |
| Liczba pięter: | 3 |
| Materiał budynku: | pustak |
| Okna: | PCV |
| Rok budowy: | 2024 |
| Ogrzewanie: | C.O. miejskie |
| Stan wykończenia: | deweloperski |
| Własność: | Odrębna własność lokalu |
| Agent: | Patrycja Rubinkiewicz |
| E-mail: | patrycja@sadurscy.pl |
| Telefon kom.: | +48 505-236-943 |
| Data aktualizacji: | 2025-10-16 |
Z ogromną przyjemnością przedstawiamy Państwu ofertę mieszkania na sprzedaż w malowniczym rejonie Doliny Prądnika, na północy Krakowa, blisko granicy z gminą Zielonki. Nowoczesne osiedle otoczone jest rozległymi terenami zielonymi, co umożliwia codzienny kontakt z naturą i zapewnia wytchnienie od intensywnego miejskiego życia w centrum miasta.
Osiedle zostało zaprojektowane z myślą o rodzinach, parach oraz singlach, oferując szeroki wybór mieszkań o powierzchni od 26 do 73 m², w układach 1-, 2-, 3- i 4-pokojowych. Dbałość o komfort mieszkańców przejawia się w wysokiej jakości przestrzeni wspólnych, które sprzyjają nawiązywaniu sąsiedzkich relacji: skwer z ławeczkami, plac zabaw...
Budynki nowej inwestycji mające 3 i 4 kondygnacje, wyróżniają się kameralną architekturą, harmonizującą z okolicą. Przestronność obiektów gwarantuje mieszkańcom poczucie prywatności.
Zalety:
Home Management System to zaawansowana technologia inteligentnego domu, która umożliwia m.in. zarządzanie ogrzewaniem, oświetleniem i zaworami wody.
Pakiet antysmogowy w postaci filtrów montowanych w nawiewnikach okiennych dba o czystość powietrza we wnętrzach mieszkań.
Wysoki standard wykończenia części wspólnych obejmuje trwałe płytki gresowe, dekoracyjne panele imitujące drewno oraz energooszczędne oświetlenie LED.
Mieszkania na parterze posiadają tarasy z ogrodami o powierzchni do 123 m², natomiast mieszkania na wyższych kondygnacjach oferują przestronne balkony.
Termoizolacyjne łączniki balkonowe zapobiegają utracie ciepła, co przekłada się na oszczędności energetyczne.
Portfenetrowe okna zapewniają doskonałe doświetlenie wnętrz.
Na terenie osiedla zostanie zainstalowana stacja ładowania pojazdów elektrycznych, z myślą o mieszkańcach korzystających z ekologicznych środków transportu.
Zielone dachy budynków będą nie tylko estetyczne, ale również poprawią jakość powietrza i obniżą temperaturę otoczenia.
Prądnik biały to doskonale skomunikowana okolica, idealne miejsce dla osób szukających spokoju i bliskości natury, z jednoczesnym dostępem do nowoczesnych rozwiązań technologicznych.
Serdecznie zapraszam do kontaktu
--------------------------
::GRATIS | Nasza prowizja zawiera: koszt przedwstępnej notarialnej umowy sprzedaży nieruchomości z rynku wtórnego.
::GWARANCJA | Gwarancja zwrotu zadatku. Więcej informacji na sadurscy.pl/zwrot-zadatku/
Oferta wysłana z systemu Galactica Virgo
Nic nie znaleziono
Tylko zalogowani użytkownicy mogą dodawać komentarze
Idealny dom dla Ciebie! 5 km od Wrocławia
Dom 130 m2, rozkładowy i funkcjonalny, z ogrodem, w zabudowie bliźniaczej, przy cichej, wewnętrznej ulicy. Miłe sąsiedztwo. Doskonała komunikacyjnie lokalizacjaDo Wrocławia 5 km, 13 km do Rynku, a tak...
4 300,00 zł
DOM Wrocław- Różanka na wynajem
Oferuję do wynajęcia dom w zabudowie bliźniaczej. 3 sypialnie, duży salon z wyjściem na ogród, kuchnia, wc i łazienka.English description belowUKŁAD POMIESZCZEŃNa dwupoziomowy dom w zabudowie bliźniac...
6 600,00 zł
Nowy apartament 200 m od plaży w Denii
Na sprzedaż mieszkanie blisko plaży w miasteczku Denia.Bądź pierwszym, który dowie się o tej nowej inwestycji.Twój nowy, hiszpański apartament zlokalizowany będzie zaledwie 200 metrów od plaży w malow...
237 000,00 zł
Wieliczka, dom w zabudowie szeregowej z działką
WIELICZKA - KRZYSZKOWICKA / 9 KM DO RONDA MATECZNEGO / Oferujemy ciekawą nieruchomość, położoną blisko granicy administracyjnej Krakowa składającą się z: - Działki o powierzchni 568 m2...
849 000,00 zł
2 mieszkania w cenie 1 - INWESTYCJA, 69m2!
Na sprzedaż jasne, ustawne mieszkanie o łącznej powierzchni 69,84 m², położone przy Al. Pokoju w Krakowie - w doskonałej lokalizacji, tuż przy centrum miasta. Obecnie mieszkanie zostało podzielone ...
1 100 000,00 zł
Mickiewicza | winda | parking | 117m2
Przestronne mieszkanie z balkonem przy Alei Adama Mickiewicza | Widok na Park Krakowski Na sprzedaż wyjątkowe, klimatyczne mieszkanie o powierzchni 117 m² , położone na czwartym piętrze ...
1 850 000,00 zł
dwupoziomowe z dużym potecjałem/Kurdwanów
DWUPOZIOMOWE- OSTATNIE PIĘTRO MIESZKANIE Z DUŻYM POTENCJAŁEM NA KURDWANOWIE ! 3/4-POKOJOWE MIESZKANIE Z BARDZO DUŻYM PODDASZEM (JAKO POTENCJALNIE 4 ...
870 000,00 zł
Przestronne mieszkanie w Wieliczce, ul. Jasna
Dwupoziomowe mieszkanie z antresolą - 113 m² w centrum Wieliczki Idealne dla rodziny lub pod inwestycję Na sprzedaż przestronne, dwupoziomowe mieszkanie z antresolą o łącznej powierzchn...
980 000,00 zł
Dom na wsi, duża działka 30 km od Krakowa
DOM Z DUŻĄ DZIAŁKĄ POD MIECHOWEM, 30 KM OD KRAKOWA, OBOK STOK NARCIARSKI SŁAWICKI RAJ LOKALIZACJA: Miejscowość Pojałowice w gminie Miechów jest oddalona od Krakowa tylko 30 km. Do sam...
899 000,00 zł
Dom bliźniak na sprzedaż Skawina, wygoda i spokój
Oferujemy na sprzedaż trzy ostatnie mieszkania w nowoczesnych bliźniakach zlokalizowanych w cichej i spokojnej okolicy w Skawinie. Szczegóły oferty: Powierzchnia: około 110 m² Cena: 950 000 ...
950 000,00 zł
POŁOWA DOMU Z WŁASNYM OGRÓDKIEM
POŁOWA DOMU | MIESZKANIE Z OGRÓDKIEM I PROKOCIM Do sprzedaży mieszkanie (połowa domu) o powierzchni użytkowej 73,36 m2, z ogrodem do indywidualnego korzystania, usytuowane na parterze budynk...
799 000,00 zł
Nowy Bliźniak- Świebodzice ze strefą SPA
Na sprzedaż oferujemy połowę bliźniaka w stanie deweloperskim o powierzchni 211,dm2 z czego 155,35 m2 stanowi powierzchnia mieszkalna a 137,67 m2 użytkowa.W ofercie dostępne są dwie identyczne połówki...
1 300 000,00 zł
Nowoczesne mieszkanie z tarasem i garażem
* zdjęcia należą do właściciela mieszkania Nowe mieszkanie z tarasem i miejscem postojowym - Kraków Dąbie Lokalizacja: Kraków, Dąbie Czynsz najmu: 3500zł /miesiąc Opłaty administracyjne: (z...
3 500,00 zł
KAWALERKA W DOSKONAŁEJ LOKALIZACJI CENTRUM KLEPARZ
KAWALERKA W CENTRUM TUŻ PRZY UL. WROCLAWSKIEJ *zdjęcia należą do Właściciela oferty Na sprzedaż kawalerka o pow. 18,5m2 doskonale zlokalizowana tuż przy ulicy Wrocławskiej. Oferta idealna...
370 000,00 zł
Mieszkanie 3-pok. z klimatyzacją – 63 m², Kalwaria
Na sprzedaż - Nowoczesne 3-pokojowe mieszkanie 63,69 m2 z komórką lokatorską (10m2), klimatyzacją i widokiem na klasztor - Kalwaria Zebrzydowska Prezentujemy komfortowe, w pełni wyposażone mie...
674 900,00 zł
Nowa inwestycja / kameralna lokalizacja
Na sprzedaż segment w zabudowie bliźniaczej w Świdnicy. Okolice Zalewu WitoszówkaBrak opłaty 2% PCC- Lokal nr 2 - powierzchnia użytkowa: parter 42,39 m2 + piętro 39,72m2 + poddasze o powierzchni 26,69...
999 000,00 zł
Starowiślna | centrum miasta | antresola
Na sprzedaż | Stylowe mieszkanie w zabytkowej kamienicy przy ul. Starowiślnej Mieszkanie znajduję się przy ul. Starowiślnej - Stare Miasto, w kamienicy na 4 - piętrze o powierzchni 33,3 m2 o...
730 000,00 zł
Działka rolno budowlana 65ar Sobolew Kol g. Firlej
Duża działka rolno-budowlana ok. 65 ar,Ok. 15 ar to powierzchnia budowlana a 50 ar to powierzchnia rolna Pierwsza linia zabudowy , bezpośredni dostęp do drogi asfaltowejOferta dla rolnika który chce ...
130 000,00 zł
Nowa, piękna kawalerka - ul. Śliczna
Do wynajęcia od grudnia w pełni wyposażona kawalerka, PO GENERALNYM REMONCIE. Mieszkanie znajduje się przy ul. Ślicznej, boczna al. Armii Krajowej.UKŁAD POMIESZCZEŃNa mieszkanie usytuowane na 4 piętrz...
2 400,00 zł
Jezioro Rożnowskie teren na hotel
SZUKASZ MIEJSCA POD HOTEL / SPA/ DOM SENIORA ? WŁAŚNIE GO ZNALAZŁEŚ Oferujemy na sprzedaż nieruchomość leżącą w Znamirowicach nad jeziorem rożnowskim woj. małopolskie. Nieruchomość skła...
5 000 000,00 zł
Słoneczne mieszkanie ul. Reduta!
Słoneczne mieszkanie z balkonem i miejscem postojowym - Reduta! LOKALIZACJA Mieszkanie usytuowane jest w jednej z najbardziej pożądanych dzielnic Krakowa - Prądnik Czerwony, przy ul. Re...
3 500,00 zł
M-2 POK 49 M2 NOWA HUTA BALKON PIWNICA PREMIUM
2 POKOJE / 49 M² / 3 PIĘTRO / BLISKO ALEI RÓŻ / NOWA HUTA / PIWNICA / CICHO OD STRONY OSIEDLA / BALKON / KLIMATYZACJA / PREMIUM KTO MOŻE ZAMIESZKAĆ ❓ Mieszkanie jest idealne dl...
3 200,00 zł