📢
🔥 Już Jutro Nowa Promocja tylko na Sprzedawanko.pl! 🔔 Skorzystaj teraz! 🔥

Jangrot - dom 212 m2 na dużej widokowej działce!

790 000,00 zł

{{ phone }}

{{ email }}

Dodane przez: braciasadurscy
braciasadurscy
Lokalizacja: Długa
Telefon: {{ phone }}
Udostępnij:

Opublikowano:  | Wygaśnie:

ID ogłoszenia: 15451

Szczegóły

Typ: Sprzedaż
Rynek: Wtórny
Pow. użytkowa m2: 230
Pow. działki m2: 9900
Pow. całkowita m2: 212
Cena za m2 (zł): 3434.78
Liczba pokoi: 6
Liczba sypialni: 4
Liczba pięter: 2
Rodzaj zabudowy: jednorodzinny
Okna: PCV
Rok budowy: 1990
Ogrzewanie: ekogroszek
Własność: Własność
Dach: blacha
Szer. działki (m): 50
Wirtualny spacer: https://sb360.online/nkgmvi
Agent: Wojciech Sudoł
E-mail: wojtek@sadurscy.pl
Telefon kom.: +48 509-907-533
Data aktualizacji: 2025-10-15

Opis


Jangrot gm. Trzyciąż - dom wolnostojący o pow. 212 m2 na działce o pow. 99 ar.
Nieruchomość znajdująca się w Jangrocie gm. Trzyciąż składająca się z działek gruntu o pow. 99 ar. zabudowanych domem wolnostojącym oraz budynkiem gospodarczym .
Dom jednorodzinny wykonany w technologii tradycyjnej murowanej, został wybudowany w 1975 r. a następnie rozbudowany w 1996 r. Dom jest budynkiem dwukondygnacyjnym, podpiwniczonym z poddaszem wykorzystywanym do celów niemieszkalnych. Stropy żelbetowe (płyta o grubości 10 cm) wylewane na mokro, pokrycie dachu wykonane z blachy ocynkowanej, więźba dachowa w dobrym stanie technicznym.
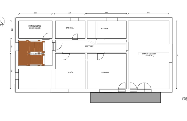
Parter o pow. użytkowej 108,30 m2 składa się z: 3 pokoi, kuchni, łazienki, przedpokoju oraz pomieszczenia gospodarczego.
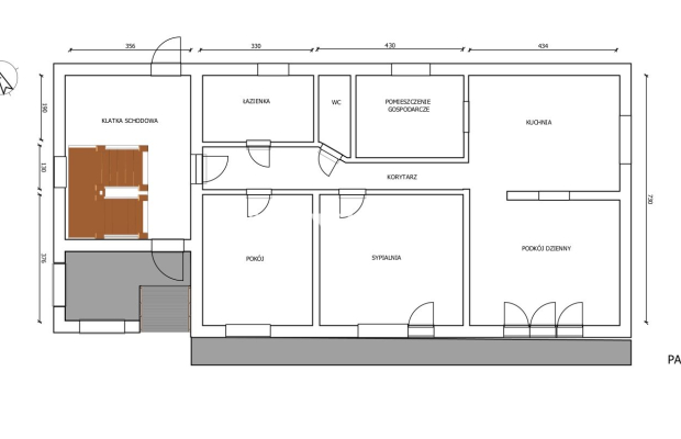
Na piętrze o pow. użytkowej 104,40 m2 wydzielono: salon z wyjściem na balkon, 2 pokoje, kuchnię, łazienkę, przedpokój oraz schowek.
Dom jest w pełni wyposażony i umeblowany, ze względu na przeprowadzone remonty wnętrza domu (parter - 2015 r., piętro - 2019 r.) stan techniczny pomieszczeń pozwala na zamieszkanie bez konieczności ponoszenia dodatkowych kosztów remontowych.
Układ pomieszczeń jest bardzo funkcjonalny, a ich rozmieszczenie na poszczególnych kondygnacjach umożliwia wykorzystanie budynku mieszkalnego zarówno jako jednorodzinnego jaki i dwurodzinnego. Media przyłączone do budynku: sieć wodna, energia elektryczna, system kanalizacji sanitarnej w oparciu o przydomową oczyszczalnię ścieków, centralne ogrzewanie i system zaopatrzenia w ciepłą wodę zasilane z pieca na paliwo stałe z podajnikiem (ekogroszek), dodatkowo na każdym poziomie mieszkalnym znajdują się elektryczne przepływowe podgrzewacze wody.
W skład zabudowy wchodzi również budynek gospodarczy murowany, dwukondygnacyjny o pow. użytkowej ok. 190 m2 wykorzystywany jako garaż oraz warsztat.

Nieruchomość gruntowa składa się z 4 działek ewidencyjnych, które są objęte miejscowym planem zagospodarowanie przestrzennego i są oznaczone jako tereny rolne (R1) z możliwością zabudowy zagrodowej. Większa część nieruchomości gruntowej jest położona na stoku o ekspozycji południowo-zachodniej , która gwarantuje maksymalne nasłonecznienie i dzięki temu może zostać wykorzystana do uprawy roślinnej wymagającej korzystnego nasłonecznienia (np. sad lub winnica ), bądź też na cele budowy urządzeń stanowiących pasywne źródło energii elektrycznej (np. farma fotowoltaiczna ).
Przedmiotem oferty jest nieruchomość gruntowa o powierzchni 99 arów, jednak jest możliwość nabycia gruntu o łącznej powierzchni 1,9 ha .

Nieruchomość posiada dostęp do drogi publicznej (droga gminna asfaltowa) położona jest w spokojnej okolicy, w bezpośrednim sąsiedztwie otwarte tereny zielone oraz luźna zabudowa jednorodzinna. Lokalizacja jest korzystnie skomunikowana, znajduje się 15 km od centrum Olkusza oraz 35 km od granicy Krakowa. Najbliższy sklep spożywczy w odległości 2000 m , przystanek komunikacji miejskiej na trasie Olkusz - Trzyciąż (linia A12 ) - 900 m , odległość do szkoły podstawowej i przedszkola samorządowego w Jangrocie 3 500 m .

Biuro pomaga bezpiecznie przeprowadzić transakcję.

Zapraszam do kontaktu i na prezentację nieruchomości.

Wojciech Sudoł
+48 509 907 533
wojtek@sadurscy.pl




Zobacz Wirtualny Spacer: https://sb360.online/nkgmvi


Oferta wysłana z systemu Galactica Virgo

Film z Youtube

Komentarze (0)

Nic nie znaleziono

Tylko zalogowani użytkownicy mogą dodawać komentarze

Mapa

Formularz kontaktowy

This site is protected by reCAPTCHA and the Google Privacy Policy and Terms of Service apply.

Podobne ogłoszenia

NOWOCZESNE DOMY POD KRAKOWEM

Domy jednorodzinne pod Krakowem Bracia Sadurscy to oficjalny przedstawiciel handlowy dewelopera - kupując z nami nie płacisz prowizji i ukrytych kosztów. Prezentuję Państwu ofertę nowocz...

850 000,00 zł

Przeginia Duchowna

Hala produkcyjno-magazynowa przy ul. Igołomskiej!

Do wynajęcia powierzchnia o przeznaczeniu produkcyjnym lub magazynowym przy ul. Igołomskiej. Hala znajduje się w Strefie Aktywności Gospodarczej Kraków Igołomska Północ przy ul. Badeniego . P...

80 000,00 zł

Kraków

2 pok mieszkanie w kameralnym bloku - Czyżyny!

Przytulne 2 pokojowe mieszkanie o pow. 44 m 2 na os. Dywizjonu 303 Do sprzedaży funkcjonalne mieszkanie o pow. 44 m 2 położone w Czyżynach na osiedlu Dywizjonu 303 przy p ark...

740 000,00 zł

Kraków

Hala produkcyjno-magazynowa przy ul. Igołomskiej!

Do wynajęcia nowa hala o przeznaczeniu produkcyjnym lub magazynowym przy ul. Igołomskiej. Hala usytuowana w Strefie Aktywności Gospodarczej Kraków Igołomska Północ przy ul. Badeniego . Hala m...

164 000,00 zł

Kraków

Nowoczesne 2 pokoje, garaż, ul. Sołtysowska

Na sprzedaż: 2-pokojowe mieszkanie z garażem - ul. Sołtysowska, os. Fajny Dom, Kraków Prezentujemy komfortowe mieszkanie o powierzchni 48,17 m² , położone na 1. piętrze nowoczesnego bl...

750 000,00 zł

Kraków

Lokal mieszkalno-usługowy w centrum.

Lokal mieszkalno-komercyjny 115 m² | ul. Wrocławska, Kraków | Idealny pod hostel lub prywatny akademik! Na sprzedaż lokal mieszkalno-komercyjny o powierzchni 115 m² , położony przy prestiżow...

1 050 000,00 zł

Kraków

Koźmice Małe - Nowy dom z widokiem na łąki

Koźmice Małe - Nowy dom z widokiem na naturę Cena: do uzgodnienia - bez podatku PCC Na sprzedaż prezentujemy nowoczesny, wolnostojący dom jednorodzinny w stanie deweloperskim, położony w ...

849 000,00 zł

Wielicki

Komfortowe mieszkanie ul. Borkowska

Na sprzedaż: stylowe 2-pokojowe mieszkanie, 51 m² - ul. Borkowska, Kliny Na sprzedaż przestronne i gustownie urządzone mieszkanie o powierzchni 51 m², położone na pierwszym piętrze nowoczesneg...

650 000,00 zł

Kraków

Przytulne mieszkanie na Os. Młodych/ 3 pokoje

Na sprzedaż przestronne mieszkanie, na popularnym Osiedlu Młodych w Świdnicy. To idealna propozycja dla osób, które szukają gotowego do wprowadzenia się lokum w świetnej lokalizacji.Układ pomieszczeń ...

414 000,00 zł

Świdnica

Działka komercyjna o powierzchni 8700 m² położona w miejscowości Rudno, gmina Krzeszowice. Teren w miejscowym planie zagospodar

Działka komercyjna o powierzchni 8700 m² położona w miejscowości Rudno, gmina Krzeszowice. Teren w miejscowym planie zagospodarowania przestrzennego oznaczony jest symbolem U4, przewidzianym pod za...

1 798,00 zł

Krakowski

Krowodrza, 3pok. wysoki standard, do wejścia, 2024

Na sprzedaż klimatyczne, nowocześnie wykończone mieszkanie 3-pokojowe o powierzchni 61,7 m², położone w bardzo cenionej dzielnicy Krakowa - na Krowodrzy, przy ul. Składowej (obok ul. Wrocławskiej...

1 233 999,00 zł

Kraków

lokal handlowo-usługowy lub biurowy 100m2 Olsza

Kraków- Prądnik Czerwony/Olsza rejon ul. Bajana Lokal usługowy lub usługowo-biurowy lub handlowy Lokal biurowy - usługowy lu...

7 999,00 zł

Kraków

Apartament Premium 67m Wola Justowska, 2 x Ogródki

Nowoczesny apartament 67,37m z ogródkami w sercu Woli Justowskiej - gotowe do zamieszkania Na sprzedaż elegancki, 3-pokojowy apartament o powierzchni 67,37 m² , położony w prestiżowej inw...

1 715 000,00 zł

Kraków

Dla rodziny lub na wynajem. Do wprowadzenia

Idealne dla rodziny jak i na wynajem ze względu na funkcjonalny rozkład pomieszczeń, dobrą lokalizację i wygodną komunikację. Oferuję do sprzedaży trzypokojowe rozkładowe mieszkanie o powierzc...

630 000,00 zł

Wrocław

2 pok. mieszkanie 53,1m2,centrum,super lokalizacja

Na sprzedaż mieszkanie 2-pokojowe | 53,1 m² | przy Wiśle okolice ul. Starowiślnej , Kazimierz Biuro Nieruchomości Bracia Sadurscy ma przyjemność zaprezentować mieszkanie o powierzchni 53,1 m²,...

929 000,00 zł

Kraków

Deweloperski dom 90,1 m.kw, Krzyki

BEZPOŚREDNIO od dewelopera, brak prowizji oraz podatku 2% PCC Kameralne osiedle, stan deweloperski- domy wolnostojące i szeregowe, 15 min. od centrum- Krzyki, Wrocław Odbiór - III kwartał 2025r. ...

943 797,00 zł

Wrocław

Działka budowlana 13a Charlęż g. Spiczyn (budowa)

Działka budowlana około 13 ar z aktualnym pozwoleniem na budowę oraz projektem domu dopasowanym do działki.Na działce zostały wylane fundamenty na podstawie projektu Madera SKA1023W galerii przedsta...

200 000,00 zł

Charlęż

Komfortowe 4 pokoje (Wrotków)

Mieszkanie jest wyjątkowo funkcjonalne, układ pomieszczeń gwarantuje tutaj wygodę i stwarza rozmaite możliwości aranżacyjne. Całość składa się z dużego salonu połączonego z otwartą kuchnią oraz trzech...

535 000,00 zł

Lublin

Dwupokojowe (47,4 m kw.), Świdnik, ul. Ratajczaka

Mieszkanie jest wyjątkowo ładne i funkcjonalne. Całość składa się z dużego salonu połączonego z otwartą kuchnią oraz pokoju. Z obydwu tych pomieszczeń można wejść na przestronny balkon, który nie sąsi...

470 000,00 zł

Świdnik

3-pokojowe mieszkanie z loggią- Zawodzie

Jasne, przestronne 3-pokojowe mieszkanie z loggią w zielonej okolicy - idealne dla rodziny lub jako inwestycja. Na sprzedaż wyjątkowe mieszkanie o powierzchni 74 m², usytuowane na 3 piętrze ...

938 000,00 zł

Kraków

Lokal 95m2, możliwość 407m2, pod usługi biurowe

BESTATE Nieruchomości Wrocław oferuje do wynajmu lokale biurowe usytuowane na parterze - 95 m.kw, wysokość lokalu 2,45 m. Dodatkowo na I piętrze - 156 m.kw, II piętrze - 156 m.kw , łącznie powie...

3 325,00 zł

Wrocław

Działka budowlano-rolna w Łazanach gm.Biskupice

Działka 47 arów - część budowlana + zieleń, cicha okolica, media, atrakcyjna cena! Na sprzedaż działka o powierzchni 47 arów , w kształcie zbliżonym do prostokąta. Nieruchomość położona jest na...

390 000,00 zł

Wielicki

M3 - Ruczaj - Duży balkon - Garaż

3-pokojowe mieszkanie z garderobą, dużym balkonem i garażem - 60 m² | 2. piętro | blok z 2006 r. Oferujemy na sprzedaż funkcjonalne, 3-pokojowe mieszkanie o powierzchni ok. 60 m², zlokalizow...

880 000,00 zł

Kraków

Deweloperski dom, 90,1 m.kw., osiedle- Krzyki

BEZPOŚREDNIO od dewelopera, brak prowizji oraz podatku 2% PCC Kameralne osiedle, stan deweloperski- domy wolnostojące i szeregowe, 15 min. od centrum- Krzyki, Wrocław Odbiór - III kwartał 2025r. ...

859 740,00 zł

Wrocław

2 pokoje, z wyposażeniem, balkon, m.postojowe

Sprzedam 2 -pokojowe mieszkanie o powierzchni użytkowej 55 m. kw, usytuowane na pierwszym piętrze w budynku z 2019r. (bez windy), w bardzo dobrej lokalizacji Wrocław/ Krzyki. Nieruchomość skład...

750 000,00 zł

Wrocław

Dom w stanie surowym 157m2 Charlęż g. Spiczyn

Działka budowlana około 13 ar z aktualnym pozwoleniem na budowę oraz projektem domu dopasowanym do działki.Na działce zostały wylane fundamenty na podstawie projektu Madera SKA1023 z portalu Extrado...

350 000,00 zł

Charlęż

Widokowa działka z projektem w Sławkowicach!

Widokowa działka w Sławkowicach z indywidualnym projektem oraz pozwoleniem na budowę. Określone w Miejscowym Planie Zagospodarowania Przestrzennego jako budowlane w powierzchni ok. 28 arów . Ks...

900 000,00 zł

Wielicki

Wynajmę,3-pok,Skawina,dużo zieleni

SKAWINA - Kraszewskiego Oferujemy do wynajmu piękne, rozkładowe mieszkanie o powierzchni 78 m2 składające się z: - Trzech oddzielnych pokoi o powierzchniach: 25,5 / 24 / 9,5 m2. Pokoje...

3 200,00 zł

Skawina

Facebook
Facebook
Sprzedawanko.pl – serwis ogłoszeń Firmowanko.pl – katalog firm i usług Pracowanko.pl – serwis pracy Ugościmy.pl – serwis noclegów Nporta.pl – katalog firm i usług