📢
🔥 Już Jutro Nowa Promocja tylko na Sprzedawanko.pl! 🔔 Skorzystaj teraz! 🔥

Przestronne mieszkanie w Aleksandrowicach

600 000,00 zł

{{ phone }}

{{ email }}

Dodane przez: braciasadurscy
braciasadurscy
Lokalizacja: Kraków, ul. Kapelanka 1a/1, ul. Kołowa 5/3, ul. Przewóz 47, os. Kazimierzowskie 36
Telefon: {{ phone }}
Udostępnij:

Opublikowano:  | Wygaśnie:

ID ogłoszenia: 15413

Szczegóły

Typ: Sprzedaż
Rynek: Wtórny
Pow. użytkowa m2: 81.7
Pow. całkowita m2: 81.7
Cena za m2 (zł): 7343.94
Liczba pokoi: 3
Liczba sypialni: 2
Rodzaj zabudowy: dom wolnostojący
Piętro: 1
Liczba pięter: 2
Materiał budynku: tradycyjna murowana
Okna: PCV
Rok budowy: 2023
Ogrzewanie: centralne
Stan wykończenia: deweloperski
Własność: Odrębna własność lokalu
Dach: dachówka
Agent: Grzegorz Zębala
E-mail: grzesiek@sadurscy.pl
Telefon kom.: +48 796-541-485
Nr licencji: 23799
Data aktualizacji: 2025-10-15

Opis


Mieszkanie znajduje się w miejscowości Aleksandrowice w rejonie Tenczyńskiego Parku Krajobrazowego Istnieje możliwość wykończenia pod klucz.

W pobliżu przystanek autobusowy, szkoła podstawowa, sklepy spożywcze, ośrodek zdrowia, dom kultury oraz duży plac zabaw. W sąsiedztwie Dolina Aleksandrowicka z licznymi ścieżkami spacerowymi oraz rowerowymi.



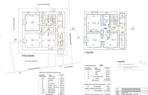
Mieszkanie znajduję się na I piętrze i składa się z :

- Przedpokoju: 6,59 m2

- Pokój: 12,81 m2

- Pokój: 16,05 m2

- Salon + aneks kuchenny: 19,52 m2

- Łazienka: 5,18 m2

- Komórka lokatorska : 4,22 m2

Przyziemie

- Pom. gospodarcze : 17,33 m2

Łączna powierzchnia: 81,70 m2



Pomieszczenia i Komunikacja Wspólna Budynku :

- Kl. Schodowa: 6,36 m2 , Komunikacja: 2,32 m2 , WC: 2,83 m2 , Pomieszczenie techniczne: 5,23 m2 , Schowek: 4,51 m2 , Schowek : 0,60 m2 , Kl. Schodowa: 10,73, Kl. Schodowa: 6,49 m2, Kl. Schodowa: 6, 40 m2

Łączna powierzchnia: 44,47 m2



Możliwość zakupu ogródka do każdego z mieszkań !
Ogrzewanie i ciepła woda z pieca gazowego dwu-funkcyjnego.
Dom po generalnym remoncie, wykonano następujące prace:

- nowy przyłącz elektryczny,
- nowy przyłącz gazowy,
- nowy przyłącz wod-kan,
- nowa więźba dachowa,
- nowa izolacja poddasza,
- nowe pokrycie dachowe,
- nowa stolarka okienna,
- nowe balustrady ze stali nierdzewnej,
- nowa stolarka drzwi wejściowych,
- nowe izolacje podłogowe,
- nowe wylewki,
- nowe tynki wewnętrzne,
- nowe instalacje elektryczne,
- nowe instalacje hydrauliczne,
- nowa instalacja gazowa,
- nowe wentylacje,
- nowa docieplenie elewacji wraz z tynkiem zewnętrznym,
- nowa hydroizolacja ścian fundamentowych wraz z drenażem opaskowym,
- nowa opaska z kostki brukowej wraz ze schodami zewnętrznymi,
- nowa brama automatyczna przesuwna,
- nowe ogrodzenie,
- nowe miejsca postojowe z kostki brukowej,

Istnieje możliwość dokupienia reszty działki, na której stoi Budynek gospodarczy, do własnej aranżacji.


Biuro pomaga w bezpiecznym przeprowadzeniu transakcji.
Serdecznie zapraszam na prezentację.
Grzesiek Zębala
tel. +48 796 541 485

Pośrednik odpowiedzialny zawodowo za wykonanie umowy pośrednictwa: Dariusz Sadurski (licencja nr: 803)


Oferta wysłana z systemu Galactica Virgo

Komentarze (0)

Nic nie znaleziono

Tylko zalogowani użytkownicy mogą dodawać komentarze

Mapa

Formularz kontaktowy

This site is protected by reCAPTCHA and the Google Privacy Policy and Terms of Service apply.

Podobne ogłoszenia

2-pok./nowe budownictwo/winda/do wejscia/Łagiewnik

Jasne, 2-pok. mieszkanie z 2011r. w Borku Fałęckim, ul. Zbrojarzy, gotowe do wejścia Do sprzedaży oferujemy 2-pok.mieszkanie o pow. 36,21 m2 usytuowane na 2.piętrze w 3.piętrowym b...

555 000,00 zł

Kraków

2 pok, duży balkon, osoba kuchnia, parking, tv ENG

English version bellow Do wynajęcia funkcjonalne i ciche mieszkanie o powierzchni 51,5 m² w spokojnej części Bronowic, położone na 4. z 5 pięter w budynku z windą. Lokal po odświeżeniu, gotowy ...

3 300,00 zł

Kraków

Przytulne mieszkanie / garaż / UJ / MPK /Zakrzówek

Biuro Nieruchomości Bracia Sadurscy ma przyjemność zaprezentować przestronne i jasne mieszkanie w sąsiedztwie Zakrzówka. Mieszkanie znajduje się w świetnie skomunikowanej okolicy. Szybki doj...

2 800,00 zł

Kraków

Nowoczesne 3‑pokojowe mieszkanie z klimatyzacją przy ul. Walerego Sławka - gotowe do wprowadzenia! Na sprzedaż jasne, przes

Nowoczesne 3‑pokojowe mieszkanie z klimatyzacją przy ul. Walerego Sławka - gotowe do wprowadzenia! Na sprzedaż jasne, przestronne, rozkładowe mieszkanie o powierzchni 56,01 m² , położone w ...

988 000,00 zł

Kraków

Klasyczna przedwojenna willa miejska ze schronem

Z prawdziwą przyjemnością oferuję do sprzedania DOM dwukondygnacyjny w wolnostojący z lat 30 XX wieku, o powierzchni ok. 300 m2 usytuowany we Wrocławiu na osiedlu Brochów. Dom posadowiony jest na dzia...

1 890 000,00 zł

Wrocław

Klasyczna przedwojenna willa miejska ze schronem

Z prawdziwą przyjemnością oferuję do sprzedania DOM dwukondygnacyjny w wolnostojący z lat 30 XX wieku, o powierzchni ok. 300 m2 usytuowany we Wrocławiu na osiedlu Brochów. Dom posadowiony jest na dzia...

1 890 000,00 zł

Wrocław

Zabytkowy Zespół Dworsko-Parkowy (XIXw. 1880 r)

Na sprzedaż wyjątkowa nieruchomość zabytkowy Zespół Dworsko-Parkowy (XIXw. budowany do ok. 1880 r).Malowniczy zabytkowy zespół dworsko-parkowy w Turce/k. Lublina wybudowany został w latach 1861-1878 ...

10 500 000,00 zł

Turka

Dom wolno stojący - Czyżyny!

*zdjęcia należą do właściciela oferty. Dom wolno stojący na osiedlu domów jednorodzinnych w Czyżynach o pow.: 230,03 m 2 , na działce - 665 m 2 . Przestronny, komfortowy dom w bardzo dobrym s...

3 200 000,00 zł

Kraków

3 pokoje na Woli Justowskiej - 67,37m2

* zdjęcia należą do właściciela oferty 3 pokoje - Wola Justowska - 67,37m2 Do sprzedania mieszkanie w nowej inwestycji przy ulicy Borowego na Woli Justowskiej , wykończone p...

1 715 000,00 zł

Kraków

Dwa drewniane domy z czterema lokalami

Dwa drewniane domy z czterema lokalami mieszkalnymi w Łapszach Wyżnych Oferujemy na sprzedaż dwa budynki mieszkalne , jednorodzinne, wolnostojące w Łapszach Wyżnych. Domy są parterowe z uż...

2 449 000,00 zł

Łapsze Wyżne

Dwa drewniane domy z czterema lokalami

Dwa drewniane domy z czterema lokalami mieszkalnymi w Łapszach Wyżnych Oferujemy na sprzedaż dwa budynki mieszkalne , jednorodzinne, wolnostojące w Łapszach Wyżnych. Domy są parterowe z uż...

2 449 000,00 zł

Łapsze Wyżne

2 SYPIALNIE NOWA HUTA WANDA 44 M2 OSOBNA KUCHNIA

2 POKOJE SYPIALNIANE / 44 M2 / 9 PIĘTRO / WINDA / NOWA HUTA / BALKON / WIDOK / PRZYJAZNE ZWIERZĘTOM KTO MOŻE ZAMIESZKAĆ ❓ Mieszkanie jest idealne dla singla , rodziny 2+1, przyjaciół, s...

2 200,00 zł

Kraków

M-3 POK 4 PIĘTRO 53 M2 HOME OFFICE BALKON PREMIUM

3 POKÓJ / 53 M2 / 4 PIĘTRO / MIEJSCE POSTOJOWE / PRĄDNIK CZERWONY / PRACA ZDALNA / BALKON / BLISKO SERENADA / PREMIUM KTO MOŻE ZAMIESZKAĆ ❓ Mieszkanie jest idealne dla osób pracujących z...

3 700,00 zł

Kraków

2 pokoje + osobna kuchnia, blisko tramwaj, Park

Mieszkanie pełne możliwości - ul. Ułanów, Kraków Ta oferta to doskonała propozycja dla osób, które cenią sobie dobrą lokalizację, funkcjonalny układ i możliwość stworzenia wnętrza dopasowanego ...

599 000,00 zł

Kraków

Nowe 2-pokojowe z ogródkiem i parkingiem

* zdjęcia należą do właściciela mieszkania Kraków, Grzegórzki / Dąbie - 2 pokoje z ogródkiem 30m2 i z miejscem parkingowym Cena mieszkania: Powierzchnia: 41,64m2 Ogródek: 30m2 Stan nier...

920 000,00 zł

Kraków

Do wynajęcia mieszkanie o powierzchni 41 m2 położone przy ul. Piotra Skargi. Nieruchomość zlokalizowana na drugim piętrze. Sk

Do wynajęcia mieszkanie o powierzchni 41 m2 położone przy ul. Piotra Skargi. Nieruchomość zlokalizowana na drugim piętrze. Składa się z salonu z wyjściem na duży balkon, sypialni, kuchni, łazienk...

1 400,00 zł

Tarnów

3 pok Modrzejewskiej, Krowodrza

3-pokojowy lokal na wynajem - ul. Heleny Modrzejewskiej, Krowodrza - Azory Do wynajęcia przestronny lokal o powierzchni 72 m², położony na drugim piętrze w niskim, kameralnym budynku. Lokal ...

3 000,00 zł

Kraków

Maciejowice - widokowa działka z przyłączami

Uzbrojona działka budowlana - Maciejowice, gm. Kocmyrzów-Luborzyca Oferujemy wyjątkową działkę budowlaną położoną w malowniczej miejscowości Maciejowice (gmina Kocmyrzów-Luborzyca). Nieruc...

345 000,00 zł

Maciejowice

3 pok Modrzejewskiej, Krowodrza

3-pokojowe mieszkanie na wynajem - ul. Heleny Modrzejewskiej, Krowodrza - Azory Do wynajęcia przestronne mieszkanie o powierzchni 72 m², położone na drugim piętrze w niskim, kameralnym budyn...

3 000,00 zł

Kraków

Dom na wsi w Przyłęku pow. Zwoleń, mazowieckie.

Siedlisko ( dom murowany 55 m2 plus budynki gospodarcze ) na działce o pow. 0,36 ha (3623 m2) w cichej i spokojnej miejscowości Przyłęk gm. Przyłęk pow. zwoleński woj. mazowieckie w bliskiej odległo...

195 000,00 zł

Przyłęk

PIĘKNY DOM W DOBREJ CENIE NA ATRAKCYJNEJ DZIAŁCE

SOLIDNY, PONADCZASOWY W ATRAKCYJNEJ CENIE NA DUŻEJ 55 AR ZAGOSPODAROWANEJ DZIAŁCE LOKALIZACJA, DZIAŁKA Z przyjemnością prezentujemy atrakcyjną ofertę sprzedaż...

1 990 000,00 zł

Mogilany

2 pokoje przy Bonarce

2 pokoje | Od zaraz | Pets Friendly Biuro Nieruchomości Bracia Sadurscy ma przyjemność zaprezentować komfortowe mieszkanie dwupokojowe o powierzchni 37,55 m² , zlokalizowane w nowoczesn...

2 700,00 zł

Kraków

2 pokojowe przy Bonarce

2 pokoje | Od zaraz | Pets Friendly Biuro Nieruchomości Bracia Sadurscy ma przyjemność zaprezentować komfortowe mieszkanie o powierzchni 38 m² , zlokalizowane w nowoczesnym kompleksie p...

2 600,00 zł

Kraków

GUSTOWNE, PIEKNE, SŁONECZNE 3-POKOJOWE Z BALKONEM

ATRAKCYJNE, GOTOWE DO WEJŚCIA, PO GENERALNYM REMONCIE W BARDZO DOBREJ LOKALIZACJI MIESZKANIE, BUDYNEK Z dużą przyjemnością prezentujemy bardzo atrakcyjne mies...

792 000,00 zł

Kraków

Nowoczesna kawalerka przy Bonarce

Kawalerka | Od zaraz | Pets Friendly Biuro Nieruchomości Bracia Sadurscy ma przyjemność zaprezentować komfortową kawalerkę o powierzchni 25,32 m² , zlokalizowaną w nowoczesnym kompleksi...

1 990,00 zł

Kraków

Kawalerka 30 m2 (oddzielna kuchnia) centrum Puław.

Mieszkanie (kawalerka z oddzielną kuchnią oraz balkonem) o pow. 30 m2 po generalnym remoncie w bardzo dobrym stanie technicznym na drugim piętrze kamienicy w centrum Puław woj. lubelskie.Mieszkanie: p...

270 000,00 zł

Puławy

Blisko Nałęczowa, 3 pokoje z garażem i działką.

** Oferta tylko w Biurze KNC City **** Klucze w biurze - możliwość prezentacji w dogodnej porze **NIEZABITÓW gm.Poniatowa: polecam do zakupu mieszkanie 3 pokojowe o pow. 63 m² zlokalizowane na 2 pięt...

299 000,00 zł

Niezabitów

Zabytkowy Zespół Dworsko-Parkowy (XIXw. 1880 r)

Na sprzedaż wyjątkowa nieruchomość zabytkowy Zespół Dworsko-Parkowy (XIXw. budowany do ok. 1880 r).Malowniczy zabytkowy zespół dworsko-parkowy w Turce/k. Lublina wybudowany został w latach 1861-1878 ...

10 500 000,00 zł

Turka

Facebook
Facebook
Sprzedawanko.pl – serwis ogłoszeń Firmowanko.pl – katalog firm i usług Pracowanko.pl – serwis pracy Ugościmy.pl – serwis noclegów Nporta.pl – katalog firm i usług