📢
🔥 BLACK FRIDAY / BLACK WEEKS 2025 na Sprzedawanko.pl WSZYSTKO -30% 🔔 Skorzystaj teraz! 🔥

Smart Apartament na Prądniku Białym blisko Zieleni

751 254,00 zł

{{ phone }}

{{ email }}

Dodane przez: braciasadurscy
braciasadurscy
Lokalizacja: Pękowicka
Telefon: {{ phone }}
Udostępnij:

Opublikowano:  | Wygaśnie:

ID ogłoszenia: 15348

Szczegóły

Typ: Sprzedaż
Rynek: Pierwotny
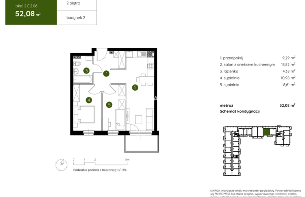
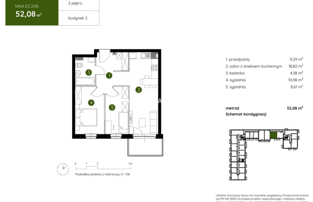
Pow. użytkowa m2: 52.08
Cena za m2 (zł): 14425
Liczba pokoi: 3
Rodzaj zabudowy: blok
Piętro: 2
Liczba pięter: 3
Materiał budynku: pustak
Okna: PCV
Rok budowy: 2024
Ogrzewanie: C.O. miejskie
Stan wykończenia: deweloperski
Własność: Odrębna własność lokalu
Agent: Patrycja Rubinkiewicz
E-mail: patrycja@sadurscy.pl
Telefon kom.: +48 505-236-943
Data aktualizacji: 2025-09-25

Opis


Z ogromną przyjemnością przedstawiamy Państwu ofertę mieszkania na sprzedaż w malowniczym rejonie Doliny Prądnika, na północy Krakowa, blisko granicy z gminą Zielonki. Nowoczesne osiedle otoczone jest rozległymi terenami zielonymi, co umożliwia codzienny kontakt z naturą i zapewnia wytchnienie od intensywnego miejskiego życia w centrum miasta.

Osiedle zostało zaprojektowane z myślą o rodzinach, parach oraz singlach, oferując szeroki wybór mieszkań o powierzchni od 26 do 73 m², w układach 1-, 2-, 3- i 4-pokojowych. Dbałość o komfort mieszkańców przejawia się w wysokiej jakości przestrzeni wspólnych, które sprzyjają nawiązywaniu sąsiedzkich relacji: skwer z ławeczkami, plac zabaw...

Budynki nowej inwestycji mające 3 i 4 kondygnacje, wyróżniają się kameralną architekturą, harmonizującą z okolicą. Przestronność obiektów gwarantuje mieszkańcom poczucie prywatności.

Zalety:


Home Management System to zaawansowana technologia inteligentnego domu, która umożliwia m.in. zarządzanie ogrzewaniem, oświetleniem i zaworami wody.
Pakiet antysmogowy w postaci filtrów montowanych w nawiewnikach okiennych dba o czystość powietrza we wnętrzach mieszkań.
Wysoki standard wykończenia części wspólnych obejmuje trwałe płytki gresowe, dekoracyjne panele imitujące drewno oraz energooszczędne oświetlenie LED.
Mieszkania na parterze posiadają tarasy z ogrodami o powierzchni do 123 m², natomiast mieszkania na wyższych kondygnacjach oferują przestronne balkony.
Termoizolacyjne łączniki balkonowe zapobiegają utracie ciepła, co przekłada się na oszczędności energetyczne.
Portfenetrowe okna zapewniają doskonałe doświetlenie wnętrz.
Na terenie osiedla zostanie zainstalowana stacja ładowania pojazdów elektrycznych, z myślą o mieszkańcach korzystających z ekologicznych środków transportu.
Zielone dachy budynków będą nie tylko estetyczne, ale również poprawią jakość powietrza i obniżą temperaturę otoczenia.


Prądnik biały to doskonale skomunikowana okolica, idealne miejsce dla osób szukających spokoju i bliskości natury, z jednoczesnym dostępem do nowoczesnych rozwiązań technologicznych.

Serdecznie zapraszam do kontaktu


--------------------------

::GRATIS | Nasza prowizja zawiera: koszt przedwstępnej notarialnej umowy sprzedaży nieruchomości z rynku wtórnego.
::GWARANCJA | Gwarancja zwrotu zadatku. Więcej informacji na sadurscy.pl/zwrot-zadatku/


Oferta wysłana z systemu Galactica Virgo

Komentarze (0)

Nic nie znaleziono

Tylko zalogowani użytkownicy mogą dodawać komentarze

Mapa

Formularz kontaktowy

This site is protected by reCAPTCHA and the Google Privacy Policy and Terms of Service apply.

Podobne ogłoszenia

Płaszów, ul. Saska - 6 pokojowe o powierzchni 106 m². Dwupoziomowe, 6-pokojowe mieszkanie o łącznej powierzchni 106 m², w ty

Płaszów, ul. Saska - 6 pokojowe o powierzchni 106 m². Dwupoziomowe, 6-pokojowe mieszkanie o łącznej powierzchni 106 m², w tym 74 m² powierzchni podstawowej oraz antresole o łącznej powierzchni 3...

1 440 000,00 zł

Kraków

M-3 POK, 4 PIĘTRO BALKON UL. GOŁAŚKA DO REMONTU

MIESZKANIE / 52 M2 / 3 POKOJE / OSOBNA KUCHNIA / DO REMONTU / 4 PIĘTRO / BALKON / KURDWANÓW KTO MOŻE ZAMIESZKAĆ ❓ Mieszkanie jest idealne dla pary, rodziny z dziećmi 2+2, osób poszukujących...

650 000,00 zł

Kraków

Nowoczesny dom z 2019 r. Chrząstawa Mała

Do sprzedania DOM W ZABUDOWIE BLIŹNIACZEJ, Chrząstawa Mała, gm. Czernica, 13 km od granic Wrocławia.DOM niezwykle funkcjonalny, wykończony materiałami najwyższej klasy oraz w pełni wyposażony w sprzęt...

1 045 000,00 zł

Chrząstawa Mała

2 pokoje Brodzińskiego, Tarnów

Do sprzedania przestronne mieszkanie zlokalizowane w Tarnowie przy ul. Bitwy o Wał Pomorski. 39 m 2 powierzchni, 3 piętro salon, sypialnia, kuchnia, łazienka, WC, hall. okna PCV c...

319 000,00 zł

Tarnów

M3 - Ruczaj - Duży balkon - Garaż

3-pokojowe mieszkanie z garderobą, dużym balkonem i garażem - 60 m² | 2. piętro | blok z 2006 r. Oferujemy na sprzedaż funkcjonalne, 3-pokojowe mieszkanie o powierzchni ok. 60 m², zlokalizow...

869 000,00 zł

Kraków

Hala Kraków Ciepłownicza - pod handel , magazyn

NIERUCHOMOŚĆ KRAKÓW CIEPŁOWNICZA - DO WYNAJĘCIA Budynki znajdują się na działkach o powierzchni 1831 m2. Możliwość wynajęcia większej powierzchni terenu w pobliżu hali. Nieruchom...

39 000,00 zł

Kraków

Stylowy dom w Garbatce Letnisko 100 km od Warszawy

Stylowy dom (dworek) murowany z cegły o pow. 210 m2 na ogrodzonej działce 3161 m2 przy ul. Fabrycznej w Garbatce Letnisko pow. kozienicki woj. mazowieckie 100 km. od Warszawy.Dom:-powierzchnia użyt...

1 200 000,00 zł

Garbatka-Letnisko

3 osobne pokoje przy Parku w Prokocimiu

3 niezależne pokoje / parter / zielona okolica / do remontu lub gruntownego odświeżenia Na sprzedaż 3-pokojowe mieszkanie przy ul. Kurczaba w Krakowie - spokojna, zielona okolica, idealna dla ro...

795 000,00 zł

Kraków

Domy 4 pokoje. Rączna/Kaszów

Osiedle 7 domów jednorodzinnych w Rącznej (Kaszów) - komfort, spokój i zieleń! Na sprzedaż oferujemy domy w nowo powstającym kameralnym osiedlu 7 domów jednorodzinnych o powierzchni ok. 1...

1 010 000,00 zł

Rączna

Domy 4 pokoje. Rączna/Kaszów

Osiedle 7 domów jednorodzinnych w Rącznej (Kaszów) - komfort, spokój i zieleń! Na sprzedaż oferujemy domy w nowo powstającym kameralnym osiedlu 7 domów jednorodzinnych o powierzchni ok. 1...

1 010 000,00 zł

Rączna

Domy 4 pokoje. Rączna/Kaszów

Osiedle 7 domów jednorodzinnych w Rącznej (Kaszów) - komfort, spokój i zieleń! Na sprzedaż oferujemy domy w nowo powstającym kameralnym osiedlu 7 domów jednorodzinnych o powierzchni ok. 1...

1 010 000,00 zł

Rączna

Domy 4 pokoje. Rączna/Kaszów

Osiedle 7 domów jednorodzinnych w Rącznej (Kaszów) - komfort, spokój i zieleń! Na sprzedaż oferujemy domy w nowo powstającym kameralnym osiedlu 7 domów jednorodzinnych o powierzchni ok. 1...

1 010 000,00 zł

Rączna

Domy 4 pokoje. Rączna/Kaszów

Osiedle 7 domów jednorodzinnych w Rącznej (Kaszów) - komfort, spokój i zieleń! Na sprzedaż oferujemy domy w nowo powstającym kameralnym osiedlu 7 domów jednorodzinnych o powierzchni ok. 1...

1 040 000,00 zł

Rączna

Domy 4 pokoje. Rączna/Kaszów

Osiedle 7 domów jednorodzinnych w Rącznej (Kaszów) - komfort, spokój i zieleń! Na sprzedaż oferujemy domy w nowo powstającym kameralnym osiedlu 7 domów jednorodzinnych o powierzchni ok. 1...

970 000,00 zł

Rączna

Domy 4 pokoje. Rączna/Kaszów

Osiedle 7 domów jednorodzinnych w Rącznej (Kaszów) - komfort, spokój i zieleń! Na sprzedaż oferujemy domy w nowo powstającym kameralnym osiedlu 7 domów jednorodzinnych o powierzchni ok. 1...

970 000,00 zł

Rączna

Siedliszowice pow. tarnowski - hala prod. 400 m2.

Siedliszowice pow. tarnowski - hala magazynowo-produkcyjna na działce o pow. 91 arów! Nieruchomość gruntowa zabudowana halą produkcyjną i dwoma budynkami magazynowymi. Hala produkcyjna ma powi...

800 000,00 zł

Tarnowski

2 pok. mieszkanie ul Gwiaździsta, nowoczesne

Do wynajęcia od grudnia mieszkanie 2-pokojowe plus balkon, 42 m2 położone w apartamentowcu przy ul. Gwiaździstej, KrzykiEnglish description belowUKŁAD POMIESZCZEŃNa mieszkanie usytuowane na 2 piętrze ...

2 990,00 zł

Wrocław

2 pokoje z 2 m. post. ul. Inżynierska Corte Verona

Oferuję do wynajęcia od 1 grudnia 2025 r. nowocześnie urządzone dwupokojowe mieszkanie przy ul. Inżynierskiej z dwoma miejscami postojowymi w garażu podziemnym, położone w zamkniętym i chronionym komp...

2 700,00 zł

Wrocław

Nowe 3 pok, ul Jantarowa Krzyki

DO WYNAJĘCIA od zaraz 3 pokoje ul. Jantarowa, KrzykiOferuję do wynajęcia od zaraz 3 pokojowe mieszkanie po generalnym remoncieUKŁAD POMIESZCZEŃNa mieszkanie usytuowane na parterze o powierzchni 53 m2 ...

3 100,00 zł

Wrocław

Jezioro Rożnowskie teren na hotel

SZUKASZ MIEJSCA POD HOTEL / SPA/ DOM SENIORA ? WŁAŚNIE GO ZNALAZŁEŚ Oferujemy na sprzedaż nieruchomość leżącą w Znamirowicach nad jeziorem rożnowskim woj. małopolskie. Nieruchomość skła...

5 000 000,00 zł

Gródek nad Dunajcem

Działka ROD Brodła z domem

Na sprzedaż dom ROD w Brodłach, gm. Alwernia Zapraszam do zapoznania się z ofertą sprzedaży murowanego domu o powierzchni około 60 m², położonego na malowniczej działce w ROD Brodła. To d...

155 000,00 zł

Chrzanowski

Słoneczne mieszkanie ul. Reduta!

Słoneczne mieszkanie z balkonem i miejscem postojowym - Reduta! LOKALIZACJA Mieszkanie usytuowane jest w jednej z najbardziej pożądanych dzielnic Krakowa - Prądnik Czerwony, przy ul. Re...

3 500,00 zł

Kraków

M-2 POK 49 M2 NOWA HUTA BALKON PIWNICA PREMIUM

2 POKOJE / 49 M² / 3 PIĘTRO / BLISKO ALEI RÓŻ / NOWA HUTA / PIWNICA / CICHO OD STRONY OSIEDLA / BALKON / KLIMATYZACJA / PREMIUM KTO MOŻE ZAMIESZKAĆ ❓ Mieszkanie jest idealne dl...

3 200,00 zł

Kraków

2-POKOJOWE MIESZKANIE – OSIEDLE NA WZGÓRZACH

Na sprzedaż jasne i przestronne 2-pokojowe mieszkanie o powierzchni 38 m² , położone na 3 piętrze 4-piętrowego bloku z lat 60. Budynek jest ocieplony , a klatki schodowe czyste i zadbane ...

435 000,00 zł

Kraków

Osiedle Złocień. 3 pokojowe mieszkanie - 62,49 m 2 . Dwustronne, funkcjonalne, rozkładowe mieszkanie, z balkonem na 1 piętr

Osiedle Złocień. 3 pokojowe mieszkanie - 62,49 m 2 . Dwustronne, funkcjonalne, rozkładowe mieszkanie, z balkonem na 1 piętrze, 3-piętrowego budynku z 2006 r. Mieszkanie po generalnym remonc...

840 000,00 zł

Kraków

Nowe mieszkanie/ 2 pokoje / dojazd do S7

Nowe, wykończone mieszkanie 2-pokojowe 42 m² | Mistrzejowice | Gotowe do wprowadzenia Szukasz nowego mieszkania, ale przeraża Cię widmo długotrwałego remontu i wykończenia? Przedstawiamy ...

649 000,00 zł

Kraków

UROKLIWA DZIAŁKA Z CZĘŚCIĄ LASU Zapraszam do zapoznania się z wyjątkową ofertą sprzedaży działki budowlanej o powierzchni

UROKLIWA DZIAŁKA Z CZĘŚCIĄ LASU Zapraszam do zapoznania się z wyjątkową ofertą sprzedaży działki budowlanej o powierzchni 1948 m² , położonej w urokliwej okolicy, w Szynwałdzie. To doskon...

99 000,00 zł

Szynwałd

Na sprzedaż mieszkanie w Tarnowie przy ul. Lwowskiej - 2 pokoje, balkon, duża piwnica Mam przyjemność zaprezentować ofertę

Na sprzedaż mieszkanie w Tarnowie przy ul. Lwowskiej - 2 pokoje, balkon, duża piwnica Mam przyjemność zaprezentować ofertę sprzedaży przestronnego mieszkania o funkcjonalnym układzie, położone...

363 000,00 zł

Tarnów

Facebook
Facebook
Sprzedawanko.pl – serwis ogłoszeń Firmowanko.pl – katalog firm i usług Pracowanko.pl – serwis pracy Ugościmy.pl – serwis noclegów Nporta.pl – katalog firm i usług