📢
🔥 BLACK FRIDAY / BLACK WEEKS 2025 na Sprzedawanko.pl WSZYSTKO -30% 🔔 Skorzystaj teraz! 🔥

Smart Apartament na Prądniku Białym blisko Zieleni

781 066,00 zł

{{ phone }}

{{ email }}

Dodane przez: braciasadurscy
braciasadurscy
Lokalizacja: Pękowicka
Telefon: {{ phone }}
Udostępnij:

Opublikowano:  | Wygaśnie:

ID ogłoszenia: 15185

Szczegóły

Typ: Sprzedaż
Rynek: Pierwotny
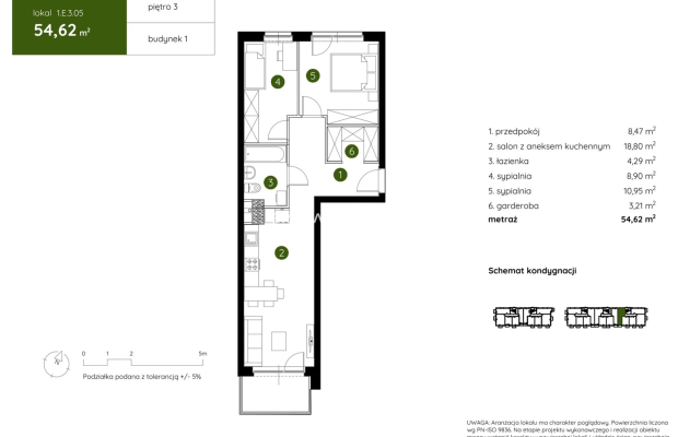
Pow. użytkowa m2: 54.62
Cena za m2 (zł): 14300
Liczba pokoi: 3
Rodzaj zabudowy: blok
Piętro: 3
Liczba pięter: 3
Materiał budynku: pustak
Okna: PCV
Rok budowy: 2024
Ogrzewanie: C.O. miejskie
Stan wykończenia: deweloperski
Własność: Odrębna własność lokalu
Agent: Patrycja Rubinkiewicz
E-mail: patrycja@sadurscy.pl
Telefon kom.: +48 505-236-943
Data aktualizacji: 2025-09-25

Opis


Z ogromną przyjemnością przedstawiamy Państwu ofertę mieszkania na sprzedaż w malowniczym rejonie Doliny Prądnika, na północy Krakowa, blisko granicy z gminą Zielonki. Nowoczesne osiedle otoczone jest rozległymi terenami zielonymi, co umożliwia codzienny kontakt z naturą i zapewnia wytchnienie od intensywnego miejskiego życia w centrum miasta.

Osiedle zostało zaprojektowane z myślą o rodzinach, parach oraz singlach, oferując szeroki wybór mieszkań o powierzchni od 26 do 73 m², w układach 1-, 2-, 3- i 4-pokojowych. Dbałość o komfort mieszkańców przejawia się w wysokiej jakości przestrzeni wspólnych, które sprzyjają nawiązywaniu sąsiedzkich relacji: skwer z ławeczkami, plac zabaw...

Budynki nowej inwestycji mające 3 i 4 kondygnacje, wyróżniają się kameralną architekturą, harmonizującą z okolicą. Przestronność obiektów gwarantuje mieszkańcom poczucie prywatności.

Zalety:


Home Management System to zaawansowana technologia inteligentnego domu, która umożliwia m.in. zarządzanie ogrzewaniem, oświetleniem i zaworami wody.
Pakiet antysmogowy w postaci filtrów montowanych w nawiewnikach okiennych dba o czystość powietrza we wnętrzach mieszkań.
Wysoki standard wykończenia części wspólnych obejmuje trwałe płytki gresowe, dekoracyjne panele imitujące drewno oraz energooszczędne oświetlenie LED.
Mieszkania na parterze posiadają tarasy z ogrodami o powierzchni do 123 m², natomiast mieszkania na wyższych kondygnacjach oferują przestronne balkony.
Termoizolacyjne łączniki balkonowe zapobiegają utracie ciepła, co przekłada się na oszczędności energetyczne.
Portfenetrowe okna zapewniają doskonałe doświetlenie wnętrz.
Na terenie osiedla zostanie zainstalowana stacja ładowania pojazdów elektrycznych, z myślą o mieszkańcach korzystających z ekologicznych środków transportu.
Zielone dachy budynków będą nie tylko estetyczne, ale również poprawią jakość powietrza i obniżą temperaturę otoczenia.


Prądnik biały to doskonale skomunikowana okolica, idealne miejsce dla osób szukających spokoju i bliskości natury, z jednoczesnym dostępem do nowoczesnych rozwiązań technologicznych.

Serdecznie zapraszam do kontaktu


--------------------------

::GRATIS | Nasza prowizja zawiera: koszt przedwstępnej notarialnej umowy sprzedaży nieruchomości z rynku wtórnego.
::GWARANCJA | Gwarancja zwrotu zadatku. Więcej informacji na sadurscy.pl/zwrot-zadatku/


Oferta wysłana z systemu Galactica Virgo

Komentarze (0)

Nic nie znaleziono

Tylko zalogowani użytkownicy mogą dodawać komentarze

Mapa

Formularz kontaktowy

This site is protected by reCAPTCHA and the Google Privacy Policy and Terms of Service apply.

Podobne ogłoszenia

Cisza, wygoda i szybki dojazd do serca Krakowa!

Przestronne 50 m² z dużym balkonem - spokój i szybki dostęp do centrum Krakowa, Prądnik Biały Zdjęcia należą do właściciela oferty. Jeżeli lubisz ciszę i spokój, a zarazem cenisz sobi...

3 650,00 zł

Kraków

Działka budowlano-usługowa Wezerów, Słomniki

Działka budowlano-usługowa w Wężerowie k/Słomnik Oferujemy działkę budowlaną o pow. 42 ar położoną w Wężerowie gm. Słomniki zaledwie 250 m od drogi wojewódzkiej 772 (stara DK7) i zaledwi...

684 012,00 zł

Krakowski

Działka budowlana Swoszowice

Do sprzedaży wyjątkowo atrakcyjna działka budowlana o powierzchni 78 ar w Swoszowicach. Istnieje możliwość dokupienia sąsiedniej działki o powierzchni około 40 ar. Nieruchomość składa s...

4 300 000,00 zł

Kraków

Nowa Sól, mieszkanie, kawalerka, 28 m2, sprzedam 199 000zł. Na sprzedaż kawalerka składająca się jednego pokoju, kuchni, pr

Nowa Sól, mieszkanie, kawalerka, 28 m2, sprzedam 199 000zł. Na sprzedaż kawalerka składająca się jednego pokoju, kuchni, przedpokoju oraz łazienki z prysznicem i w.c. Mieszkanie położone jest ...

199 000,00 zł

Lubuskie

Nowa Sól, mieszkanie, 3 pokoje, parter, sprzedam, 399 000 zł. REZERWACJA Na sprzedaż komfortowe mieszkanie położone p

Nowa Sól, mieszkanie, 3 pokoje, parter, sprzedam, 399 000 zł. REZERWACJA Na sprzedaż komfortowe mieszkanie położone przy ul. Przyszłości w Nowej Soli. Mieszkanie po remoncie. UKŁAD...

399 000,00 zł

Lubuskie

Nowa Sól, mieszkanie, 2 pokoje, 1 piętro, 52 m2, sprzedam, 289 000 zł. Na sprzedaż komfortowe dwupokojowe mieszkanie położ

Nowa Sól, mieszkanie, 2 pokoje, 1 piętro, 52 m2, sprzedam, 289 000 zł. Na sprzedaż komfortowe dwupokojowe mieszkanie położone przy ul. Moniuszki w Nowej Soli. Mieszkanie jest po remoncie, wy...

289 000,00 zł

Lubuskie

Szymocin, gm Grębocice, działka budowlana 1500, cena 115 000zł. Zapraszamy do zapoznania się z ofertą działek budowlany

Szymocin, gm Grębocice, działka budowlana 1500, cena 115 000zł. Zapraszamy do zapoznania się z ofertą działek budowlanych. Znakomita lokalizacja na ruchliwej drodze z bliskim dostępem do ...

115 000,00 zł

Dolnośląskie

Gaiki, gmina Jerzmanowa, działka budowlana, 2000m2, cena 135000zł. Możliwa zamiana na garaż w Polkowicach! Zapraszam

Gaiki, gmina Jerzmanowa, działka budowlana, 2000m2, cena 135000zł. Możliwa zamiana na garaż w Polkowicach! Zapraszam do zapoznania się z ofertą gruntu budowlanego w miejscowości Gaiki (gm. J...

135 000,00 zł

Dolnośląskie

Kłobuczyn, gmina Gaworzyce, działka budowlana, 2900m2, cena 155000zł. Zapraszam do zapoznania się z ofertą gruntu budowlan

Kłobuczyn, gmina Gaworzyce, działka budowlana, 2900m2, cena 155000zł. Zapraszam do zapoznania się z ofertą gruntu budowlanego w miejscowości Kłobuczyn (gm. Gaworzyce). Działka leży w bardzo ...

155 000,00 zł

Dolnośląskie

Kłobuczyn, gmina Gaworzyce, działka budowlana, 2800m2, cena 150000zł. Zapraszam do zapoznania się z ofertą gruntu budowlan

Kłobuczyn, gmina Gaworzyce, działka budowlana, 2800m2, cena 150000zł. Zapraszam do zapoznania się z ofertą gruntu budowlanego w miejscowości Kłobuczyn (gm. Gaworzyce) - odległość od większych ośr...

150 000,00 zł

Dolnośląskie

Kłobuczyn, gmina Gaworzyce, działka budowlana, 1323m2, cena 79 000zł. Zapraszam do zapoznania się z ofertą działek budowla

Kłobuczyn, gmina Gaworzyce, działka budowlana, 1323m2, cena 79 000zł. Zapraszam do zapoznania się z ofertą działek budowlanych znajdujących się w miejscowości Kłobuczyn. Odległość od większy...

79 000,00 zł

Dolnośląskie

Pogorzeliska, gm Chocianów, działka budowlana 1280m2, cena 100 000. Zapraszam do zapoznania się z ofertą bardzo atrakcy

Pogorzeliska, gm Chocianów, działka budowlana 1280m2, cena 100 000. Zapraszam do zapoznania się z ofertą bardzo atrakcyjnie zlokalizowanej działki w Pogorzeliskach (gm. Chocianów). Odl...

100 000,00 zł

Dolnośląskie

Kłobuczyn, gmina Gaworzyce, działka budowlana, 2244m2, cena 85 000zł. Zapraszam do zapoznania się z ofertą działek budowla

Kłobuczyn, gmina Gaworzyce, działka budowlana, 2244m2, cena 85 000zł. Zapraszam do zapoznania się z ofertą działek budowlanych znajdujących się w miejscowości Kłobuczyn. Odległość od większy...

85 000,00 zł

Dolnośląskie

Lubin, działka 8294 m2, sprzedam, cena 1 500 000 zł. Zapraszam do zapoznania się z ofertą sprzedaży nieruchomości gruntowe

Lubin, działka 8294 m2, sprzedam, cena 1 500 000 zł. Zapraszam do zapoznania się z ofertą sprzedaży nieruchomości gruntowej o powierzchni 8294 m2, położonej w Lubinie przy ulicy Przemysłowej. Dzi...

1 500 000,00 zł

Dolnośląskie

Przemków,Fabryczna, działka budowlana 1432m2, sprzedam, cena 70 000zł. Na sprzedaż działka budowlana przy ulicy fabrycznej

Przemków,Fabryczna, działka budowlana 1432m2, sprzedam, cena 70 000zł. Na sprzedaż działka budowlana przy ulicy fabrycznej. Działka przy ulicy fabrycznej i od tej strony oznaczony na mapkach wjaz...

70 000,00 zł

Dolnośląskie

Polkowice, działka budowlana, 15002, cena 320000zł. Zapraszam do zapoznania się z ofertą bardzo atrakcyjnie położonej dzia

Polkowice, działka budowlana, 15002, cena 320000zł. Zapraszam do zapoznania się z ofertą bardzo atrakcyjnie położonej działki w Polkowicach niedaleko ulicy Truskawkowej. Na sprzedaż część wy...

320 000,00 zł

Dolnośląskie

Siedlce, gmina Lubin, działka budowlana, 9787 m2, sprzedaż, 390000 zł. Działka w części budowlana położona w miejscowości

Siedlce, gmina Lubin, działka budowlana, 9787 m2, sprzedaż, 390000 zł. Działka w części budowlana położona w miejscowości Siedlce w odległości 8 km od Lubina. Teren wg miejscowego planu zagospoda...

390 000,00 zł

Dolnośląskie

Siedlce, gmina Lubin, działka budowlana, 3313 m2, sprzedaż, 132000 zł. Działka w części budowlana położona w miejscowości

Siedlce, gmina Lubin, działka budowlana, 3313 m2, sprzedaż, 132000 zł. Działka w części budowlana położona w miejscowości Siedlce w odległości 8 km od Lubina. Teren wg miejscowego planu zago...

132 000,00 zł

Dolnośląskie

Ścinawa, działka budowlana 1200m2, sprzedaż 80000zł. Zapraszam do zapoznania się z ofertą sprzedaży działki położonej w Śc

Ścinawa, działka budowlana 1200m2, sprzedaż 80000zł. Zapraszam do zapoznania się z ofertą sprzedaży działki położonej w Ścinawie. Grunt położony jest w północno - zachodniej części miasta. ...

80 000,00 zł

Dolnośląskie

Jędrzychów, działka rolna, 7000m2, 150 000zł, sprzedam. Zapraszam do zapoznania się z ofertą działki rolnej położonej w miejs

Jędrzychów, działka rolna, 7000m2, 150 000zł, sprzedam. Zapraszam do zapoznania się z ofertą działki rolnej położonej w miejscowości Jędrzychów (gm. Polkowice). Sporych rozmiarów 70 arowy grunt ro...

150 000,00 zł

Dolnośląskie

Chocianowiec, działka rolna do przekształcenia, 1200m2, 99 000zł, sprzedam. Zapraszam do zapoznania się z ofertą znakomicie p

Chocianowiec, działka rolna do przekształcenia, 1200m2, 99 000zł, sprzedam. Zapraszam do zapoznania się z ofertą znakomicie położonej działki w Chocianowcu (pow. polkowicki, gm. Chocianów). Na spr...

99 000,00 zł

Dolnośląskie

Szklarki, gmina Przemków, powiat polkowicki, działka rolna, 6400m2, sprzedam, 99 000 zł. Zapraszam do zapoznania się z ofe

Szklarki, gmina Przemków, powiat polkowicki, działka rolna, 6400m2, sprzedam, 99 000 zł. Zapraszam do zapoznania się z ofertą działki rolnej w miejscowości Szklarki (gm. Przemków_ powiat Polkowic...

99 000,00 zł

Dolnośląskie

Małomice, działka budowlana 1837m2, sprzedam, cena 250 000zł. Na sprzedaż działka budowlana w miejscowości Małomice (pow.

Małomice, działka budowlana 1837m2, sprzedam, cena 250 000zł. Na sprzedaż działka budowlana w miejscowości Małomice (pow. żagański) na ulicy Wiśniowej. Grunt obejmuje dwie działki i znajduje się...

250 000,00 zł

Lubuskie

Przemków,Krochmalna, działka budowlana 1425m2, sprzedam, cena 70 000zł. Na sprzedaż działka budowlana między ulicami Fabry

Przemków,Krochmalna, działka budowlana 1425m2, sprzedam, cena 70 000zł. Na sprzedaż działka budowlana między ulicami Fabryczną, a Krochmalną. Grunt o kształcie kwadratu doskonale wpisuje się pod ...

70 000,00 zł

Dolnośląskie

Komorniki, gmina Polkowice, działki pod zabudowę jednorodzinną, 1931 m2, sprzedam, cena 193 100 zł. KUPUJĄCY NIE PŁACI WYN

Komorniki, gmina Polkowice, działki pod zabudowę jednorodzinną, 1931 m2, sprzedam, cena 193 100 zł. KUPUJĄCY NIE PŁACI WYNAGRODZENIA DLA BIURA!!! Oferuję na sprzedaż dwie duże, osobne działk...

193 100,00 zł

Dolnośląskie

Chocianów, powiat Polkowice, działka, 2509 m2, sprzedaż, 195000 zł. Na sprzedaż grunt budowlany, działka 322/10 w miejscow

Chocianów, powiat Polkowice, działka, 2509 m2, sprzedaż, 195000 zł. Na sprzedaż grunt budowlany, działka 322/10 w miejscowości Chocianów. Odległość do: Polkowic 16 km, Lubina 25 km, Głogowa 36 k...

195 000,00 zł

Dolnośląskie

Jędrzychów, działka rolna do przekształcenia, 3000m2, 150 000zł, sprzedam. Zapraszam do zapoznania się z ofertą działki ro

Jędrzychów, działka rolna do przekształcenia, 3000m2, 150 000zł, sprzedam. Zapraszam do zapoznania się z ofertą działki rolnej położonej w miejscowości Jędrzychów (gm. Polkowice). Działka rol...

150 000,00 zł

Dolnośląskie

Chocianów, działka budowlana 1112 m2, sprzedam, cena 90 000 zł. Zapraszam do zapoznania się z ofertą bardzo ciekawie uloko

Chocianów, działka budowlana 1112 m2, sprzedam, cena 90 000 zł. Zapraszam do zapoznania się z ofertą bardzo ciekawie ulokowanych działek wzdłuż ulicy Długiej w Chocianowie. Oba grunty w podobnej ...

90 000,00 zł

Dolnośląskie

Facebook
Facebook
Sprzedawanko.pl – serwis ogłoszeń Firmowanko.pl – katalog firm i usług Pracowanko.pl – serwis pracy Ugościmy.pl – serwis noclegów Nporta.pl – katalog firm i usług