📢
🔥 Już Jutro Nowa Promocja tylko na Sprzedawanko.pl! 🔔 Skorzystaj teraz! 🔥

Segment w zabudowie bliźniaczej 75m2

769 000,00 zł

{{ phone }}

{{ email }}

Dodane przez: braciasadurscy
braciasadurscy
Lokalizacja: Kraśnik
Telefon: {{ phone }}
Udostępnij:

Opublikowano:  | Wygaśnie:

ID ogłoszenia: 14600

Szczegóły

Typ: Sprzedaż
Rynek: Pierwotny
Pow. użytkowa m2: 80
Pow. działki m2: 189
Cena za m2 (zł): 9612.5
Liczba pokoi: 3
Liczba sypialni: 2
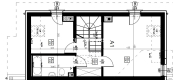
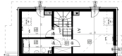
Liczba pięter: 2
Rodzaj zabudowy: segment skrajny
Okna: aluminiowe 3 szybowe, ciepły montaż
Rok budowy: 2026
Ogrzewanie: piec dwufunkcyjny
Własność: Własność
Dach: dachówka cementowa
Agent: Urszula Grecka
E-mail: ula@sadurscy.pl
Telefon kom.: +48 790-804-186
Data aktualizacji: 2025-10-03

Opis


KUPUJĄCY NIE PŁACI PROWIZJI I PCC

Biuro Nieruchomości Bracia Sadurscy ma przyjemność zaoferować Państwu na sprzedaż domy w inwestycji ,która obejmuje dwa budynki w zabudowie bliźniaczej, podzielone łącznie na 8 segmentów.
Oferta dotyczy dwupoziomowego segmentu zewnętrznego (parter + poddasze) o powierzchni użytkowej ok. 75 m² (powierzchnia podłóg ok. 80 m²) z dodatkowym poddaszem (strych) o pow. netto ok. 20 m² (nie wliczonym w cenę).
Powierzchnia działki około 189 m² (1,89 ara).
IA - lokal A1, z 2 miejscami postojowymi

Lokalizacja:
Segmenty powstają w miejscowości Wrząsowice (gmina Świątniki Górne), zaledwie ok. 1,5 km od granicy Krakowa , zaledwie kilka minut od centrum Swoszowic.

Standard i technologia:
Budynki zostaną oddane w stanie deweloperskim, wykonane w technologii tradycyjnej:



ściany murowane z bloczków TERMOBET,


dach kryty dachówką cementową CREATON,


ocieplenie - styropian 15 cm.



W ramach stanu deweloperskiego wykonane zostaną:



instalacje wewnętrzne (wod.-kan., gaz, c.o., elektryka),


tynki wewnętrzne, wylewki,


instalacja c.o. z kotłem gazowym oraz przygotowaniem pod kominek.



Otoczenie:
Teren wokół budynków zostanie ogrodzony i zagospodarowany - powstaną dojścia do budynków, miejsca postojowe oraz tarasy.
Do każdego segmentu przynależy wydzielona, ogrodzona część działki do wyłącznego korzystania przez właściciela.
W cenie zapewnione dwa miejsca postojowe.
Budynki będą podłączone do gminnej sieci kanalizacyjnej.



Ważne informacje:



podane ceny są cenami brutto i zawierają podatek VAT,


Kupujący zwolniony jest z podatku PCC (2%),


w cenie uwzględniony jest udział w drodze wewnętrznej.



Terminy:



zakończenie budowy: lipiec/sierpień 2026,


oddanie do użytkowania: wrzesień/październik 2026.




Serdecznie zapraszam do kontaktu oraz na prezentacje!
Urszula Grecka
tel: 790-804-186
email: ula@sadurscy.pl



--------------------------

::GRATIS | Nasza prowizja zawiera: koszt przedwstępnej notarialnej umowy sprzedaży nieruchomości z rynku wtórnego.
::GWARANCJA | Gwarancja zwrotu zadatku. Więcej informacji na sadurscy.pl/zwrot-zadatku/


Oferta wysłana z systemu Galactica Virgo

Komentarze (0)

Nic nie znaleziono

Tylko zalogowani użytkownicy mogą dodawać komentarze

Mapa

Formularz kontaktowy

This site is protected by reCAPTCHA and the Google Privacy Policy and Terms of Service apply.

Podobne ogłoszenia

Umeblowane 2pok z balkonem, TV + Netflix + PLAY

ZDJĘCIA W OFERCIE NALEŻĄ DO WŁAŚCICIELA OFERTY Biuro Nieruchomości Bracia Sadurscy ma przyjemność zaprezentować mieszkanie 2-pokojowe o łącznej powierzchni około 36 m 2 na 4. ostatnim piętrze ...

2 600,00 zł

Kraków

36m2 Stare Miasto, Św. Krzyża bez prowizji

ENGLISH BELOW Unikatowa inwestycja w samym sercu Krakowa - około 36 m² + ok. 36 m² wspólnego korytarza w odnowionej kamienicy przy ul. Św. Krzyża. Na innych ofertach prezentujemy sprzedaż c...

1 050 000,00 zł

Kraków

78m2 Stare Miasto, Św. Krzyża bez prowizji

ENGLISH BELOW Unikatowa inwestycja w samym sercu Krakowa - około 78 m² + ok. 36 m² wspólnego korytarza w odnowionej kamienicy przy ul. Św. Krzyża. Na innych ofertach prezentujemy sprzedaż c...

2 100 000,00 zł

Kraków

46m2 Stare Miasto, Św. Krzyża bez prowizji

ENGLISH BELOW Unikatowa inwestycja w samym sercu Krakowa - około 46 m² w odnowionej kamienicy przy ul. Św. Krzyża. Na innych ofertach prezentujemy sprzedaż całej nieruchomości o powierzchni 250...

1 150 000,00 zł

Kraków

Budynek idealny pod produkcje / siedzibę firmy

Atrakcyjna powierzchnia do najmu pod produkcje Skała koło Krakowa . Nieruchomość zlokalizowana jest w województwie małopolskim około 15 km od Krakowa . Przedmiotem najmu jest parter budynku o ...

10 000,00 zł

Krakowski

Działka produkcyjno – usługowa w Morawicy

D ziałka produkcyjno - usługowa w Morawicy gm. Liszki Oferujemy na sprzedaż działkę produkcyjno-usługową położoną w Morawicy gm Liszki, tuż obok lotniska w Balicach. Działka o powierzchni ...

396 000,00 zł

Morawica

Działka produkcyjno – usługowa w Morawicy

D ziałka produkcyjno - usługowa w Morawicy gm. Liszki Oferujemy na sprzedaż działkę produkcyjno-usługową położoną w Morawicy gm Liszki, tuż obok lotniska w Balicach. Działka o powierzchni ...

497 000,00 zł

Morawica

40m2 Stare Miasto, Św. Krzyża bez prowizji

ENGLISH BELOW Unikatowa inwestycja w samym sercu Krakowa - około 40 m² + ok. 36 m² wspólnego korytarza w odnowionej kamienicy przy ul. Św. Krzyża. Na innych ofertach prezentujemy sprzedaż c...

1 150 000,00 zł

Kraków

125m2 Stare Miasto, Św. Krzyża bez prowizji

ENGLISH BELOW Unikatowa inwestycja w samym sercu Krakowa - 125 m² w odnowionej kamienicy przy ul. Św. Krzyża. Na innych ofertach prezentujemy sprzedaż całej nieruchomości o powierzchni 250 m² ...

2 812 500,00 zł

Kraków

Okazja inwestycyjna na Starym Mieście, 125m2

ENGLISH BELOW Unikatowa inwestycja w samym sercu Krakowa - 125 m² w odnowionej kamienicy przy ul. Św. Krzyża. Na innych ofertach prezentujemy sprzedaż całej nieruchomości o powierzchni 250 m² ...

2 812 500,00 zł

Kraków

26m2 Stare Miasto, Św. Krzyża bez prowizji

ENGLISH BELOW Unikatowa inwestycja w samym sercu Krakowa - około 26 m² + ok. 36 m² wspólnego korytarza w odnowionej kamienicy przy ul. Św. Krzyża. Na innych ofertach prezentujemy sprzedaż cał...

800 000,00 zł

Kraków

Połowa bliźniaka ze sporym ogródkiem.

Zapraszam do Zielonek by zamieszkać w ciszy i spokoju z doskonałym dojazdem i infrastrukturą. Zielonki przechodzą w ostatnich latach ogromną przemianę dzięki nowo powstałym osiedlom oraz ro...

1 320 000,00 zł

Zielonki

250m2 Stare Miasto, Św. Krzyża bez prowizji

ENGLISH BELOW Unikatowa inwestycja w samym sercu Krakowa - 250 m² w odnowionej kamienicy przy ul. Św. Krzyża Tylko w Biurze Bracia Sadurscy - na sprzedaż niepowtarzalna przestrzeń o łącznej...

5 250 000,00 zł

Kraków

W pełni wyposażony gabinet kosmetyczno-lekarski

Do wynajęcia - w pełni wyposażony gabinet kosmetyczno-lekarski | Kraków, ul. Dąbska Prezentujemy ofertę wynajmu nowoczesnego, w pełni wyposażonego gabinetu kosmetyczno-lekarskiego (poradni ...

8 000,00 zł

Kraków

2 pokojowe os. Kalinowe

2-pokojowe mieszkanie na osiedlu Kalinowym - 47,72 m² | Kraków - Bieńczyce Na sprzedaż oferujemy funkcjonalne, dwupokojowe mieszkanie o powierzchni 47,72 m² , położone na wysokim parterze w...

530 001,00 zł

Kraków

SŁONECZNY, GUSTOWNY, ZADBANY, Z KLASĄ

SŁONECZNY, GUSTOWNY, BARDZO ZADBANY Z KLIMATYCZNYM OGRODEM LOKALIZACJA Mam przyjemność zaprezentować bardzo ładny, bardzo zadbany dom w zabudowie bliźniaczej, poł...

1 290 000,00 zł

Mogilany

Wynajmę,3-pok,Skawina,dużo zieleni

SKAWINA - Kraszewskiego Oferujemy do wynajmu piękne, rozkładowe mieszkanie o powierzchni 78 m2 składające się z: - Trzech oddzielnych pokoi o powierzchniach: 25,5 / 24 / 9,5 m2. Pokoje...

3 200,00 zł

Skawina

2 pok, duży balkon, osoba kuchnia, parking, tv ENG

English version bellow Do wynajęcia funkcjonalne i ciche mieszkanie o powierzchni 51,5 m² w spokojnej części Bronowic, położone na 4. z 5 pięter w budynku z windą. Lokal po odświeżeniu, gotowy ...

3 300,00 zł

Kraków

3 pok. oddzielne sypialnie, 2 balkony + duży salon

Oferujemy przestronne i w pełni wyposażone mieszkanie zlokalizowane przy ul. Armii Krajowej 12 w Krakowie, na 6. piętrze w 11-piętrowym budynku z dużą, cichobieżną windą. Mieszkanie - Powierzc...

4 000,00 zł

Kraków

Apartament z klimatyzacją i 2 balkonami - od zaraz

ENGLISH BELOW Do wynajęcia komfortowe, w pełni wyposażone mieszkanie o powierzchni 47 m², zlokalizowane przy ul. Wrocławskiej w Krakowie . Lokal 2-pokojowy położony na 6. piętrze 7-piętrowego bu...

3 700,00 zł

Kraków

Kawalerka 34m2, balkon, parking, pełne wyp.

ZDJĘCIA W OFERCIE NALEŻĄ DO WŁAŚCICIELA OFERTY Do wynajęcia 1-pokojowe mieszkanie o powierzchni 34m2 przy ul. Huculskiej w Łagiewnikach. Mieszkanie znajduje się na 2. piętrze (ostatnim) budynku...

1 900,00 zł

Kraków

3 pokoje, duży taras, garaż, wysoki standard

ENGLISH BELOW Do wynajęcia jasne, świetnie zaprojektowane mieszkanie 48 m² przy ul. Przemiarki - idealne dla wymagającego singla lub pary, którzy chcą mieszkać wygodnie, w ciszy i z szybkim doj...

3 200,00 zł

Kraków

3 pok z osbną kuchnią ul. Zielińska.

Do wynajęcia 3-pokojowe mieszkanie, ul. Zielińska, Kraków - komfortowa lokalizacja i wygoda codziennego życia Na powierzchnię mieszkania 45,5 m2 składa się : -oddzielna, widna kuchnia z...

2 600,00 zł

Kraków

4/5 pok ok 107m2 z 2 duzymi balkonami Ruczaj

KRAKÓW/DĘBNIKI-RUCZAJ! Nowe, klimatyczne 4-pokojowe dwupoziomowe mieszkanie | 2 balkony | Ruczaj - Dębniki | 2024 rok! Szukasz komfortowego, nowego mieszkania w spokojne...

4 000,00 zł

Kraków

1 pok. Nowoczesne. Na wyłączność.

Przy ulicy Prądnickiej, w nowym budynku, znajduje się prześliczne mieszkanie w którym możecie Państwo zamieszkać od razu. Z okien i balkonu rozpościera się piękny widok na zadbaną bujną zieleń. ...

2 150,00 zł

Kraków

Kawalerka | os. Jagiellońskie | od zaraz

ZDJĘCIA W OFERCIE NALEŻĄ DO WŁAŚCICIELA OFERTY Do wynajęcia przytulna i w pełni wyposażona kawalerka o powierzchni 19m², położona na spokojnym i dobrze skomunikowanym Osiedlu Jagiellońskim w K...

1 700,00 zł

Kraków

Stare Dębniki, wynaję

ZDJĘCIA W OGŁOSZENIU NALEŻĄ DO WŁAŚCICIELA OFERTY Stare Dębniki - ulica Różana Oferujemy do najmu oddzielny pokój w dwupokojowym mieszkaniu o powierzchni ok. 47 m2 składającym się...

1 300,00 zł

Kraków

Wynajmę nowe 2-pok mieszkanie dla singla/ul.Reduta

Wynajmę 2-pok. mieszkanie z dużym balkonem, Prądnik Czerwony ul.Reduta Właściciel nie wyraża zgody na wynajem obcokrajowcom, studentom oraz osobom posiadającym zwierzęta. ...

2 500,00 zł

Kraków

Facebook
Facebook
Sprzedawanko.pl – serwis ogłoszeń Firmowanko.pl – katalog firm i usług Pracowanko.pl – serwis pracy Ugościmy.pl – serwis noclegów Nporta.pl – katalog firm i usług