📢
🔥 BLACK FRIDAY / BLACK WEEKS 2025 na Sprzedawanko.pl WSZYSTKO -30% 🔔 Skorzystaj teraz! 🔥

Smart Apartament na Prądniku Białym blisko Zieleni

704 888,00 zł

{{ phone }}

{{ email }}

Dodane przez: braciasadurscy
braciasadurscy
Lokalizacja: Pękowicka
Telefon: {{ phone }}
Udostępnij:

Opublikowano:  | Wygaśnie:

ID ogłoszenia: 13758

Szczegóły

Typ: Sprzedaż
Rynek: Pierwotny
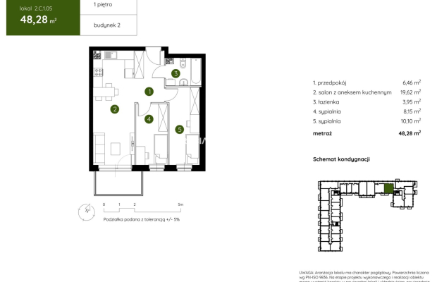
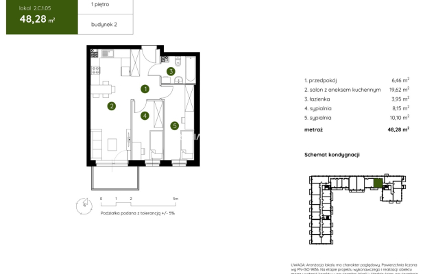
Pow. użytkowa m2: 48.28
Cena za m2 (zł): 14600
Liczba pokoi: 3
Rodzaj zabudowy: blok
Piętro: 1
Liczba pięter: 3
Materiał budynku: pustak
Okna: PCV
Rok budowy: 2024
Ogrzewanie: C.O. miejskie
Stan wykończenia: deweloperski
Własność: Odrębna własność lokalu
Agent: Patrycja Rubinkiewicz
E-mail: patrycja@sadurscy.pl
Telefon kom.: +48 505-236-943
Data aktualizacji: 2025-09-25

Opis


Z ogromną przyjemnością przedstawiamy Państwu ofertę mieszkania na sprzedaż w malowniczym rejonie Doliny Prądnika, na północy Krakowa, blisko granicy z gminą Zielonki. Nowoczesne osiedle otoczone jest rozległymi terenami zielonymi, co umożliwia codzienny kontakt z naturą i zapewnia wytchnienie od intensywnego miejskiego życia w centrum miasta.

Osiedle zostało zaprojektowane z myślą o rodzinach, parach oraz singlach, oferując szeroki wybór mieszkań o powierzchni od 26 do 73 m², w układach 1-, 2-, 3- i 4-pokojowych. Dbałość o komfort mieszkańców przejawia się w wysokiej jakości przestrzeni wspólnych, które sprzyjają nawiązywaniu sąsiedzkich relacji: skwer z ławeczkami, plac zabaw...

Budynki nowej inwestycji mające 3 i 4 kondygnacje, wyróżniają się kameralną architekturą, harmonizującą z okolicą. Przestronność obiektów gwarantuje mieszkańcom poczucie prywatności.

Zalety:


Home Management System to zaawansowana technologia inteligentnego domu, która umożliwia m.in. zarządzanie ogrzewaniem, oświetleniem i zaworami wody.
Pakiet antysmogowy w postaci filtrów montowanych w nawiewnikach okiennych dba o czystość powietrza we wnętrzach mieszkań.
Wysoki standard wykończenia części wspólnych obejmuje trwałe płytki gresowe, dekoracyjne panele imitujące drewno oraz energooszczędne oświetlenie LED.
Mieszkania na parterze posiadają tarasy z ogrodami o powierzchni do 123 m², natomiast mieszkania na wyższych kondygnacjach oferują przestronne balkony.
Termoizolacyjne łączniki balkonowe zapobiegają utracie ciepła, co przekłada się na oszczędności energetyczne.
Portfenetrowe okna zapewniają doskonałe doświetlenie wnętrz.
Na terenie osiedla zostanie zainstalowana stacja ładowania pojazdów elektrycznych, z myślą o mieszkańcach korzystających z ekologicznych środków transportu.
Zielone dachy budynków będą nie tylko estetyczne, ale również poprawią jakość powietrza i obniżą temperaturę otoczenia.


Prądnik biały to doskonale skomunikowana okolica, idealne miejsce dla osób szukających spokoju i bliskości natury, z jednoczesnym dostępem do nowoczesnych rozwiązań technologicznych.

Serdecznie zapraszam do kontaktu


--------------------------

::GRATIS | Nasza prowizja zawiera: koszt przedwstępnej notarialnej umowy sprzedaży nieruchomości z rynku wtórnego.
::GWARANCJA | Gwarancja zwrotu zadatku. Więcej informacji na sadurscy.pl/zwrot-zadatku/


Oferta wysłana z systemu Galactica Virgo

Komentarze (0)

Nic nie znaleziono

Tylko zalogowani użytkownicy mogą dodawać komentarze

Mapa

Formularz kontaktowy

This site is protected by reCAPTCHA and the Google Privacy Policy and Terms of Service apply.

Podobne ogłoszenia

Kliny, apartament z balkonem, garaż, komórka

KLINY- KRYGOWSKIEGO - SUPER CENA - WYSOKI STANDARD + GARAŻ + KOMÓRKA LOKALIZACJA: Zapraszam do znanej z ciszy i spokoju południowej części Krakowa - Kliny, w dzielnicy Swoszowice. ...

1 199 000,00 zł

Kraków

Atrakcyjna działka budowlana Włosań gm. MOGILANY

Na sprzedaż atrakcyjne działki budowlane Włosań gm. Mogilany: BRAK PROWIZJI DLA KLUPUJĄCEGO! - 1199 m2 wymiary 35,5x33 m (rezerwacja) - 1025 m2 wymiary 32x33 m - 997 m2 wymia...

200 000,00 zł

Włosań

Twoje nowe mieszkanie czeka – ul. Borkowska!

Nowoczesne Mieszkanie na Sprzedaż - ul. Borkowska! Idealna lokalizacja, komfort i spokój - zapraszam do zapoznania się z ofertą sprzedaży mieszkania w kameralnym bloku z 2006 roku! Mieszk...

570 000,00 zł

Kraków

Przytulna kawalerka w Śródmieściu, niski czynsz.

** Oferta na wyłączność - tylko w Biurze KNC CITY **** Klucze w biurze - możliwość prezentacji w dogodnej porze **** Idealne pod wynajem lub inwestycję **ŚRÓDMIEŚCIE ul. Wschodnia : polecam do zakup...

359 000,00 zł

Lublin

Siedlisko w m. Czarnolas gm. Policzna pow. Zwoleń.

Siedlisko (dom murowany o pow. 220 m2 plus budynki gospodarcze i garaże) na działce z polem uprawnym o pow. 2,6 ha (prąd, woda, gaz) w m. Czarnolas gm. Policzna pow. Zwoleński woj. mazowieckie.Dom:pow...

880 000,00 zł

Czarnolas

Kawalerka w swietnej lokalizacji.

** BRONOWICE - ul. Lotnicza/Dr.Męcz. Majdanka - kapitalna lokalizacja ! ** ** Klucze w biurze - możliwość prezentacji w dogodnej porze **** IDEALNE DLA SINGLA/ki - pod WYNAJEM ! **BRONOWICE: polecam...

308 000,00 zł

Lublin

Wola Justowska apartament z miejscem postojowym

Wyjątkowe 2-pokojowe mieszkanie po generalnym remoncie | Królowej Jadwigi, Kraków Na sprzedaż przestronne i stylowe mieszkanie o powierzchni 53,5 m², położone na 1. piętrze kameralnego, trzypi...

1 100 000,00 zł

Kraków

SPRZEDAM LUB ZAMIENIĘ

Oleśnica, okolice Dąbrowy Tarnowskiej. Dom wolnostojący z 3-ma samodzielnymi mieszkaniami o łącznej pow. użytkowej 338,0 m 2 , na działce o łącznej pow. 4103 m 2 . Nie martw się o wkład własn...

1 280 000,00 zł

Olesno

-

Nowe 2-pokojowe mieszkanie w okolicy ul. Borowskiej GOTOWE DO ODBIORUNa sprzedaż nowoczesne, funkcjonalne mieszkanie 2-pokojowe o powierzchni 34,71 m z balkonem 5,62 m, położone w kameralnej inwestycj...

562 302,00 zł

Wrocław

Gotowa kawalerka z możliwością wydzielenia sypialni

Nowe 1-pokojowe mieszkanie w okolicy ul. BorowskiejMożliwość wydzielenia przestrzeni sypialnianej!GOTOWE DO ODBIORU Na sprzedaż nowoczesne, funkcjonalne mieszkanie 1-pokojowe o powierzchni 26,35 m z b...

429 505,00 zł

Wrocław

Dom na wsi, działka 8 ar, duży garaż

KŁOKOCZYN GM. CZERNICHÓW - DOM NA WSI 100 m2, DUŻY GARAŻ, DZIAŁKA 8 ARÓW - SUPER CENA! LOKALIZACJA: Miejscowość Kłokoczyn w gminie Czernichów oddalona jest od Krakowa ( Węzeł Mirow...

699 000,00 zł

Kłokoczyn

DZIAŁKA BUDOWLANA SZYK 47 A PŁASKA WIDOKOWA UZBRO.

DZIAŁKA BUDOWLANA / 47,8 ARÓW / WIDOKOWA / SZYK / GMINA JODŁOWNIK / POWIAT LIMANOWSKI ✅ Dane techniczne: ✅ ✔ Działka: 47,8 ar budowlana ✔ Kształt: Trapez ✔ Wymiary: 169 m x 34,7 m ...

325 000,00 zł

Szyk

nowe 2 pok 42m2 Kroworzda/Łobzów

Krowodrza - Łobzów, ul. Składowa Nowe 2-pokojowe mieszkanie 42 m² z dużym balkonem Zamieszkaj jako pierwszy! Idealne dla singla lub pary! Preferowane form...

3 000,00 zł

Kraków

DZIAŁKA BUDOWLANA SZYK 60 ARÓW PŁASKA PROSTOKĄT

DZIAŁKA BUDOWLANA / FRAGMENT ROLNY / 60 ARÓW / SZYK / GMINA JODŁOWNIK / POWIAT LIMANOWSKI ✅ Dane techniczne: ✅ ✔ Działka: 47 ar budowlana + część rolna 13 ar = 60 arów ✔ Kształt: ...

390 000,00 zł

Szyk

Łysa Góra, przestronny dom z potencjałem, 9 arów

Dom wolnostojący w spokojnej, zielonej części Łysej Góry, z szybkim dojazdem do Krakowa, Bochni i Tarnowa. Nieruchomość o powierzchni ok. 168 m² posadowiona na działce ok. 900 m², z ładnym widokie...

730 000,00 zł

Łysa Góra

Dom wolnostojący w Gaju

Dom wolnostojący w Gaju gm. Mogilany Oferujemy Państwu pięknie położone domy w Gaju gmina Mogilany. Okolica to drzewa, las i inne domki jednorodzinne. Inwestycja to mini osiedle zamkni...

999 000,00 zł

Gaj

Dom wolnostojący w Gaju

Dom wolnostojący w Gaju gm. Mogilany Oferujemy Państwu pięknie położone domy w Gaju gmina Mogilany. Okolica to drzewa, las i inne domki jednorodzinne. Inwestycja to mini osiedle zamkni...

999 000,00 zł

Gaj

Dom wolnostojący w Gaju

Dom wolnostojący w Gaju gm. Mogilany Oferujemy Państwu pięknie położone domy w Gaju gmina Mogilany. Okolica to drzewa, las i inne domki jednorodzinne. Inwestycja to mini osiedle zamkni...

999 000,00 zł

Gaj

Dom wolnostojący w Gaju

Dom wolnostojący w Gaju gm. Mogilany Oferujemy Państwu pięknie położone domy w Gaju gmina Mogilany. Okolica to drzewa, las i inne domki jednorodzinne. Inwestycja to mini osiedle zamkni...

999 000,00 zł

Gaj

Dom wolnostojący,111m2, Dojazdów, Kocmyrzów

*zdjęcia należą do właściciela oferty Oferujemy do sprzedaży dwa domy wolnostojące na granicy Krakowa i Dojazdowa, gmina Kocmyrzów-Luborzyca. Dom budowany według projektu Lilia...

639 000,00 zł

Dojazdów

Twój dom w ciszy – 15 minut od Krakowa!

Domy Odkrywców - Wrząsowice pod Krakowem! Bracia Sadurscy to oficjalny przedstawiciel handlowy dewelopera - kupując z nami nie płacisz prowizji i ukrytych kosztów!!! Domy Odkrywców...

1 650 000,00 zł

Krakowski

Idealne na start lub inwestycję!

Widokowe 2 pokoje w zielonej okolicy! Świetna lokalizacja | Piękny widok | Na sprzedaż funkcjonalne, 2-pokojowe mieszkanie o powierzchni 42,44 m², usytuowane na 9. piętrze w zadbanym bl...

570 000,00 zł

Kraków

2 pok mieszkanie w kameralnym bloku - Czyżyny!

REZERWACJA Przytulne 2 pokojowe mieszkanie o pow. 44 m 2 na os. Dywizjonu 303 Do sprzedaży funkcjonalne mieszkanie o pow. 44 m 2 położone w Czyżynach na osiedlu Dywizjonu 303 p...

740 000,00 zł

Kraków

Słoneczne 2 pok. mieszkanie na os. Szklane Domy.

REZERWACJA Słoneczne 2 pokojowe mieszkanie o pow. 54 m 2 przy Parku Szwedzkim. Do sprzedaży jasne i funkcjonalne mieszkanie o pow. 54 m 2 położone w Nowej Hucie na osiedlu Szklan...

750 000,00 zł

Kraków

Domy 4 pokoje. Rączna/Kaszów

Osiedle 7 domów jednorodzinnych w Rącznej (Kaszów) - komfort, spokój i zieleń! Bracia Sadurscy to oficjalny przedstawiciel handlowy dewelopera - kupując z nami nie płacisz prowizji i ukry...

1 010 000,00 zł

Rączna

ZADBANY,WYSOKI STANDARD DOM OK 230 M2

ZIELONKI-BIBICE/ DOM Z POTENCJAŁEM!! WYSOKI STANDARD WYKOŃCZENIA!! DOM WOLNOSTOJĄCY OK. 230 M2 (+ PODDASZE OPEN SPACE DO ZAGOSPODAROWANIA), DOBRZE ZAPROJEKTOWANE, ZADB...

2 390 000,00 zł

Bibice

3-pok z ogródkiem/Wola Duchacka/2020/garaż

Chcesz zamieszkać w mieście, z szybkim dojazdem autobusem do centrum Krakowa, ale marzy Ci się własny ogródek? rejon Bonarki Ta oferta może być właśnie dla Ciebie! Zakup możliwy także dla o...

959 000,00 zł

Kraków

dwupoziomowe z dużym potecjałem/Kurdwanów

DWUPOZIOMOWE- OSTATNIE PIĘTRO MIESZKANIE Z DUŻYM POTENCJAŁEM NA KURDWANOWIE ! 3/4-POKOJOWE MIESZKANIE Z BARDZO DUŻYM PODDASZEM (JAKO POTENCJALNIE 4 ...

870 000,00 zł

Kraków

Facebook
Facebook
Sprzedawanko.pl – serwis ogłoszeń Firmowanko.pl – katalog firm i usług Pracowanko.pl – serwis pracy Ugościmy.pl – serwis noclegów Nporta.pl – katalog firm i usług