📢
🔥 BLACK FRIDAY / BLACK WEEKS 2025 na Sprzedawanko.pl WSZYSTKO -30% 🔔 Skorzystaj teraz! 🔥

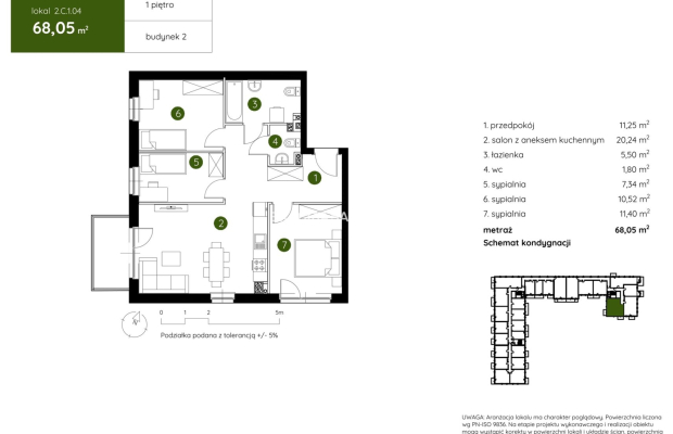
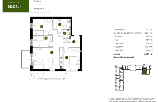
Smart Apartament na Prądniku Białym blisko Zieleni

952 700,00 zł

{{ phone }}

{{ email }}

Dodane przez: braciasadurscy
braciasadurscy
Lokalizacja: Pękowicka
Telefon: {{ phone }}
Udostępnij:

Opublikowano:  | Wygaśnie:

ID ogłoszenia: 13682

Szczegóły

Typ: Sprzedaż
Rynek: Pierwotny
Pow. użytkowa m2: 68.05
Cena za m2 (zł): 14000
Liczba pokoi: 4
Rodzaj zabudowy: blok
Piętro: 1
Liczba pięter: 3
Materiał budynku: pustak
Okna: PCV
Rok budowy: 2024
Ogrzewanie: C.O. miejskie
Stan wykończenia: deweloperski
Własność: Odrębna własność lokalu
Agent: Patrycja Rubinkiewicz
E-mail: patrycja@sadurscy.pl
Telefon kom.: +48 505-236-943
Data aktualizacji: 2025-09-25

Opis


Z ogromną przyjemnością przedstawiamy Państwu ofertę mieszkania na sprzedaż w malowniczym rejonie Doliny Prądnika, na północy Krakowa, blisko granicy z gminą Zielonki. Nowoczesne osiedle otoczone jest rozległymi terenami zielonymi, co umożliwia codzienny kontakt z naturą i zapewnia wytchnienie od intensywnego miejskiego życia w centrum miasta.

Osiedle zostało zaprojektowane z myślą o rodzinach, parach oraz singlach, oferując szeroki wybór mieszkań o powierzchni od 26 do 73 m², w układach 1-, 2-, 3- i 4-pokojowych. Dbałość o komfort mieszkańców przejawia się w wysokiej jakości przestrzeni wspólnych, które sprzyjają nawiązywaniu sąsiedzkich relacji: skwer z ławeczkami, plac zabaw...

Budynki nowej inwestycji mające 3 i 4 kondygnacje, wyróżniają się kameralną architekturą, harmonizującą z okolicą. Przestronność obiektów gwarantuje mieszkańcom poczucie prywatności.

Zalety:


Home Management System to zaawansowana technologia inteligentnego domu, która umożliwia m.in. zarządzanie ogrzewaniem, oświetleniem i zaworami wody.
Pakiet antysmogowy w postaci filtrów montowanych w nawiewnikach okiennych dba o czystość powietrza we wnętrzach mieszkań.
Wysoki standard wykończenia części wspólnych obejmuje trwałe płytki gresowe, dekoracyjne panele imitujące drewno oraz energooszczędne oświetlenie LED.
Mieszkania na parterze posiadają tarasy z ogrodami o powierzchni do 123 m², natomiast mieszkania na wyższych kondygnacjach oferują przestronne balkony.
Termoizolacyjne łączniki balkonowe zapobiegają utracie ciepła, co przekłada się na oszczędności energetyczne.
Portfenetrowe okna zapewniają doskonałe doświetlenie wnętrz.
Na terenie osiedla zostanie zainstalowana stacja ładowania pojazdów elektrycznych, z myślą o mieszkańcach korzystających z ekologicznych środków transportu.
Zielone dachy budynków będą nie tylko estetyczne, ale również poprawią jakość powietrza i obniżą temperaturę otoczenia.


Prądnik biały to doskonale skomunikowana okolica, idealne miejsce dla osób szukających spokoju i bliskości natury, z jednoczesnym dostępem do nowoczesnych rozwiązań technologicznych.

Serdecznie zapraszam do kontaktu


--------------------------

::GRATIS | Nasza prowizja zawiera: koszt przedwstępnej notarialnej umowy sprzedaży nieruchomości z rynku wtórnego.
::GWARANCJA | Gwarancja zwrotu zadatku. Więcej informacji na sadurscy.pl/zwrot-zadatku/


Oferta wysłana z systemu Galactica Virgo

Komentarze (0)

Nic nie znaleziono

Tylko zalogowani użytkownicy mogą dodawać komentarze

Mapa

Formularz kontaktowy

This site is protected by reCAPTCHA and the Google Privacy Policy and Terms of Service apply.

Podobne ogłoszenia

Dom na Bugaju, duża działka, dobra lokalizacja.

Oferta na wyłączność, dostępna tylko w biurze BESTATE Nieruchomości. Chcesz zamieszkać w cichym i spokojnym domu, ale cenisz sobie miejski styl życia? Mamy idealną ofertę dla Ciebie. Dom przy s...

1 250 000,00 zł

Pabianice

Kamienica rynek w Żywcu pod restauracje

*zdjęcia należą do właściciela oferty NA SPRZEDAŻ KAMIENICA W RYNKU W ŻYWCU PO GENERALNYM REMONCIE W 2023 ROKU LOKALIZACJA I OTOCZENIE NIERUCHOMOŚCI Przedmiotowy budynek usytuowany jest ...

4 800 000,00 zł

Żywiec

Nowoczesne Domy 157 m2 k/Ojcowa

Nowoczesne domy Maszyce w super lokalizacji k/Ojcowa Oferujemy na sprzedaż nowoczesne jednorodzinne domy w zabudowie bliźniaczej, zlokalizowanej w miejscowości Maszyce, gmina Skała, w malown...

900 000,00 zł

Krakowski

Nowoczesne Domy 157 m2 k/Ojcowa

Nowoczesne domy Maszyce w super lokalizacji k/Ojcowa Oferujemy na sprzedaż nowoczesne jednorodzinne domy w zabudowie bliźniaczej, zlokalizowanej w miejscowości Maszyce, gmina Skała, w malown...

900 000,00 zł

Krakowski

na sprzedaż 2 pokoje, balkon, Bieżanów Prokocim

2 pokoje z balkonem, niezależna kuchnia z oknem, winda, 3-cie piętro z ładnym widokiem z balkonu, Bieżanów Prokocim Zapraszam do poznania ciekawej oferty mieszkania: - 2 niezależne, prze...

529 000,00 zł

Kraków

Piękny lokal użytkowy 106m 2 z małym ogródkiem, na parterze w Piasecznie / Nowej Iwicznej, z trzema własnymi miejscami p

Piękny lokal użytkowy 106m 2 z małym ogródkiem, na parterze w Piasecznie / Nowej Iwicznej, z trzema własnymi miejscami postojowymi przed wejściem do budynku. Świetny na gastronomię, ...

1 100 000,00 zł

Piaseczno

Dom przy lesie - tylko 15min od Krakowa

* zdjęcia należą do właściciela domu Wyjątkowy dom 215m2 z widokiem i dostępem do lasu - Rzeszotary - okolice Krakowa Cena: 2 300 000zł Powierzchnia: 215m2 Działka: 26 arów Rok bud...

2 300 000,00 zł

Krakowski

Nowe osiedle mieszkaniowe Bronowice

BRONOWICE - NOWA INWESTYCJA DEWELOPERSKA Oferujemy Państwu wyjątkową inwestycję mieszkaniową , zlokalizowaną w dzielnicy Bronowice. Nowoczesna architektura i doskonała lokalizacja spot...

567 245,00 zł

Kraków

Nowe osiedle mieszkaniowe Bronowice

BRONOWICE - NOWA INWESTYCJA DEWELOPERSKA Oferujemy Państwu wyjątkową inwestycję mieszkaniową , zlokalizowaną w dzielnicy Bronowice. Nowoczesna architektura i doskonała lokalizacja spot...

554 294,00 zł

Kraków

Mieszkanie 37 m² blisko centrum Skawiny!

2-pokojowe mieszkanie 37 m² | Świetna lokalizacja | Skawina - ul. Słoneczna Na sprzedaż funkcjonalne 2-pokojowe mieszkanie o powierzchni 37 m², położone w atrakcyjnej części Skawiny - przy ul....

355 000,00 zł

Skawina

Nowe osiedle mieszkaniowe Bronowice

BRONOWICE - NOWA INWESTYCJA DEWELOPERSKA Oferujemy Państwu wyjątkową inwestycję mieszkaniową , zlokalizowaną w dzielnicy Bronowice. Nowoczesna architektura i doskonała lokalizacja spot...

565 045,00 zł

Kraków

Nowe osiedle mieszkaniowe Bronowice

BRONOWICE - NOWA INWESTYCJA DEWELOPERSKA Oferujemy Państwu wyjątkową inwestycję mieszkaniową , zlokalizowaną w dzielnicy Bronowice. Nowoczesna architektura i doskonała lokalizacja spot...

733 860,00 zł

Kraków

Nowe osiedle mieszkaniowe Bronowice

BRONOWICE - NOWA INWESTYCJA DEWELOPERSKA Oferujemy Państwu wyjątkową inwestycję mieszkaniową , zlokalizowaną w dzielnicy Bronowice. Nowoczesna architektura i doskonała lokalizacja spot...

723 609,00 zł

Kraków

Nowe osiedle mieszkaniowe Bronowice

BRONOWICE - NOWA INWESTYCJA DEWELOPERSKA Oferujemy Państwu wyjątkową inwestycję mieszkaniową , zlokalizowaną w dzielnicy Bronowice. Nowoczesna architektura i doskonała lokalizacja spot...

941 869,00 zł

Kraków

Nowe osiedle mieszkaniowe Bronowice

BRONOWICE - NOWA INWESTYCJA DEWELOPERSKA Oferujemy Państwu wyjątkową inwestycję mieszkaniową , zlokalizowaną w dzielnicy Bronowice. Nowoczesna architektura i doskonała lokalizacja spot...

729 007,00 zł

Kraków

Nowe osiedle mieszkaniowe Bronowice

BRONOWICE - NOWA INWESTYCJA DEWELOPERSKA Oferujemy Państwu wyjątkową inwestycję mieszkaniową , zlokalizowaną w dzielnicy Bronowice. Nowoczesna architektura i doskonała lokalizacja spot...

737 476,00 zł

Kraków

Nowe osiedle mieszkaniowe Bronowice

BRONOWICE - NOWA INWESTYCJA DEWELOPERSKA Oferujemy Państwu wyjątkową inwestycję mieszkaniową , zlokalizowaną w dzielnicy Bronowice. Nowoczesna architektura i doskonała lokalizacja spot...

733 159,00 zł

Kraków

Nowe osiedle mieszkaniowe Bronowice

BRONOWICE - NOWA INWESTYCJA DEWELOPERSKA Oferujemy Państwu wyjątkową inwestycję mieszkaniową , zlokalizowaną w dzielnicy Bronowice. Nowoczesna architektura i doskonała lokalizacja spot...

748 915,00 zł

Kraków

Nowe osiedle mieszkaniowe Bronowice

BRONOWICE - NOWA INWESTYCJA DEWELOPERSKA Oferujemy Państwu wyjątkową inwestycję mieszkaniową , zlokalizowaną w dzielnicy Bronowice. Nowoczesna architektura i doskonała lokalizacja spot...

743 260,00 zł

Kraków

Nowe osiedle mieszkaniowe Bronowice

BRONOWICE - NOWA INWESTYCJA DEWELOPERSKA Oferujemy Państwu wyjątkową inwestycję mieszkaniową , zlokalizowaną w dzielnicy Bronowice. Nowoczesna architektura i doskonała lokalizacja spot...

888 591,00 zł

Kraków

Nowe osiedle mieszkaniowe Bronowice

BRONOWICE - NOWA INWESTYCJA DEWELOPERSKA Oferujemy Państwu wyjątkową inwestycję mieszkaniową , zlokalizowaną w dzielnicy Bronowice. Nowoczesna architektura i doskonała lokalizacja spot...

748 593,00 zł

Kraków

Nowe osiedle mieszkaniowe Bronowice

BRONOWICE - NOWA INWESTYCJA DEWELOPERSKA Oferujemy Państwu wyjątkową inwestycję mieszkaniową , zlokalizowaną w dzielnicy Bronowice. Nowoczesna architektura i doskonała lokalizacja spot...

1 043 059,00 zł

Kraków

Nowe osiedle mieszkaniowe Bronowice

BRONOWICE - NOWA INWESTYCJA DEWELOPERSKA Oferujemy Państwu wyjątkową inwestycję mieszkaniową , zlokalizowaną w dzielnicy Bronowice. Nowoczesna architektura i doskonała lokalizacja spot...

729 817,00 zł

Kraków

Nowe osiedle mieszkaniowe Bronowice

BRONOWICE - NOWA INWESTYCJA DEWELOPERSKA Oferujemy Państwu wyjątkową inwestycję mieszkaniową , zlokalizowaną w dzielnicy Bronowice. Nowoczesna architektura i doskonała lokalizacja spot...

873 598,00 zł

Kraków

Nowe osiedle mieszkaniowe Bronowice

BRONOWICE - NOWA INWESTYCJA DEWELOPERSKA Oferujemy Państwu wyjątkową inwestycję mieszkaniową , zlokalizowaną w dzielnicy Bronowice. Nowoczesna architektura i doskonała lokalizacja spot...

854 441,00 zł

Kraków

Nowe osiedle mieszkaniowe Bronowice

BRONOWICE - NOWA INWESTYCJA DEWELOPERSKA Oferujemy Państwu wyjątkową inwestycję mieszkaniową , zlokalizowaną w dzielnicy Bronowice. Nowoczesna architektura i doskonała lokalizacja spot...

737 433,00 zł

Kraków

Nowe osiedle mieszkaniowe Bronowice

BRONOWICE - NOWA INWESTYCJA DEWELOPERSKA Oferujemy Państwu wyjątkową inwestycję mieszkaniową , zlokalizowaną w dzielnicy Bronowice. Nowoczesna architektura i doskonała lokalizacja spot...

743 694,00 zł

Kraków

Nowe osiedle mieszkaniowe Bronowice

BRONOWICE - NOWA INWESTYCJA DEWELOPERSKA Oferujemy Państwu wyjątkową inwestycję mieszkaniową , zlokalizowaną w dzielnicy Bronowice. Nowoczesna architektura i doskonała lokalizacja spot...

741 078,00 zł

Kraków

Facebook
Facebook
Sprzedawanko.pl – serwis ogłoszeń Firmowanko.pl – katalog firm i usług Pracowanko.pl – serwis pracy Ugościmy.pl – serwis noclegów Nporta.pl – katalog firm i usług