📢
🔥 Już Jutro Nowa Promocja tylko na Sprzedawanko.pl! 🔔 Skorzystaj teraz! 🔥

ATRAKCYJNE MIESKANIE 3 POK, WA-WA MARYMONT-Ruda!!

848 000,00 zł

{{ phone }}

{{ email }}

Dodane przez: braciasadurscy
braciasadurscy
Lokalizacja: Klaudyny Potockiej
Telefon: {{ phone }}
Udostępnij:

Opublikowano:  | Wygaśnie:

ID ogłoszenia: 12189

Szczegóły

Typ: Sprzedaż
Rynek: Wtórny
Pow. użytkowa m2: 58
Pow. całkowita m2: 58
Cena za m2 (zł): 14620.69
Liczba pokoi: 3
Liczba sypialni: 2
Rodzaj zabudowy: budynek wielorodzinny
Piętro: 1
Liczba pięter: 38
Materiał budynku: mieszana
Okna: PCV
Rok budowy: 1988
Ogrzewanie: centralne
Stan wykończenia: bardzo dobry
Własność: Spółdzielcze wł. - księga
Agent: Marek Popiela
E-mail: marek@sadurscy.pl
Telefon kom.: +48 518-967-677
Data aktualizacji: 2025-09-18

Opis


Atrakcyjne mieszkanie 3 pok. WA-WA Marymont
OK. 58 m2 za 848 tyś. zł
PRZEPROWADZONO GRUNTOWNY REMONT
Oferujemy do sprzedaży wygodne mieszkanie M4 po remoncie przy Lesie Bielańskim i parku Kępa Potocka. W pobliżu; szkoły, przedszkola, sklepy i usługi. Dobrze skomunikowane, przystanek 50m, bliskość Wisłostrady i ścieżki rowerowe. Miejsce postojowe na parkingu przez blokiem. Opłat dodatkowych brak.

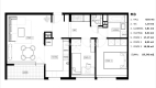
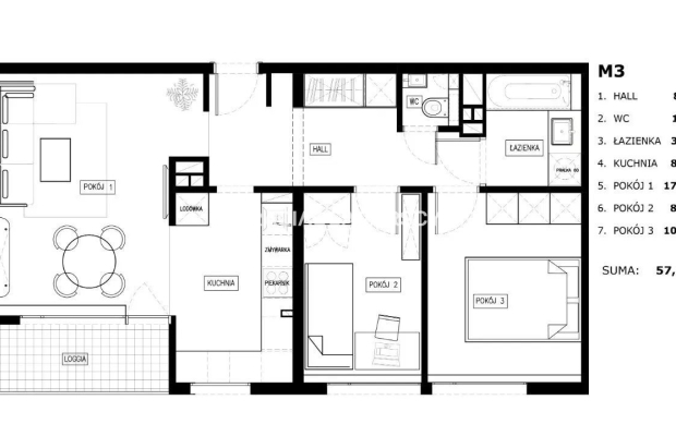
Mieszkanie składa się z; przedpokoju, salonu, widnej kuchni, 2 sypialni, łazienki, wc i loggii przeszklonej.

1. HALL 8,81 m2

2. WC 1,16 m2

3. ŁAZIENKA 3,81 m2

4. KUCHNIA 8,34 m2

5. POKÓJ 1 17,17 m2

6. POKÓJ 2 8,03 m2

7. POKÓJ 3 10,38 m2



SUMA: 57,70 m2



W mieszkaniu podczas generalnego remontu wymienione, wod.-kan., elektrykę, wentylacje. Odnowiono ściany i posadzki, okna PCV z żaluzjami.

Mieszkalnie idealne dla rodziny lub na wyjem z możliwością wydzielania dodatkowej 3 sypialni z pokoju dziennego.

Uwaga: Projekt kuchni w cenie mieszkania.
* Zdjęcia należą do właściciela

Polecam!
Marek Popiela
tel; +48 518 967 677
mail; marek@sadurscy.pl
--------------------------

::GRATIS | Nasza prowizja zawiera: koszt przedwstępnej notarialnej umowy sprzedaży nieruchomości z rynku wtórnego.
::GWARANCJA | Gwarancja zwrotu zadatku. Więcej informacji na sadurscy.pl/zwrot-zadatku/


Oferta wysłana z systemu Galactica Virgo

Komentarze (0)

Nic nie znaleziono

Tylko zalogowani użytkownicy mogą dodawać komentarze

Mapa

Formularz kontaktowy

This site is protected by reCAPTCHA and the Google Privacy Policy and Terms of Service apply.

Podobne ogłoszenia

Zabytkowy Zespół Dworsko-Parkowy (XIXw. 1880 r)

Na sprzedaż wyjątkowa nieruchomość zabytkowy Zespół Dworsko-Parkowy (XIXw. budowany do ok. 1880 r).Malowniczy zabytkowy zespół dworsko-parkowy w Turce/k. Lublina wybudowany został w latach 1861-1878 ...

10 500 000,00 zł

Turka

Dom wolno stojący - Czyżyny!

*zdjęcia należą do właściciela oferty. Dom wolno stojący na osiedlu domów jednorodzinnych w Czyżynach o pow.: 230,03 m 2 , na działce - 665 m 2 . Przestronny, komfortowy dom w bardzo dobrym s...

3 200 000,00 zł

Kraków

3 pokoje na Woli Justowskiej - 67,37m2

* zdjęcia należą do właściciela oferty 3 pokoje - Wola Justowska - 67,37m2 Do sprzedania mieszkanie w nowej inwestycji przy ulicy Borowego na Woli Justowskiej , wykończone p...

1 715 000,00 zł

Kraków

Dwa drewniane domy z czterema lokalami

Dwa drewniane domy z czterema lokalami mieszkalnymi w Łapszach Wyżnych Oferujemy na sprzedaż dwa budynki mieszkalne , jednorodzinne, wolnostojące w Łapszach Wyżnych. Domy są parterowe z uż...

2 449 000,00 zł

Łapsze Wyżne

Dwa drewniane domy z czterema lokalami

Dwa drewniane domy z czterema lokalami mieszkalnymi w Łapszach Wyżnych Oferujemy na sprzedaż dwa budynki mieszkalne , jednorodzinne, wolnostojące w Łapszach Wyżnych. Domy są parterowe z uż...

2 449 000,00 zł

Łapsze Wyżne

2 SYPIALNIE NOWA HUTA WANDA 44 M2 OSOBNA KUCHNIA

2 POKOJE SYPIALNIANE / 44 M2 / 9 PIĘTRO / WINDA / NOWA HUTA / BALKON / WIDOK / PRZYJAZNE ZWIERZĘTOM KTO MOŻE ZAMIESZKAĆ ❓ Mieszkanie jest idealne dla singla , rodziny 2+1, przyjaciół, s...

2 200,00 zł

Kraków

M-3 POK 4 PIĘTRO 53 M2 HOME OFFICE BALKON PREMIUM

3 POKÓJ / 53 M2 / 4 PIĘTRO / MIEJSCE POSTOJOWE / PRĄDNIK CZERWONY / PRACA ZDALNA / BALKON / BLISKO SERENADA / PREMIUM KTO MOŻE ZAMIESZKAĆ ❓ Mieszkanie jest idealne dla osób pracujących z...

3 700,00 zł

Kraków

2 pokoje + osobna kuchnia, blisko tramwaj, Park

Mieszkanie pełne możliwości - ul. Ułanów, Kraków Ta oferta to doskonała propozycja dla osób, które cenią sobie dobrą lokalizację, funkcjonalny układ i możliwość stworzenia wnętrza dopasowanego ...

599 000,00 zł

Kraków

Nowe 2-pokojowe z ogródkiem i parkingiem

* zdjęcia należą do właściciela mieszkania Kraków, Grzegórzki / Dąbie - 2 pokoje z ogródkiem 30m2 i z miejscem parkingowym Cena mieszkania: Powierzchnia: 41,64m2 Ogródek: 30m2 Stan nier...

920 000,00 zł

Kraków

Do wynajęcia mieszkanie o powierzchni 41 m2 położone przy ul. Piotra Skargi. Nieruchomość zlokalizowana na drugim piętrze. Sk

Do wynajęcia mieszkanie o powierzchni 41 m2 położone przy ul. Piotra Skargi. Nieruchomość zlokalizowana na drugim piętrze. Składa się z salonu z wyjściem na duży balkon, sypialni, kuchni, łazienk...

1 400,00 zł

Tarnów

3 pok Modrzejewskiej, Krowodrza

3-pokojowy lokal na wynajem - ul. Heleny Modrzejewskiej, Krowodrza - Azory Do wynajęcia przestronny lokal o powierzchni 72 m², położony na drugim piętrze w niskim, kameralnym budynku. Lokal ...

3 000,00 zł

Kraków

Maciejowice - widokowa działka z przyłączami

Uzbrojona działka budowlana - Maciejowice, gm. Kocmyrzów-Luborzyca Oferujemy wyjątkową działkę budowlaną położoną w malowniczej miejscowości Maciejowice (gmina Kocmyrzów-Luborzyca). Nieruc...

345 000,00 zł

Maciejowice

3 pok Modrzejewskiej, Krowodrza

3-pokojowe mieszkanie na wynajem - ul. Heleny Modrzejewskiej, Krowodrza - Azory Do wynajęcia przestronne mieszkanie o powierzchni 72 m², położone na drugim piętrze w niskim, kameralnym budyn...

3 000,00 zł

Kraków

2-pok./nowe budownictwo/winda/do wejscia/Łagiewnik

Jasne, 2-pok. mieszkanie z 2011r. w Borku Fałęckim, ul. Zbrojarzy, gotowe do wejścia Do sprzedaży oferujemy 2-pok.mieszkanie o pow. 36,21 m 2 usytuowane na 2.piętrze w 3.piętrowym budynku z...

555 000,00 zł

Kraków

Dom na wsi w Przyłęku pow. Zwoleń, mazowieckie.

Siedlisko ( dom murowany 55 m2 plus budynki gospodarcze ) na działce o pow. 0,36 ha (3623 m2) w cichej i spokojnej miejscowości Przyłęk gm. Przyłęk pow. zwoleński woj. mazowieckie w bliskiej odległo...

195 000,00 zł

Przyłęk

PIĘKNY DOM W DOBREJ CENIE NA ATRAKCYJNEJ DZIAŁCE

SOLIDNY, PONADCZASOWY W ATRAKCYJNEJ CENIE NA DUŻEJ 55 AR ZAGOSPODAROWANEJ DZIAŁCE LOKALIZACJA, DZIAŁKA Z przyjemnością prezentujemy atrakcyjną ofertę sprzedaż...

1 990 000,00 zł

Mogilany

2 pokoje przy Bonarce

2 pokoje | Od zaraz | Pets Friendly Biuro Nieruchomości Bracia Sadurscy ma przyjemność zaprezentować komfortowe mieszkanie dwupokojowe o powierzchni 37,55 m² , zlokalizowane w nowoczesn...

2 700,00 zł

Kraków

2 pokojowe przy Bonarce

2 pokoje | Od zaraz | Pets Friendly Biuro Nieruchomości Bracia Sadurscy ma przyjemność zaprezentować komfortowe mieszkanie o powierzchni 38 m² , zlokalizowane w nowoczesnym kompleksie p...

2 600,00 zł

Kraków

GUSTOWNE, PIEKNE, SŁONECZNE 3-POKOJOWE Z BALKONEM

ATRAKCYJNE, GOTOWE DO WEJŚCIA, PO GENERALNYM REMONCIE W BARDZO DOBREJ LOKALIZACJI MIESZKANIE, BUDYNEK Z dużą przyjemnością prezentujemy bardzo atrakcyjne mies...

792 000,00 zł

Kraków

Nowoczesna kawalerka przy Bonarce

Kawalerka | Od zaraz | Pets Friendly Biuro Nieruchomości Bracia Sadurscy ma przyjemność zaprezentować komfortową kawalerkę o powierzchni 25,32 m² , zlokalizowaną w nowoczesnym kompleksi...

1 990,00 zł

Kraków

Kawalerka 30 m2 (oddzielna kuchnia) centrum Puław.

Mieszkanie (kawalerka z oddzielną kuchnią oraz balkonem) o pow. 30 m2 po generalnym remoncie w bardzo dobrym stanie technicznym na drugim piętrze kamienicy w centrum Puław woj. lubelskie.Mieszkanie: p...

270 000,00 zł

Puławy

Blisko Nałęczowa, 3 pokoje z garażem i działką.

** Oferta tylko w Biurze KNC City **** Klucze w biurze - możliwość prezentacji w dogodnej porze **NIEZABITÓW gm.Poniatowa: polecam do zakupu mieszkanie 3 pokojowe o pow. 63 m² zlokalizowane na 2 pięt...

299 000,00 zł

Niezabitów

Zabytkowy Zespół Dworsko-Parkowy (XIXw. 1880 r)

Na sprzedaż wyjątkowa nieruchomość zabytkowy Zespół Dworsko-Parkowy (XIXw. budowany do ok. 1880 r).Malowniczy zabytkowy zespół dworsko-parkowy w Turce/k. Lublina wybudowany został w latach 1861-1878 ...

10 500 000,00 zł

Turka

DO WEJŚCIA / 3 POKOJE / OGRÓDEK / BLISKO KRAKOWA

BLISKO KRAKOWA / KOMFORTOWE 3 POKOJE / OGRÓDEK / ZIELEŃ / CISZA / BEZCZYNSZOWE * zdjęcia należą do Właściciela oferty Mam przyjemność zaoferować segment w zabudowie szeregowej zl...

797 000,00 zł

Myślenicki

Nowe 3 pok, ul Jantarowa Krzyki

DO WYNAJĘCIA od zaraz 3 pokoje ul. Jantarowa, KrzykiOferuję do wynajęcia od zaraz 3 pokojowe mieszkanie po generalnym remoncieUKŁAD POMIESZCZEŃNa mieszkanie usytuowane na parterze o powierzchni 53 m2 ...

3 100,00 zł

Wrocław

2 pok. mieszkanie ul Gwiaździsta, nowoczesne

Do wynajęcia od grudnia mieszkanie 2-pokojowe plus balkon, 42 m2 położone w apartamentowcu przy ul. Gwiaździstej, KrzykiEnglish description belowUKŁAD POMIESZCZEŃNa mieszkanie usytuowane na 2 piętrze ...

2 990,00 zł

Wrocław

2 pokoje z 2 m. post. ul. Inżynierska Corte Verona

Oferuję do wynajęcia od 1 grudnia 2025 r. nowocześnie urządzone dwupokojowe mieszkanie przy ul. Inżynierskiej z dwoma miejscami postojowymi w garażu podziemnym, położone w zamkniętym i chronionym komp...

2 700,00 zł

Wrocław

Nowa kawalerka - ul. Śliczna, od 01.11.2025

Do wynajęcia od połowy listopada w pełni wyposażona kawalerka, PO GENERALNYM REMONCIE. Mieszkanie znajduje się przy ul. Ślicznej, boczna al. Armii Krajowej.UKŁAD POMIESZCZEŃNa mieszkanie usytuowane na...

2 400,00 zł

Wrocław

Facebook
Facebook
Sprzedawanko.pl – serwis ogłoszeń Firmowanko.pl – katalog firm i usług Pracowanko.pl – serwis pracy Ugościmy.pl – serwis noclegów Nporta.pl – katalog firm i usług