📢
🔥 Już Jutro Nowa Promocja tylko na Sprzedawanko.pl! 🔔 Skorzystaj teraz! 🔥

Dom wolno stojący - Czyżyny!

3 300 000,00 zł

{{ phone }}

{{ email }}

Dodane przez: braciasadurscy
braciasadurscy
Lokalizacja: Nastrojowa
Telefon: {{ phone }}
Udostępnij:

Opublikowano:  | Wygaśnie:

ID ogłoszenia: 11788

Szczegóły

Typ: Sprzedaż
Rynek: Wtórny
Pow. użytkowa m2: 230.03
Pow. działki m2: 665
Pow. całkowita m2: 230.03
Cena za m2 (zł): 14345.95
Liczba pokoi: 5
Liczba pięter: 2
Rodzaj zabudowy: wolnostojący
Materiał budynku: cegła
Okna: PCV
Rok budowy: 1970
Ogrzewanie: piec dwufunkcyjny
Własność: Własność
Dach: papa termozgrzewalna
Agent: Dariusz Kornaś
E-mail: darek2@sadurscy.pl
Telefon kom.: +48 502-104-545
Nr licencji: 22629
Data aktualizacji: 2025-09-17

Opis


*zdjęcia należą do właściciela oferty.
Dom wolno stojący na osiedlu domów jednorodzinnych w Czyżynach o pow.: 230,03 m 2 , na działce - 665 m 2 .

Przestronny, komfortowy dom w bardzo dobrym stanie, 3 kondygnacyjny z 2-ma garażami na działce o regularnym kształcie i wymiarach: 19x35 m.
Dom z przełomu lat 60 i 70 -tych XX w., po gruntownym remoncie w roku 2005 i 2015.
Wymienione zostały wszystkie instalacje wewnętrzne, zostały ocieplone ściany fundamentowe, dach oraz wymieniona stolarka okienna. W roku 2023 zostały ocieplone ściany zewnętrzne.

Dom składa się:
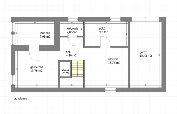
- z kondygnacji przyziemnej o pow.: 71,66 m 2 , zawierającej: garaż jednostanowiskowy o pow.: 18,42 m 2 , kotłownię (2,86 m 2 ), garderobę (13,76 m 2 ), łazienkę (7,96 m 2 ), pokój (siłownia) o pow.: 13,76 m 2 ; pokój (9,20 m 2 ), schowek (1,44 m 2 ) oraz Hol (4,26 m 2 ).
- parteru o pow: 93,45 m 2 , zawierającego: garaż o pow.: 29,74 m 2 , wiatrołap (4,34 m 2 ), garderobę (4,80 m 2 ), wc (1,05 m 2 ), kuchnię (8,07 m 2 ), pokój (15,48 m 2 ) oraz salon (24,72 m 2 ) z wyjściem na taras,
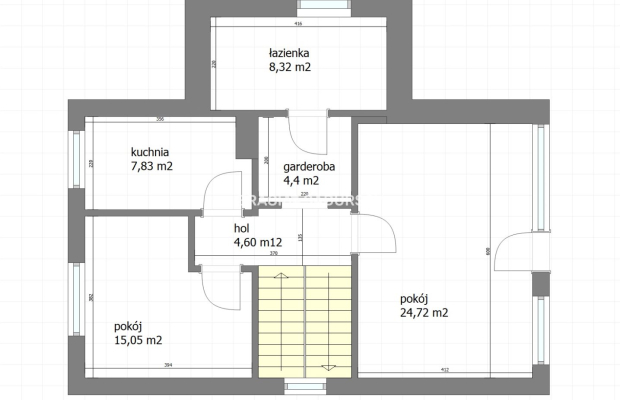
- piętra o pow.: 64,92 m 2 , zawierającego: hol (4,60 m 2 ), garderobę (4,40 m 2 ), łazienkę (8,32 m 2 ), pokój (15,05 m 2 ) i pokój (24,72 m 2 ) z wyjściem na balkon.

Media: woda z sieci miejskiej, gaz, kanalizacja miejska, prąd, przyłącze siły do zasilania pojazdów elektrycznych w garażu.
Ogrzewanie i ciepła woda z pieca gazowego kondensacyjnego, dwufunkcyjnego (z roku 2020).


Dom z powodzeniem może pełnić rolę dwurodzinnego. Idealny dostęp do komunikacji miejskiej oraz bogatej infrastruktury handlowej i usługowej.



Szczegóły oferty:

+48 502 104 545

Pośrednik odpowiedzialny zawodowo za wykonanie umowy pośrednictwa: Dariusz Sadurski (licencja nr: 803)


Oferta wysłana z systemu Galactica Virgo

Komentarze (0)

Nic nie znaleziono

Tylko zalogowani użytkownicy mogą dodawać komentarze

Mapa

Formularz kontaktowy

This site is protected by reCAPTCHA and the Google Privacy Policy and Terms of Service apply.

Podobne ogłoszenia

Bliźniak w Świdnicy - Gotowy

Oferujemy na sprzedaż dom - 1/2 bliźniaka w Świdnicy.Powierzchnia całkowita - 131m2Powierzchnia użytkowa - 86,93m2Powierzchnia działki - 500m2Stan do wykończeniaSTREFA DZIENNA:salon z jadalnią oraz an...

849 000,00 zł

Świdnica

lokal biurowy 55,5m2 Prądnik Czerwony Olsza

Kraków- Prądnik Czerwony/Olsza rejon ul. Bajana Lokal biurowy o powierzchni ok. 55,5 m2, położony na pierwszym ...

3 900,00 zł

Kraków

Łysa Góra, przestronny dom z potencjałem, 9 arów

Dom wolnostojący w spokojnej, zielonej części Łysej Góry, z szybkim dojazdem do Krakowa, Bochni i Tarnowa. Nieruchomość o powierzchni ok. 168 m² posadowiona na działce ok. 900 m², z ładnym widokie...

730 000,00 zł

Łysa Góra

Umeblowane 2pok z balkonem, TV + Netflix + PLAY

ZDJĘCIA W OFERCIE NALEŻĄ DO WŁAŚCICIELA OFERTY Biuro Nieruchomości Bracia Sadurscy ma przyjemność zaprezentować mieszkanie 2-pokojowe o łącznej powierzchni około 36 m 2 na 4. ostatnim piętrze ...

2 600,00 zł

Kraków

36m2 Stare Miasto, Św. Krzyża bez prowizji

ENGLISH BELOW Unikatowa inwestycja w samym sercu Krakowa - około 36 m² + ok. 36 m² wspólnego korytarza w odnowionej kamienicy przy ul. Św. Krzyża. Na innych ofertach prezentujemy sprzedaż c...

1 050 000,00 zł

Kraków

78m2 Stare Miasto, Św. Krzyża bez prowizji

ENGLISH BELOW Unikatowa inwestycja w samym sercu Krakowa - około 78 m² + ok. 36 m² wspólnego korytarza w odnowionej kamienicy przy ul. Św. Krzyża. Na innych ofertach prezentujemy sprzedaż c...

2 100 000,00 zł

Kraków

46m2 Stare Miasto, Św. Krzyża bez prowizji

ENGLISH BELOW Unikatowa inwestycja w samym sercu Krakowa - około 46 m² w odnowionej kamienicy przy ul. Św. Krzyża. Na innych ofertach prezentujemy sprzedaż całej nieruchomości o powierzchni 250...

1 150 000,00 zł

Kraków

Budynek idealny pod produkcje / siedzibę firmy

Atrakcyjna powierzchnia do najmu pod produkcje Skała koło Krakowa . Nieruchomość zlokalizowana jest w województwie małopolskim około 15 km od Krakowa . Przedmiotem najmu jest parter budynku o ...

10 000,00 zł

Krakowski

Działka produkcyjno – usługowa w Morawicy

D ziałka produkcyjno - usługowa w Morawicy gm. Liszki Oferujemy na sprzedaż działkę produkcyjno-usługową położoną w Morawicy gm Liszki, tuż obok lotniska w Balicach. Działka o powierzchni ...

396 000,00 zł

Morawica

Działka produkcyjno – usługowa w Morawicy

D ziałka produkcyjno - usługowa w Morawicy gm. Liszki Oferujemy na sprzedaż działkę produkcyjno-usługową położoną w Morawicy gm Liszki, tuż obok lotniska w Balicach. Działka o powierzchni ...

497 000,00 zł

Morawica

40m2 Stare Miasto, Św. Krzyża bez prowizji

ENGLISH BELOW Unikatowa inwestycja w samym sercu Krakowa - około 40 m² + ok. 36 m² wspólnego korytarza w odnowionej kamienicy przy ul. Św. Krzyża. Na innych ofertach prezentujemy sprzedaż c...

1 150 000,00 zł

Kraków

125m2 Stare Miasto, Św. Krzyża bez prowizji

ENGLISH BELOW Unikatowa inwestycja w samym sercu Krakowa - 125 m² w odnowionej kamienicy przy ul. Św. Krzyża. Na innych ofertach prezentujemy sprzedaż całej nieruchomości o powierzchni 250 m² ...

2 812 500,00 zł

Kraków

Okazja inwestycyjna na Starym Mieście, 125m2

ENGLISH BELOW Unikatowa inwestycja w samym sercu Krakowa - 125 m² w odnowionej kamienicy przy ul. Św. Krzyża. Na innych ofertach prezentujemy sprzedaż całej nieruchomości o powierzchni 250 m² ...

2 812 500,00 zł

Kraków

26m2 Stare Miasto, Św. Krzyża bez prowizji

ENGLISH BELOW Unikatowa inwestycja w samym sercu Krakowa - około 26 m² + ok. 36 m² wspólnego korytarza w odnowionej kamienicy przy ul. Św. Krzyża. Na innych ofertach prezentujemy sprzedaż cał...

800 000,00 zł

Kraków

Połowa bliźniaka ze sporym ogródkiem.

Zapraszam do Zielonek by zamieszkać w ciszy i spokoju z doskonałym dojazdem i infrastrukturą. Zielonki przechodzą w ostatnich latach ogromną przemianę dzięki nowo powstałym osiedlom oraz ro...

1 320 000,00 zł

Zielonki

250m2 Stare Miasto, Św. Krzyża bez prowizji

ENGLISH BELOW Unikatowa inwestycja w samym sercu Krakowa - 250 m² w odnowionej kamienicy przy ul. Św. Krzyża Tylko w Biurze Bracia Sadurscy - na sprzedaż niepowtarzalna przestrzeń o łącznej...

5 250 000,00 zł

Kraków

W pełni wyposażony gabinet kosmetyczno-lekarski

Do wynajęcia - w pełni wyposażony gabinet kosmetyczno-lekarski | Kraków, ul. Dąbska Prezentujemy ofertę wynajmu nowoczesnego, w pełni wyposażonego gabinetu kosmetyczno-lekarskiego (poradni ...

8 000,00 zł

Kraków

2 pokojowe os. Kalinowe

2-pokojowe mieszkanie na osiedlu Kalinowym - 47,72 m² | Kraków - Bieńczyce Na sprzedaż oferujemy funkcjonalne, dwupokojowe mieszkanie o powierzchni 47,72 m² , położone na wysokim parterze w...

530 001,00 zł

Kraków

SŁONECZNY, GUSTOWNY, ZADBANY, Z KLASĄ

SŁONECZNY, GUSTOWNY, BARDZO ZADBANY Z KLIMATYCZNYM OGRODEM LOKALIZACJA Mam przyjemność zaprezentować bardzo ładny, bardzo zadbany dom w zabudowie bliźniaczej, poł...

1 290 000,00 zł

Mogilany

Wynajmę,3-pok,Skawina,dużo zieleni

SKAWINA - Kraszewskiego Oferujemy do wynajmu piękne, rozkładowe mieszkanie o powierzchni 78 m2 składające się z: - Trzech oddzielnych pokoi o powierzchniach: 25,5 / 24 / 9,5 m2. Pokoje...

3 200,00 zł

Skawina

2 pok, duży balkon, osoba kuchnia, parking, tv ENG

English version bellow Do wynajęcia funkcjonalne i ciche mieszkanie o powierzchni 51,5 m² w spokojnej części Bronowic, położone na 4. z 5 pięter w budynku z windą. Lokal po odświeżeniu, gotowy ...

3 300,00 zł

Kraków

3 pok. oddzielne sypialnie, 2 balkony + duży salon

Oferujemy przestronne i w pełni wyposażone mieszkanie zlokalizowane przy ul. Armii Krajowej 12 w Krakowie, na 6. piętrze w 11-piętrowym budynku z dużą, cichobieżną windą. Mieszkanie - Powierzc...

4 000,00 zł

Kraków

Apartament z klimatyzacją i 2 balkonami - od zaraz

ENGLISH BELOW Do wynajęcia komfortowe, w pełni wyposażone mieszkanie o powierzchni 47 m², zlokalizowane przy ul. Wrocławskiej w Krakowie . Lokal 2-pokojowy położony na 6. piętrze 7-piętrowego bu...

3 700,00 zł

Kraków

Kawalerka 34m2, balkon, parking, pełne wyp.

ZDJĘCIA W OFERCIE NALEŻĄ DO WŁAŚCICIELA OFERTY Do wynajęcia 1-pokojowe mieszkanie o powierzchni 34m2 przy ul. Huculskiej w Łagiewnikach. Mieszkanie znajduje się na 2. piętrze (ostatnim) budynku...

1 900,00 zł

Kraków

3 pokoje, duży taras, garaż, wysoki standard

ENGLISH BELOW Do wynajęcia jasne, świetnie zaprojektowane mieszkanie 48 m² przy ul. Przemiarki - idealne dla wymagającego singla lub pary, którzy chcą mieszkać wygodnie, w ciszy i z szybkim doj...

3 200,00 zł

Kraków

3 pok z osbną kuchnią ul. Zielińska.

Do wynajęcia 3-pokojowe mieszkanie, ul. Zielińska, Kraków - komfortowa lokalizacja i wygoda codziennego życia Na powierzchnię mieszkania 45,5 m2 składa się : -oddzielna, widna kuchnia z...

2 600,00 zł

Kraków

4/5 pok ok 107m2 z 2 duzymi balkonami Ruczaj

KRAKÓW/DĘBNIKI-RUCZAJ! Nowe, klimatyczne 4-pokojowe dwupoziomowe mieszkanie | 2 balkony | Ruczaj - Dębniki | 2024 rok! Szukasz komfortowego, nowego mieszkania w spokojne...

4 000,00 zł

Kraków

1 pok. Nowoczesne. Na wyłączność.

Przy ulicy Prądnickiej, w nowym budynku, znajduje się prześliczne mieszkanie w którym możecie Państwo zamieszkać od razu. Z okien i balkonu rozpościera się piękny widok na zadbaną bujną zieleń. ...

2 150,00 zł

Kraków

Facebook
Facebook
Sprzedawanko.pl – serwis ogłoszeń Firmowanko.pl – katalog firm i usług Pracowanko.pl – serwis pracy Ugościmy.pl – serwis noclegów Nporta.pl – katalog firm i usług